
Mill Lane, Godalming, Surrey, GU7

- PROPERTY TYPE
Flat
- BEDROOMS
2
- BATHROOMS
1
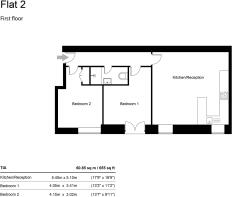
- SIZE
655 sq ft
61 sq m
Key features
- Distinctive Grade II listed mill conversion with 18th-century origins
- 2-bedroom, 1-bathroom first-floor apartment
- Share of freehold ownership
- Spacious open-plan reception/dining/kitchen area with integrated appliances
- Heritage details that celebrate the building’s character
- Two well-proportioned bedrooms
- Contemporary bathroom with quality finish
- Allocated parking & communal gardens included
- 1-min walk to Godalming station
- Close to Godalming High Street, River Wey and Surrey Hills AONB
Description
Dating back to the 18th century, Hatch Mill has been sympathetically restored to preserve its period character while delivering the comfort and practicality of a modern home.
Located on the first floor and arranged on one level, this apartment features a spacious open-plan reception, dining and kitchen area with integrated appliances, enhanced by heritage details that make the space feel unique. Two well-sized bedrooms and a sleek contemporary bathroom complete the layout, creating a home that is both practical and full of individuality.
The apartment comes with allocated parking communal gardens and is sold with a share of freehold, offering long-term peace of mind. Just a one-minute walk to Godalming station, it’s perfectly placed for commuters: trains reach London Waterloo in around 45 minutes and Guildford in under 10 minutes.
Beyond the building, residents can enjoy Godalming’s historic High Street, the River Wey, and the Surrey Hills Area of Outstanding Natural Beauty – a lifestyle that balances town convenience with countryside charm. Nearby, residents have access to scenic green spaces: Broadwater Park and Lake is a popular family-friendly spot with a lakeside trail, playground and café, while the Winkworth Arboretum offers woodland walks and beautiful seasonal displays.
Flat 2 at Hatch Mill offers the individuality of a heritage conversion with the practical benefits today’s buyers look for: a unique home with character, connectivity, and style.
The property is sold with a share of freehold (999 year lease), offering long-term peace of mind and an added sense of ownership for residents. Anticpated service charge is approx. £800 PA.
Photographs shown do not necessarily represent the exact apartment listed. Some photographs have been digitally dressed for illustration purposes and should not be relied upon for layout or specification.
- COUNCIL TAXA payment made to your local authority in order to pay for local services like schools, libraries, and refuse collection. The amount you pay depends on the value of the property.Read more about council Tax in our glossary page.
- Band: TBC
- PARKINGDetails of how and where vehicles can be parked, and any associated costs.Read more about parking in our glossary page.
- Allocated
- GARDENA property has access to an outdoor space, which could be private or shared.
- Ask agent
- ACCESSIBILITYHow a property has been adapted to meet the needs of vulnerable or disabled individuals.Read more about accessibility in our glossary page.
- Ask agent
Energy performance certificate - ask agent
Mill Lane, Godalming, Surrey, GU7
Add an important place to see how long it'd take to get there from our property listings.
__mins driving to your place
Get an instant, personalised result:
- Show sellers you’re serious
- Secure viewings faster with agents
- No impact on your credit score
Affordability
Notes
Staying secure when looking for property
Ensure you're up to date with our latest advice on how to avoid fraud or scams when looking for property online.
Visit our security centre to find out moreDisclaimer - Property reference LNH250644. The information displayed about this property comprises a property advertisement. Rightmove.co.uk makes no warranty as to the accuracy or completeness of the advertisement or any linked or associated information, and Rightmove has no control over the content. This property advertisement does not constitute property particulars. The information is provided and maintained by Seymours Estate Agents, Godalming. Please contact the selling agent or developer directly to obtain any information which may be available under the terms of The Energy Performance of Buildings (Certificates and Inspections) (England and Wales) Regulations 2007 or the Home Report if in relation to a residential property in Scotland.
*This is the average speed from the provider with the fastest broadband package available at this postcode. The average speed displayed is based on the download speeds of at least 50% of customers at peak time (8pm to 10pm). Fibre/cable services at the postcode are subject to availability and may differ between properties within a postcode. Speeds can be affected by a range of technical and environmental factors. The speed at the property may be lower than that listed above. You can check the estimated speed and confirm availability to a property prior to purchasing on the broadband provider's website. Providers may increase charges. The information is provided and maintained by Decision Technologies Limited. **This is indicative only and based on a 2-person household with multiple devices and simultaneous usage. Broadband performance is affected by multiple factors including number of occupants and devices, simultaneous usage, router range etc. For more information speak to your broadband provider.
Map data ©OpenStreetMap contributors.









