
Rose Gardens, Croesyceiliog, NP44

- PROPERTY TYPE
Flat
- BEDROOMS
2
- BATHROOMS
1
- SIZE
734 sq ft
68 sq m
Key features
- Spacious Two Bedroom Maisonnette
- Nestled In A Sought-After Complex in Croesyceiliog
- Entrance Stairs Leading to First Floor
- Light and Spacious Lounge
- Fitted Kitchen
- Modern Family Bathroom
- Two Double Bedrooms
- Communal Parking To The Front
- No Onward Chain
- Leasehold- 160 Years Remaining
Description
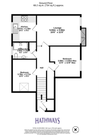
As you are welcomed into this flexible and versatile property, the entrance stairs lead you to the first floor where you will find a light and spacious lounge, perfect for relaxing and entertaining. The property boasts a fitted kitchen offering a range of wall and base units, alongside a modern family bathroom and two double bedrooms providing ample space for all.
Heading outside, this property offers a charming communal garden space perfect for enjoying the outdoors and relaxing in the fresh air. The tranquil setting of the complex provides a peaceful environment for residents to unwind and enjoy quality time with family and friends. With well-maintained grounds offering a picturesque backdrop, residents have the opportunity to create memorable moments in the outdoors without leaving the comfort of their home.
With the convenience of communal parking to the front, this property is offered with no onward chain, making it an ideal opportunity for those seeking a comfortable and convenient lifestyle in a desirable location.
Early internal inspection is highly recommended to fully appreciate the lifestyle this property has to offer.
Whilst Hathways are advised that the property is categorised as Council Tax Band C, and registered as leasehold with 160 years remaining, please be aware it is the buyer's responsibility to determine council tax band and tenure. As such, all buyers are encouraged to seek legal representation and obtain professional advice prior to purchase.
EPC Rating: C
Disclaimer
Money Laundering: Buyers must provide identification documents at a later stage to avoid delays.
We are also members of The Property Ombudsman, which is a redress scheme for consumer complaints.
General: Sales particulars are a general guide only. If any details are important to you, please contact us for verification, especially before travelling to view.
Measurements: All measurements are approximate and for guidance only.
Services: We have not tested any services, equipment, or appliances. Buyers should arrange independent surveys or reports before making an offer.
Important Notice: These particulars do not form part of any offer or contract. All details should be independently verified. Neither Hathways Estate Agents nor its employees or agents have authority to make any representation or warranty regarding this property.
We also subscribe to the rules and regulations of Propertymark.
- COUNCIL TAXA payment made to your local authority in order to pay for local services like schools, libraries, and refuse collection. The amount you pay depends on the value of the property.Read more about council Tax in our glossary page.
- Band: C
- PARKINGDetails of how and where vehicles can be parked, and any associated costs.Read more about parking in our glossary page.
- Yes
- GARDENA property has access to an outdoor space, which could be private or shared.
- Yes
- ACCESSIBILITYHow a property has been adapted to meet the needs of vulnerable or disabled individuals.Read more about accessibility in our glossary page.
- Ask agent
Rose Gardens, Croesyceiliog, NP44
Add an important place to see how long it'd take to get there from our property listings.
__mins driving to your place
Get an instant, personalised result:
- Show sellers you’re serious
- Secure viewings faster with agents
- No impact on your credit score

Your mortgage
Notes
Staying secure when looking for property
Ensure you're up to date with our latest advice on how to avoid fraud or scams when looking for property online.
Visit our security centre to find out moreDisclaimer - Property reference 5fb84daa-1e2b-49a0-883b-061e829ef238. The information displayed about this property comprises a property advertisement. Rightmove.co.uk makes no warranty as to the accuracy or completeness of the advertisement or any linked or associated information, and Rightmove has no control over the content. This property advertisement does not constitute property particulars. The information is provided and maintained by Hathways Estate Agents, Cwmbran. Please contact the selling agent or developer directly to obtain any information which may be available under the terms of The Energy Performance of Buildings (Certificates and Inspections) (England and Wales) Regulations 2007 or the Home Report if in relation to a residential property in Scotland.
*This is the average speed from the provider with the fastest broadband package available at this postcode. The average speed displayed is based on the download speeds of at least 50% of customers at peak time (8pm to 10pm). Fibre/cable services at the postcode are subject to availability and may differ between properties within a postcode. Speeds can be affected by a range of technical and environmental factors. The speed at the property may be lower than that listed above. You can check the estimated speed and confirm availability to a property prior to purchasing on the broadband provider's website. Providers may increase charges. The information is provided and maintained by Decision Technologies Limited. **This is indicative only and based on a 2-person household with multiple devices and simultaneous usage. Broadband performance is affected by multiple factors including number of occupants and devices, simultaneous usage, router range etc. For more information speak to your broadband provider.
Map data ©OpenStreetMap contributors.






