Waterloo Street, Hove, BN3

Letting details
- Let available date:
- 22/03/2026
- Deposit:
- £0A deposit provides security for a landlord against damage, or unpaid rent by a tenant.Read more about deposit in our glossary page.
- Min. Tenancy:
- Ask agent How long the landlord offers to let the property for.Read more about tenancy length in our glossary page.
- Let type:
- Long term
- Furnish type:
- Furnished
- Council Tax:
- Ask agent
- PROPERTY TYPE
House Share
- BEDROOMS
1
- BATHROOMS
6
- SIZE
Ask agent
Key features
- No Agent Fees
- Room Only (Shared House)
- Students Can Enquire
- Bills Included
- Property Reference Number: 2690576
Description
BRIGHTON BEACHTOWNHOUSE ENSUITE DOUBLE
Near Brighton Beach, Activities & Travel links.
Includes: ALL Bills, Council Tax, WIFI, Weekly Cleaning.
Fully Furnished, Fitted and Equipped with all modern conveniences. Solid Oak furniture and Quality Double Beds.
BEACH TOWNHOUSE WATERLOO STREET:
KITCHEN - Fully Fitted and Equipped:
• 3 undercounter fridge/freezers.
• Dishwasher.
• Combi microwave.
• Quality cookware and kitchenware provided.
• Handy Large Hatch through to living room.
Each tenant has their own fridge/freezer.
LIVINGROOM:
• 3 undercounter fridge/freezers (beneath hatch worktop).
• Glass extending dining table + 8 padded seat chairs.
• 3 + 2 seater leather sofas.
• 42" HD TV.
• High ceiling with floor to ceiling bay window.
• Oblique sea views.
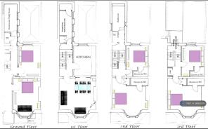
6 BEDROOMS:
• 2 Large Double bedrooms.
• 2 En suite Double bedrooms.
• 2 En suite Large Double bedrooms.
6 BATHROOMS:
• 4 En suite and 2 communal.
• GF shower room houses the washing machine and drier
RENT INCLUDES:
• ALL Utility Bills: Gas, Electricity, Water rates.
• Council Tax
• Wireless Internet / WIFI
• TV licence for the main lounge
• Concessionary Weekly Cleaning for communal areas
• Heating automatically comes on when temperature drops below 21c day and night.
The inclusive price includes bills and services worth over £175pcm per tenant.
CURRENT TENANTS:
Imaging Geophysicist, PhD Student, Clinical and Claims Global Expert, Assistant Video Producer, Archaeologist
RENTAL REQUIREMENTS:
3 Months can be renewed by mutual agreement
Preference tenants in Full-time employment or full-time students
Age between 20-30
SINGLE occupancy per room.
No Couples.
No smokers.
No children.
No pets.
PROFESSIONALS:
First 2 months in advance, thereafter monthly.
NO DEPOSIT
STUDENTS:
Quarterly in advance.
NO DEPOSIT
FULLY FURNISHED AND EQUIPPED:
---------------------------------------------------------------------------
PUBLIC TRANSPORT:
from Waterloo Street to Sussex University:
2-minute walk to catch bus 49 in Western Road, Journey time 30 minutes approximately.
or
2-minute walk to catch bus 6 in Western Road, to Brighton Station and from there catch a train to Falmer. Journey time 35 minutes approximately.
Car parking: Permit is required. For current wait time contact the council. Post code BN3
Bicycles: may not be stored inside the property.
Great value quality accommodation in a superb central location!
Perfect house share for considerate tenants who want to live in a friendly, clean and tidy environment.
----------------------------------------------------------------
GF Double (front) £925 Taken
GF Double (rear) £925 Taken
2nd floor Double ensuite (rear) Taken
2nd floor Large Double ensuite (front) £1,050 Taken
3rd floor Double ensuite (rear) £950 Taken
3rd floor Large Double ensuite (front) £1025 Available
----------------------------------------------------------------
AVAILABLE BEDROOM:
LARGE DOUBLE EN SUITE:
• King-size bed: 2000 pocket sprung mattress.
• Solid Oak chest of drawers & bedside cabinets
• Strong clothes rail
• Folding desk for laptop and chair.
• en suite shower, washbasin and toilet
Summary & Exclusions:
- Rent Amount: £1,025.00 per month (£236.54 per week)
- Deposit / Bond: £0.00
- 6 Bedroom Property (1 room currently available for rent)
- 6 Bathrooms
- Property comes furnished
- Available to move in from 22 March 2026
- Minimum tenancy term is 6 months
- Maximum number of tenants is 1
- Students welcome to enquire
- No Pets, sorry
- No Smokers
- Not Suitable for Families / Children
- Bills Included
- No Parking Available
- No Garden Access
- EPC Rating: EPC Not Required (Shared Accommodation)
If calling, please quote reference: 2690576
Fees:
You will not be charged any admin fees.
** Contact today to book a viewing and have the landlord show you round! **
Request Details form responded to 24/7, with phone bookings available 9am-9pm, 7 days a week.
- COUNCIL TAXA payment made to your local authority in order to pay for local services like schools, libraries, and refuse collection. The amount you pay depends on the value of the property.Read more about council Tax in our glossary page.
- Ask agent
- PARKINGDetails of how and where vehicles can be parked, and any associated costs.Read more about parking in our glossary page.
- Ask agent
- GARDENA property has access to an outdoor space, which could be private or shared.
- Ask agent
- ACCESSIBILITYHow a property has been adapted to meet the needs of vulnerable or disabled individuals.Read more about accessibility in our glossary page.
- Ask agent
Energy performance certificate - ask agent
Waterloo Street, Hove, BN3
Add an important place to see how long it'd take to get there from our property listings.
__mins driving to your place
Notes
Staying secure when looking for property
Ensure you're up to date with our latest advice on how to avoid fraud or scams when looking for property online.
Visit our security centre to find out moreDisclaimer - Property reference 269057611112025. The information displayed about this property comprises a property advertisement. Rightmove.co.uk makes no warranty as to the accuracy or completeness of the advertisement or any linked or associated information, and Rightmove has no control over the content. This property advertisement does not constitute property particulars. The information is provided and maintained by OpenRent, London. Please contact the selling agent or developer directly to obtain any information which may be available under the terms of The Energy Performance of Buildings (Certificates and Inspections) (England and Wales) Regulations 2007 or the Home Report if in relation to a residential property in Scotland.
*This is the average speed from the provider with the fastest broadband package available at this postcode. The average speed displayed is based on the download speeds of at least 50% of customers at peak time (8pm to 10pm). Fibre/cable services at the postcode are subject to availability and may differ between properties within a postcode. Speeds can be affected by a range of technical and environmental factors. The speed at the property may be lower than that listed above. You can check the estimated speed and confirm availability to a property prior to purchasing on the broadband provider's website. Providers may increase charges. The information is provided and maintained by Decision Technologies Limited. **This is indicative only and based on a 2-person household with multiple devices and simultaneous usage. Broadband performance is affected by multiple factors including number of occupants and devices, simultaneous usage, router range etc. For more information speak to your broadband provider.
Map data ©OpenStreetMap contributors.




