
Temple Mill Island, Marlow, SL7

- PROPERTY TYPE
Semi-Detached
- BEDROOMS
3
- BATHROOMS
3
- SIZE
Ask agent
- TENUREDescribes how you own a property. There are different types of tenure - freehold, leasehold, and commonhold.Read more about tenure in our glossary page.
Freehold
Key features
- 93 ft of River Thames frontage
- West facing private riverside gardens and terraces
- Superb river views from every window: watch the sun both rise and set
- Allocated marina mooring
- 10 minutes to Elizabeth Line from Maidenhead to Central London & the City
- Walking distance to Marlow village and towpath
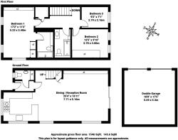
- Double garage plus parking spaces
- 20 minutes from Henley and Cliveden
- Large loft ideal for conversion
- Secure, gated development
Description
Undoubtedly the best-positioned house on the island, sitting on a considerably larger plot than any other, this is also the only house where the main living areas face South-West.
The spacious living area opens to a South-West-facing terrace, bathing the interiors in year-round sunlight. Watch spectacular sunsets across the river towards the weir, with your evening drink, and see the sun rise from the master bedroom as you gaze down the Thames towards Bisham Abbey and Marlow. Sweeping river views from every window including the lounge, kitchen and every bedroom.
With unique exclusive River Thames frontage of 93 ft, enchanting riverside gardens envelop the property on three sides. It is the only house on the island with complete privacy and ownership of the freehold land right down to the river bank.
Presented in excellent condition, this home boasts recently fitted contemporary kitchen and bathrooms, complemented by underfloor heating and an en-suite to the principal bedroom.
There is significant potential for a large loft conversion (subject to planning permission), with approvals already granted to comparable properties on the island.
The double garage has storage or potential for workroom above, and the forecourt allows for additional parking. Some houses have converted their garages to living accommodation as well.
Enjoy a secure, year-round mooring for your boat in a marina mooring located directly below the terrace, idyllic riverside walks, and proximity to the historic villages of Marlow and Henley. Just a 10-minute drive to Maidenhead for comprehensive shopping facilities and direct Elizabeth Line access into central London and the City.
Also for sale at £15,500 is our sleek Drago Fiesta 660 cabin cruiser Marie Dawn, 2004 with new outboard fitted 2019. 4 berths, toilet, winter and summer covers, safety certificate 2023.
Nestled within a secure gated community among meticulously landscaped communal gardens, this property and cabin cruiser offer an idyllic, ready-made riverside lifestyle.
This is a private sale with no agents involved. Contact us through online agents Emoov to deal direct with the owners. **ENQUIRIES**
For all enquiries, viewing requests or to create your own listing please visit the Emoov website. If calling, please quote reference: S5646
Brochures
Book a viewing- COUNCIL TAXA payment made to your local authority in order to pay for local services like schools, libraries, and refuse collection. The amount you pay depends on the value of the property.Read more about council Tax in our glossary page.
- Ask agent
- PARKINGDetails of how and where vehicles can be parked, and any associated costs.Read more about parking in our glossary page.
- Garage
- GARDENA property has access to an outdoor space, which could be private or shared.
- Front garden,Patio,Enclosed garden,Rear garden,Terrace
- ACCESSIBILITYHow a property has been adapted to meet the needs of vulnerable or disabled individuals.Read more about accessibility in our glossary page.
- Ask agent
Temple Mill Island, Marlow, SL7
Add an important place to see how long it'd take to get there from our property listings.
__mins driving to your place
Get an instant, personalised result:
- Show sellers you’re serious
- Secure viewings faster with agents
- No impact on your credit score
Your mortgage
Notes
Staying secure when looking for property
Ensure you're up to date with our latest advice on how to avoid fraud or scams when looking for property online.
Visit our security centre to find out moreDisclaimer - Property reference 5646. The information displayed about this property comprises a property advertisement. Rightmove.co.uk makes no warranty as to the accuracy or completeness of the advertisement or any linked or associated information, and Rightmove has no control over the content. This property advertisement does not constitute property particulars. The information is provided and maintained by Emoov, Chelmsford. Please contact the selling agent or developer directly to obtain any information which may be available under the terms of The Energy Performance of Buildings (Certificates and Inspections) (England and Wales) Regulations 2007 or the Home Report if in relation to a residential property in Scotland.
*This is the average speed from the provider with the fastest broadband package available at this postcode. The average speed displayed is based on the download speeds of at least 50% of customers at peak time (8pm to 10pm). Fibre/cable services at the postcode are subject to availability and may differ between properties within a postcode. Speeds can be affected by a range of technical and environmental factors. The speed at the property may be lower than that listed above. You can check the estimated speed and confirm availability to a property prior to purchasing on the broadband provider's website. Providers may increase charges. The information is provided and maintained by Decision Technologies Limited. **This is indicative only and based on a 2-person household with multiple devices and simultaneous usage. Broadband performance is affected by multiple factors including number of occupants and devices, simultaneous usage, router range etc. For more information speak to your broadband provider.
Map data ©OpenStreetMap contributors.





