Front Street, Westgate, DL13
- PROPERTY TYPE
Commercial Property
- BATHROOMS
1
- SIZE
Ask agent
Key features
- Detached stone built commercial building, previously a village shop and currently registered as an office
- Great opportunity for a local business owner
- Spacious ground floor workspace currently configured as 2 main rooms with a store room to the rear
- Kitchenette
- WC and Shower Room
- Large loft space with 2 uPVC windows and fantastic conversion potential
Description
Situated in the heart of a Westgate village in Weardale, this detached stone-built commercial property presents a fantastic opportunity for a local business owner. Previously serving the community as a village shop and now registered as an office, the building combines external traditional character with practical workspace options internally, giving potential to a variety of commercial uses subject to local authority approval.
The spacious ground floor is currently arranged as two generous main rooms, providing flexible work areas. A useful store room to the rear offers additional storage or archiving space, enhancing the property’s functionality. The kitchenette is conveniently located for staff use, while a WC and shower room add further practicality for day-to-day operations.
Above the main workspace, a large loft area benefits from two uPVC windows, allowing natural light to flood the space. This loft offers excellent conversion potential (subject to the necessary consents), providing scope for further workspace or storage. The property also benefits from two brick-built out houses to the rear, and a privately owned side passage offers ample space for bin storage and rear access.
This is a fantastic opportunity for those seeking a distinctive and adaptable commercial premises. Early viewing is highly recommended.
Agents Notes
Formally a village shop, the business is currently registered as an office. Any further change of use applications would be required to be approved by the local authority, Durham County Council.
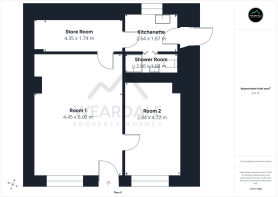
Room 1
4.45m x 6m
- Positioned to the front of the property and providing external access via a composite front door with onward internal access to room 2 at the front and the storeroom at the rear
- Large open space with multiple use options
- uPVC window to the Southern aspect
- Carpeted
- Neutrally decorated
- Ceiling light fittings
- Loft hatch to the property’s large roof space
- 3 electric radiators
Room 2
2.84m x 4.72m
- Positioned to the front of the property and accessed internally through a doorway from room 1
- The wall separating room1 and room 2 is a stud wall and could easily be removed to open up the commercial floor space further if desired
- uPVC window to the Southern aspect
- Carpeted
- Neutrally decorated
- Ceiling light fittings
Store Room
4.35m x 1.74m
- Positioned to the rear of the property and accessed from room 1, with further internal access to the kitchenette
- Laminate flooring
- Neutrally decorated
- Ceiling light fitting
- The property’s electrical consumer unit is located in this room
Kitchenette
2.64m x 1.87m
- Positioned to the rear of the property, internally accessed from the storeroom with onward internal access to the shower room. There is also external access to the side of the property via a wooden door
- uPVC window to the Northern aspect with frosted pane
- Laminate flooring
- Composite sink
- Laminate worksurface with panelled splashback
- Under counter storage units
- Ceiling mounted light fittings
- There is an electric hot water heater in one of the undercounter storage units which provides hot water to the kitchen sink and the hand wash basin in the shower room
Shower Room
2.66m x 1.08m
- Positioned to the rear of the property and accessed from the kitchenette via a folding wooden door
- Newly installed shower cubicle with electric shower which has never been used with the cubicle still being covered in protective vinyl wrapping
- Vinyl tile flooring
- Hand wash basin set on vanity unit with integrated storage below
- WC
- Ceiling spotlights
- Extractor fan
Attic
7.68m x 8.24m
- The attic is accessed via a pull-down ladder from room 1
- 2 Low level uPVC windows to the Southern aspect
- Large roof space with fantastic conversion potential
- The majority of this roof space is boarded
- Light and power are in situ
Front Street, Westgate, DL13
NEAREST STATIONS
Distances are straight line measurements from the centre of the postcode- Riding Mill Station16.2 miles
Notes
Disclaimer - Property reference 5b9a0fb5-8f88-4303-adb6-a3c9ad7290a5. The information displayed about this property comprises a property advertisement. Rightmove.co.uk makes no warranty as to the accuracy or completeness of the advertisement or any linked or associated information, and Rightmove has no control over the content. This property advertisement does not constitute property particulars. The information is provided and maintained by Weardale Property Agency, Stanhope. Please contact the selling agent or developer directly to obtain any information which may be available under the terms of The Energy Performance of Buildings (Certificates and Inspections) (England and Wales) Regulations 2007 or the Home Report if in relation to a residential property in Scotland.
Map data ©OpenStreetMap contributors.







