
Railton Road, SE24

- PROPERTY TYPE
House
- BEDROOMS
5
- BATHROOMS
3
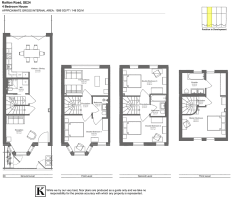
- SIZE
1,595 sq ft
148 sq m
- TENUREDescribes how you own a property. There are different types of tenure - freehold, leasehold, and commonhold.Read more about tenure in our glossary page.
Freehold
Key features
- Five double bedrooms
- Three bathrooms plus WC
- Private garden
- Principal suite with dressing area and en-suite
- High-specification new build house
- Just shy of 1,600 square feet
- Desirable location
- Short walk to Brixton, Herne Hill and Brockwell Park
- Freehold
- 10 year build warranty
Description
Full Description - Keating Estates are proud to present to market a sizeable five double bedroom, three bathroom new build house, with a private garden. Situated on Railton Road, a desirable Victorian residential street in Poet’s Corner, within walking distance of both Brixton and Herne Hill, a short stroll to Brockwell Park.
This remarkable new build home forms part of ‘The Poet’s Corner Collection’ an exclusive development of just five houses, thoughtfully designed with stunning attention to detail, seamlessly blending traditional with contemporary style to create a sense of pure luxury. Chic yet inviting homes, engineered to meet the requirements of modern living. Each house has a 10 year build warranty, offering reassurance for years to come.
To the front of the property is a patio complete with bicycle storage, upon entry there is a wonderfully bright and airy reception room with modern down lighting and features reminiscent of period charm such as high ceilings, a characterful bay window and herringbone flooring with underfloor heating. This attractive flooring sweeps through the ground floor, allowing the vast living space to flow seamlessly from front to rear, into the kitchen and on into the beautiful garden. A fantastic entertaining space, the dine-in kitchen is sure to impress, dine in style under a large skylight or cook up a tasty treat in the kitchen. Contemporary in styling, the kitchen integrates Bosch appliances and wrap-around storage within sleek grey cabinetry, topped with Cashmere Global Quartz work surfaces.
Floor-to-ceiling bi-fold doors allow fresh air to breeze through the room and create a continuous transition to the private garden, ideal for hosting al-fresco. Your own landscaped haven ideal for whiling away the summer months when not strolling around nearby Brockwell Park. Completing this all-encompassing ground floor is under stair storage for those essential items not used on a daily basis and a handy W.C. come utility room, keeping the laundry neatly tucked away.
Arranged over the first floor is the first of the bedrooms and a second reception room, this family room boasts large-pane windows and provides an additional space in which to unwind, or provides a fifth bedroom for larger families. The first bedroom is a spacious double featuring a bay window and contemporary en-suite shower room. Two further spacious double bedrooms are nestled over the second floor, sharing the luxurious house bathroom which also separates the rooms to provide privacy for each. The bathrooms are finished with Carrera polished porcelain tiles, electric towel rails and backlit mirrors.
Occupying the entirety of the top floor is an impressive principal suite. This cavernous bedroom has the perfect ambience in which to unwind. An enviable walk-in dressing area leads off the bedroom, sweeping through into an opulent en-suite, stylishly furnished with ‘his and hers’ sinks, with a rain shower over the bathtub ideal for a soak in the bubbles with leafy views.
The location on Railton Road is fantastic, with the prime positioning of Poet’s Corner. Desirably set between leafy Herne Hill and vibrant Brixton. The celebrated Herne Hill establishments, boutique shops and lively eateries are close-by along with the weekend market. In the other direction, are the diverse cuisines and dynamic entertainment options of Brixton including the lauded Brixton Village and the Upstairs private members club. The green open spaces of Brockwell Park are a short amble away along with its iconic 1930’s Lido and fantastic gym and sports facilities. It’s easy to see what makes Poets’ Corner such a popular area. Just a little further Dulwich offers a second village feel with serene woodlands, blending rural tranquillity with urban convenience.
The transport links are excellent. Herne Hill station is a ten-minute walk with direct access to The City of London in thirty minutes and Victoria within twenty minutes, door to door. Brixton tube station is a twelve-minute stroll away, first stop on the Victoria Line which runs 24hrs at the weekends. There is a fantastic choice of schools with walking distance, including St. Judes and Jessop Primary schools plus the famous Dulwich College.
With amenities to cater to all tastes and needs, this impressive home is sure to appeal, ready to be moved into stress-free, benefiting from the immaculate finish and thoughtful consideration of design, with proximity to all the action the area has to offer. Early registration of interest is advised.
Freehold & chain-free.
*Full Development Brochure Available - please click the 'downloadable brochure button'.
**The computer-generated images depicted are an artist’s concept of the completed building and/or its interiors only.
Brochures
Keating Estates Poets Corner Collection Brochure.pBrochure- COUNCIL TAXA payment made to your local authority in order to pay for local services like schools, libraries, and refuse collection. The amount you pay depends on the value of the property.Read more about council Tax in our glossary page.
- Ask agent
- PARKINGDetails of how and where vehicles can be parked, and any associated costs.Read more about parking in our glossary page.
- Ask agent
- GARDENA property has access to an outdoor space, which could be private or shared.
- Yes
- ACCESSIBILITYHow a property has been adapted to meet the needs of vulnerable or disabled individuals.Read more about accessibility in our glossary page.
- Ask agent
Energy performance certificate - ask agent
Railton Road, SE24
Add an important place to see how long it'd take to get there from our property listings.
__mins driving to your place
Get an instant, personalised result:
- Show sellers you’re serious
- Secure viewings faster with agents
- No impact on your credit score
Your mortgage
Notes
Staying secure when looking for property
Ensure you're up to date with our latest advice on how to avoid fraud or scams when looking for property online.
Visit our security centre to find out moreDisclaimer - Property reference 34075535. The information displayed about this property comprises a property advertisement. Rightmove.co.uk makes no warranty as to the accuracy or completeness of the advertisement or any linked or associated information, and Rightmove has no control over the content. This property advertisement does not constitute property particulars. The information is provided and maintained by Keating Estates, Herne Hill. Please contact the selling agent or developer directly to obtain any information which may be available under the terms of The Energy Performance of Buildings (Certificates and Inspections) (England and Wales) Regulations 2007 or the Home Report if in relation to a residential property in Scotland.
*This is the average speed from the provider with the fastest broadband package available at this postcode. The average speed displayed is based on the download speeds of at least 50% of customers at peak time (8pm to 10pm). Fibre/cable services at the postcode are subject to availability and may differ between properties within a postcode. Speeds can be affected by a range of technical and environmental factors. The speed at the property may be lower than that listed above. You can check the estimated speed and confirm availability to a property prior to purchasing on the broadband provider's website. Providers may increase charges. The information is provided and maintained by Decision Technologies Limited. **This is indicative only and based on a 2-person household with multiple devices and simultaneous usage. Broadband performance is affected by multiple factors including number of occupants and devices, simultaneous usage, router range etc. For more information speak to your broadband provider.
Map data ©OpenStreetMap contributors.





