
3 bedroom detached house for sale
The Eden, Crieff, PH7

- PROPERTY TYPE
Detached
- BEDROOMS
3
- BATHROOMS
3
- SIZE
977 sq ft
91 sq m
- TENUREDescribes how you own a property. There are different types of tenure - freehold, leasehold, and commonhold.Read more about tenure in our glossary page.
Ask agent
Key features
- 10 Year New Home Warranty
- Generous Living Space
- Photovoltaic Solar Panels
- Stylish Family Villas
- Wide Selection of Kitchen Units
Description
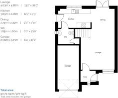
Drovers Gate is situated in the country town of Crieff and offers a selection of stylish family villas set in the beautiful Perthshire countryside. The Eden is an impressive three bedroom detached villa with accommodation comprising; entrance vestibule, large living and dining room with French doors which is semi-open plan to the fully fitted kitchen and completing the ground level accommodation is the cloakroom WC. Stairs from the hallway lead to the upper landing and the principal bedroom with en suite shower room, two further bedrooms and a well appointed family bathroom are accessed from the landing. There is a single garage.
This phase release consists of 3 and 4 bedroom detached plus 2 and 3 bedroom semi-detached villas offering generous living space throughout with fitted kitchens including a wide section of kitchen units, integrated fridge freezer (where applicable) stainless steel oven, chimney hood and stainless steel splash-back to hob and steel sink with chrome fittings and contemporary family bathroom. Crieff is a lively country town surrounded by the beautiful Perthshire scenery positioned where the lowland landscape meets the highland terrain.
The historic town developed into the main cattle trading centre in Scotland during the 16th and 18th centuries. Drovers would gather at the livestock market with up to 30,000 cattle. This thriving market town supports array of local family businesses and has built a reputation for fine dining. With a selection of restaurants, cafes, coffee shops and casual dining establishments, you’ll be spoilt for choice. Of course, there is also a collection of clothes, gifts and arty shops along with the usual amenities. Crieff lies just 35 minutes west of the city of Perth, the gateway to the Highlands. All properties come with a 10 year New Home Warranty. **Please note photo(s) are for illustrative purposes only**
- COUNCIL TAXA payment made to your local authority in order to pay for local services like schools, libraries, and refuse collection. The amount you pay depends on the value of the property.Read more about council Tax in our glossary page.
- Ask agent
- PARKINGDetails of how and where vehicles can be parked, and any associated costs.Read more about parking in our glossary page.
- Yes
- GARDENA property has access to an outdoor space, which could be private or shared.
- Private garden
- ACCESSIBILITYHow a property has been adapted to meet the needs of vulnerable or disabled individuals.Read more about accessibility in our glossary page.
- Ask agent
Energy performance certificate - ask agent
The Eden, Crieff, PH7
Add an important place to see how long it'd take to get there from our property listings.
__mins driving to your place
Get an instant, personalised result:
- Show sellers you’re serious
- Secure viewings faster with agents
- No impact on your credit score
Your mortgage
Notes
Staying secure when looking for property
Ensure you're up to date with our latest advice on how to avoid fraud or scams when looking for property online.
Visit our security centre to find out moreDisclaimer - Property reference de15ae47-5078-455d-a547-56618b65f298. The information displayed about this property comprises a property advertisement. Rightmove.co.uk makes no warranty as to the accuracy or completeness of the advertisement or any linked or associated information, and Rightmove has no control over the content. This property advertisement does not constitute property particulars. The information is provided and maintained by Clyde Property, Perth. Please contact the selling agent or developer directly to obtain any information which may be available under the terms of The Energy Performance of Buildings (Certificates and Inspections) (England and Wales) Regulations 2007 or the Home Report if in relation to a residential property in Scotland.
*This is the average speed from the provider with the fastest broadband package available at this postcode. The average speed displayed is based on the download speeds of at least 50% of customers at peak time (8pm to 10pm). Fibre/cable services at the postcode are subject to availability and may differ between properties within a postcode. Speeds can be affected by a range of technical and environmental factors. The speed at the property may be lower than that listed above. You can check the estimated speed and confirm availability to a property prior to purchasing on the broadband provider's website. Providers may increase charges. The information is provided and maintained by Decision Technologies Limited. **This is indicative only and based on a 2-person household with multiple devices and simultaneous usage. Broadband performance is affected by multiple factors including number of occupants and devices, simultaneous usage, router range etc. For more information speak to your broadband provider.
Map data ©OpenStreetMap contributors.






