
Rock Pipit Road, Trevemper, Newquay

Letting details
- Let available date:
- 19/12/2025
- Deposit:
- £1,673A deposit provides security for a landlord against damage, or unpaid rent by a tenant.Read more about deposit in our glossary page.
- Min. Tenancy:
- Ask agent How long the landlord offers to let the property for.Read more about tenancy length in our glossary page.
- Let type:
- Long term
- Furnish type:
- Unfurnished
- Council Tax:
- Ask agent
- PROPERTY TYPE
End of Terrace
- BEDROOMS
3
- BATHROOMS
2
- SIZE
1,104 sq ft
103 sq m
Key features
- End of terrace mews style home
- Three double bedrooms
- Principal bedroom with en-suite
- Kitchen Dining leading into the garden
- Separate lounge
- Efficient air source heat pump
- Carport garage with charging point
- Enclosed rear garden
- Long term rental
- Pets considered
Description
A brand new end-of-terrace, three-storey, three-bedroom family home located in the popular Trevemper area of Newquay available now.
The ground floor comprises a welcoming entrance hallway with access from the carport, a convenient WC, and an open-plan kitchen/dining area which opens directly onto the rear garden via double doors and benefits from side access.
The first floor offers a spacious lounge, a second bedroom, and a family bathroom, while the second floor is dedicated to the principal bedroom with en-suite, a third bedroom, and an additional family bathroom.
The property is heated via an air source heat pump, providing underfloor heating to the ground floor and radiators serving the first and second floors.
Pets considered.
You will need to fill out a David Ball Agencies Treveth regsitration form before proceeding which includes eligibility for this property as there is a required location connection to Newquay and the surrounding areas, for full details please contact us or visit the Treveth area of the David Ball Agencies website.
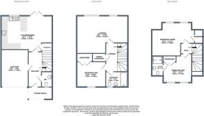
Floor plan dimensions provided have used architects' drawings and are for guidance only, therefore actual measurements may vary slightly. Images used are of the same house type and are for illustrative purposes, individual properties may vary slightly.
RENT £1,450 DEPOSIT £1,637 HOLDING DEPOSIT £334
Brochures
Brochure- COUNCIL TAXA payment made to your local authority in order to pay for local services like schools, libraries, and refuse collection. The amount you pay depends on the value of the property.Read more about council Tax in our glossary page.
- Band: TBC
- PARKINGDetails of how and where vehicles can be parked, and any associated costs.Read more about parking in our glossary page.
- Communal
- GARDENA property has access to an outdoor space, which could be private or shared.
- Yes
- ACCESSIBILITYHow a property has been adapted to meet the needs of vulnerable or disabled individuals.Read more about accessibility in our glossary page.
- Ask agent
Energy performance certificate - ask agent
Rock Pipit Road, Trevemper, Newquay
Add an important place to see how long it'd take to get there from our property listings.
__mins driving to your place
Notes
Staying secure when looking for property
Ensure you're up to date with our latest advice on how to avoid fraud or scams when looking for property online.
Visit our security centre to find out moreDisclaimer - Property reference 34359064. The information displayed about this property comprises a property advertisement. Rightmove.co.uk makes no warranty as to the accuracy or completeness of the advertisement or any linked or associated information, and Rightmove has no control over the content. This property advertisement does not constitute property particulars. The information is provided and maintained by David Ball Agencies, Newquay. Please contact the selling agent or developer directly to obtain any information which may be available under the terms of The Energy Performance of Buildings (Certificates and Inspections) (England and Wales) Regulations 2007 or the Home Report if in relation to a residential property in Scotland.
*This is the average speed from the provider with the fastest broadband package available at this postcode. The average speed displayed is based on the download speeds of at least 50% of customers at peak time (8pm to 10pm). Fibre/cable services at the postcode are subject to availability and may differ between properties within a postcode. Speeds can be affected by a range of technical and environmental factors. The speed at the property may be lower than that listed above. You can check the estimated speed and confirm availability to a property prior to purchasing on the broadband provider's website. Providers may increase charges. The information is provided and maintained by Decision Technologies Limited. **This is indicative only and based on a 2-person household with multiple devices and simultaneous usage. Broadband performance is affected by multiple factors including number of occupants and devices, simultaneous usage, router range etc. For more information speak to your broadband provider.
Map data ©OpenStreetMap contributors.








