
3 bedroom semi-detached house for sale
Layters Avenue, Chalfont St Peter, Gerrards Cross, SL9

- PROPERTY TYPE
Semi-Detached
- BEDROOMS
3
- BATHROOMS
2
- SIZE
Ask agent
- TENUREDescribes how you own a property. There are different types of tenure - freehold, leasehold, and commonhold.Read more about tenure in our glossary page.
Freehold
Description
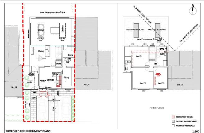
Exceptional Redevelopment Opportunity with Planning Permisson and Building Regulations Approved.
An outstanding opportunity for developers, investors, or ambitious homeowners—this property property benefits from full planning permission, with all approvals in place and ready for immediate construction with full plans for substantial extensions and remarkable scope for large-scale redevelopment. Set on an expansive plot, it provides the perfect canvas for creating a high-value, bespoke home.
The existing structure offers a strong starting point, with approved proposals allowing for a significant increase in internal space and the creation of a modern, high-specification residence. In addition, the generous garden presents the potential to build a 1,000 sq ft annexe at the rear of the plot, ideal for guest accommodation or multigenerational living.
Key Features:
1. Extensive plot with excellent redevelopment potential
2. Approved plans for major extensions to the main property
3. Potential to build a 1,000 sq ft g outbuilding, providing potential use as a separate self-contained annexe, with approved planning.
4. Opportunity to create a high-value, custom home
5. Desirable location with strong buyer demand
6. Ideal for developers, builders, or visionary homeowners
Planning reference - PL/24/3788/VRC & PL/25/0902/FA
Layters Avenue is extremely convenient for access to local amenities and transport links. Gerrards Cross is 1 mile from the property and provides a wider range of shopping facilities and Mainline station with fast trains into London Marylebone in approximately 22 minutes. Central London is easily accessible by road via the M40 (J1A) and M25 (J16) plus access to Heathrow and Gatwick Airports. Should you wish to access the tube network directly, Amersham (approx. 6.5 miles) and Chalfont & Latimer (within 6 miles) Tube stations are all easily accessible.
Buckinghamshire is renowned for its education system, with an excellent choice of state and independent schools, including Dr Challoners High School for Girls and Dr Challoners Grammar School for Boys. Chalfont St Peter Infant School, Church of England Academy and Community College are all nearby.
The area is also well served for sporting facilities with Chalfont Leisure Centre just minutes away, The Buckinghamshire, Gerrards Cross and Denham Golf Courses within the area. Lawn tennis is available at Gerrards Cross and Beaconsfield.
Brochures
Brochure 1- COUNCIL TAXA payment made to your local authority in order to pay for local services like schools, libraries, and refuse collection. The amount you pay depends on the value of the property.Read more about council Tax in our glossary page.
- Ask agent
- PARKINGDetails of how and where vehicles can be parked, and any associated costs.Read more about parking in our glossary page.
- Ask agent
- GARDENA property has access to an outdoor space, which could be private or shared.
- Yes
- ACCESSIBILITYHow a property has been adapted to meet the needs of vulnerable or disabled individuals.Read more about accessibility in our glossary page.
- Ask agent
Energy performance certificate - ask agent
Layters Avenue, Chalfont St Peter, Gerrards Cross, SL9
Add an important place to see how long it'd take to get there from our property listings.
__mins driving to your place
Get an instant, personalised result:
- Show sellers you’re serious
- Secure viewings faster with agents
- No impact on your credit score
Your mortgage
Notes
Staying secure when looking for property
Ensure you're up to date with our latest advice on how to avoid fraud or scams when looking for property online.
Visit our security centre to find out moreDisclaimer - Property reference 29726824. The information displayed about this property comprises a property advertisement. Rightmove.co.uk makes no warranty as to the accuracy or completeness of the advertisement or any linked or associated information, and Rightmove has no control over the content. This property advertisement does not constitute property particulars. The information is provided and maintained by Hilton King & Locke, Chalfont St Peter. Please contact the selling agent or developer directly to obtain any information which may be available under the terms of The Energy Performance of Buildings (Certificates and Inspections) (England and Wales) Regulations 2007 or the Home Report if in relation to a residential property in Scotland.
*This is the average speed from the provider with the fastest broadband package available at this postcode. The average speed displayed is based on the download speeds of at least 50% of customers at peak time (8pm to 10pm). Fibre/cable services at the postcode are subject to availability and may differ between properties within a postcode. Speeds can be affected by a range of technical and environmental factors. The speed at the property may be lower than that listed above. You can check the estimated speed and confirm availability to a property prior to purchasing on the broadband provider's website. Providers may increase charges. The information is provided and maintained by Decision Technologies Limited. **This is indicative only and based on a 2-person household with multiple devices and simultaneous usage. Broadband performance is affected by multiple factors including number of occupants and devices, simultaneous usage, router range etc. For more information speak to your broadband provider.
Map data ©OpenStreetMap contributors.





