
Pixley Lane, Hinstock, TF9

- PROPERTY TYPE
Barn Conversion
- BEDROOMS
3
- BATHROOMS
2
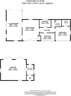
- SIZE
Ask agent
- TENUREDescribes how you own a property. There are different types of tenure - freehold, leasehold, and commonhold.Read more about tenure in our glossary page.
Freehold
Key features
- A charming barn conversion in Hinstock sat on an approx 1 acre plot, filled with original character throughout.
- Three bedrooms and two bathrooms allow plenty of room to relax and unwind.
- An open kitchen/diner and living room make entertaining a dream with scenic views and easy garden access.
- Outside, enjoy an approx 1 acre garden with generous lawn, decking, a driveway and garage for parking ease.
- Located on Pixley Lane in Hinstock, enjoy rural living with amenities and schools close by in Hinstock, Newport and Market Drayton.
Description
Once a place of wheels and workmanship, The Old Carthouse has been thoughtfully rewritten into a home where history meets modern living, ready for you to add your own chapter of memories. This exceptional three-bedroom, two-bathroom detached, single-storey conversion blends rustic heritage with contemporary design, creating a storybook balance of countryside charm and present-day comfort.
The tale begins with a striking stone and brick façade, setting the scene for what lies within. Large picture windows flood the interior with natural light, breathing new life into old walls. The living room is a true centrepiece, where exposed timber beams, vaulted ceilings and elegant wooden flooring echo the building’s past while offering a warm, welcoming space perfect for both quiet evenings and lively gatherings. The plot thickens in the modern kitchen, where sleek cabinetry, integrated appliances and tasteful tiling bring the home firmly into the present day. Open-plan in design, it flows effortlessly into the dining area, while bifold doors and expansive windows frame picturesque garden views and open directly onto the outdoors, perfect for summer soirées and everyday living alike.
Turning the page down the hallway, you’ll find three well-proportioned bedrooms and two bathrooms. The principal bedroom is a generous double, complete with its own ensuite and picture window. A second double bedroom enjoys similar light and outlook, while the third bedroom offers charming garden views. The family bathroom completes the story with a full bath and overhead shower, basin, W.C. and heated towel rail. Throughout the home, thoughtful details such as zoned underfloor heating, sandstone accents and a boarded loft space above the second and third bedrooms add comfort and practicality to the narrative.
Outside, the setting truly comes into its own. A double garage with adjoining utility room and W.C. offers exciting potential for conversion into an annexe, studio or working from home space. The surrounding gardens are extensive and beautifully maintained, a peaceful backdrop for outdoor pursuits, family gatherings and al fresco dining. Decked patio areas, a glass-enclosed extension, an orchard filled with fruit trees and multiple seating spots invite you to pause, unwind and take in the sweeping countryside views. A gravel driveway and double garage provide ample parking and secure storage, ensuring the practical side of life is well covered.
This remarkable barn conversion is a rare opportunity to own a private rural retreat where past and present live in perfect harmony. Whether you’re seeking a family home, a space to entertain or a tranquil escape from the everyday, The Old Carthouse is ready to play its part in your future.
Keep the story of The Old Carthouse alive and add history of your own. Call today to book your viewing and turn the page to the next chapter.
EPC Rating: C
Location
Set within the village of Hinstock where there is a primary school, pub and village shop/delicatessen/post office. Just a short drive away you will find all of your necessary amenities in either of the Market Towns of Newport or Market Drayton where there are major supermarkets, and a mixture of chain and independent shops, swimming pools, even a little theatre/cinema.
- COUNCIL TAXA payment made to your local authority in order to pay for local services like schools, libraries, and refuse collection. The amount you pay depends on the value of the property.Read more about council Tax in our glossary page.
- Band: D
- PARKINGDetails of how and where vehicles can be parked, and any associated costs.Read more about parking in our glossary page.
- Yes
- GARDENA property has access to an outdoor space, which could be private or shared.
- Yes
- ACCESSIBILITYHow a property has been adapted to meet the needs of vulnerable or disabled individuals.Read more about accessibility in our glossary page.
- Ask agent
Energy performance certificate - ask agent
Pixley Lane, Hinstock, TF9
Add an important place to see how long it'd take to get there from our property listings.
__mins driving to your place
Get an instant, personalised result:
- Show sellers you’re serious
- Secure viewings faster with agents
- No impact on your credit score
Your mortgage
Notes
Staying secure when looking for property
Ensure you're up to date with our latest advice on how to avoid fraud or scams when looking for property online.
Visit our security centre to find out moreDisclaimer - Property reference c0cb73e6-af78-4f3f-b95f-8fac4a7ed766. The information displayed about this property comprises a property advertisement. Rightmove.co.uk makes no warranty as to the accuracy or completeness of the advertisement or any linked or associated information, and Rightmove has no control over the content. This property advertisement does not constitute property particulars. The information is provided and maintained by James Du Pavey, Eccleshall. Please contact the selling agent or developer directly to obtain any information which may be available under the terms of The Energy Performance of Buildings (Certificates and Inspections) (England and Wales) Regulations 2007 or the Home Report if in relation to a residential property in Scotland.
*This is the average speed from the provider with the fastest broadband package available at this postcode. The average speed displayed is based on the download speeds of at least 50% of customers at peak time (8pm to 10pm). Fibre/cable services at the postcode are subject to availability and may differ between properties within a postcode. Speeds can be affected by a range of technical and environmental factors. The speed at the property may be lower than that listed above. You can check the estimated speed and confirm availability to a property prior to purchasing on the broadband provider's website. Providers may increase charges. The information is provided and maintained by Decision Technologies Limited. **This is indicative only and based on a 2-person household with multiple devices and simultaneous usage. Broadband performance is affected by multiple factors including number of occupants and devices, simultaneous usage, router range etc. For more information speak to your broadband provider.
Map data ©OpenStreetMap contributors.








