4 bedroom detached house for sale
The Pastures, Wood View, Grays

- PROPERTY TYPE
Detached
- BEDROOMS
4
- BATHROOMS
2
- SIZE
1,328 sq ft
123 sq m
- TENUREDescribes how you own a property. There are different types of tenure - freehold, leasehold, and commonhold.Read more about tenure in our glossary page.
Freehold
Key features
- Large Detached House
- Garage
- Built-in wardrobe to master bedroom
- En-Suite
- Patio doors to garden
- Ground floor cloakroom
- Open plan kitchen/dining room plus separate lounge
- 10 Year NHBC
Description
SUMMARY
The Beech - A stunning four bedroom detached family home with garage, spanning 1,328 sq ft incorporating kitchen/dining room with patio doors to rear, separate lounge, master bedroom with en-suite.
DESCRIPTION
Established in 1975 Matthew Homes Ltd has been building homes for over 50 years and prides itself on building quality homes in a variety of locations that compliment the tradition and character of each individual site.
Nestled within the idyllic setting of Little Thurrock, Grays, Essex, The Pastures presents a stunning collection of 47 new houses, offering a delightful mix of 3, 4, and 5-bedroom family homes. This picturesque development is specifically designed to cater to a variety of homeowners, from first time buyers taking their initial step onto the property ladder, to upsizers seeking more space, and downsizers looking for a comfortable and manageable living environment.
The Pastures boasts brand new, beautifully crafted homes, which serves as a perfect haven for modern living. Each home is finished to an impeccable standard, with buyers having the choice of specification to add their personal touch. You will be greeted by a warm and welcoming ambiance, thanks to the efficient gas central heating system that ensures your home is cosy throughout the year.
A 10 year NHBC warranty provides peace of mind, while the fully integrated kitchen, equipped with high quality appliances, promises a delightful culinary experience. Convenience is key, these homes feature their own driveway or garage, providing secure off street parking.
Located approximately 20 miles East of Central London, and ideally situated between Little Thurrock and Chadwell St Mary.
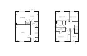
Lounge 16' 5" x 14' 4" ( 5.00m x 4.37m )
Kitchen/Dining 22' 2" x 12' 8" ( 6.76m x 3.86m )
Cloakroom
Bedroom One 11' 9" x 9' 7" ( 3.58m x 2.92m )
En-Suite
Bedroom Two 13' 2" x 8' 8" ( 4.01m x 2.64m )
Bedroom Three 9' 8" x 8' 9" ( 2.95m x 2.67m )
Bedroom Four 12' 4" x 7' 8" ( 3.76m x 2.34m )
Bathroom
Specification
Gas central heating
Vertical five panel internal doors
UPVC anthracite (white internal) double glazed windows
Lemongrass fitted kitchen
Integrated kitchen including high level electric oven (except Cedar, Cherry and Blackthorn) electric hob, cooker hood, fridge/freezer, dishwasher and washing machine.
Choice of ceramic floor tiling to kitchen (subject to stage of construction)
Choice of ceramic floor tiling to cloakroom, bathroom and en-suite (subject to stage of construction)
Villeroy & Boch sanitaryware
Heated towel rail to bathroom and en-suite
Waste water heat recovery
Built in wardrobe to bedroom one with further wardrobe to bedroom 2 to Blackthorn, Chestnut, Larch and Hornbeam
Inset ceiling lights to kitchen, bathroom and en-suite
Light and power to garages
Vehicle charging point
PV solar panels (except Cedar)
NHBC Warranty
Estate Charge
Estate Charge - £411.74
Agent's Notes
CGI's, images, dimensions, specifications and plans are provided for guidance purposes only, may be of previous developments and not specific to this plot and may differ from the finished development.
1. MONEY LAUNDERING REGULATIONS: Intending purchasers will be asked to produce identification documentation at a later stage and we would ask for your co-operation in order that there will be no delay in agreeing the sale.
2. General: While we endeavour to make our sales particulars fair, accurate and reliable, they are only a general guide to the property and, accordingly, if there is any point which is of particular importance to you, please contact the office and we will be pleased to check the position for you, especially if you are contemplating travelling some distance to view the property.
3. The measurements indicated are supplied for guidance only and as such must be considered incorrect.
4. Services: Please note we have not tested the services or any of the equipment or appliances in this property, accordingly we strongly advise prospective buyers to commission their own survey or service reports before finalising their offer to purchase.
5. THESE PARTICULARS ARE ISSUED IN GOOD FAITH BUT DO NOT CONSTITUTE REPRESENTATIONS OF FACT OR FORM PART OF ANY OFFER OR CONTRACT. THE MATTERS REFERRED TO IN THESE PARTICULARS SHOULD BE INDEPENDENTLY VERIFIED BY PROSPECTIVE BUYERS OR TENANTS. NEITHER SEQUENCE (UK) LIMITED NOR ANY OF ITS EMPLOYEES OR AGENTS HAS ANY AUTHORITY TO MAKE OR GIVE ANY REPRESENTATION OR WARRANTY WHATEVER IN RELATION TO THIS PROPERTY.
Brochures
Full Details- COUNCIL TAXA payment made to your local authority in order to pay for local services like schools, libraries, and refuse collection. The amount you pay depends on the value of the property.Read more about council Tax in our glossary page.
- Band: TBC
- PARKINGDetails of how and where vehicles can be parked, and any associated costs.Read more about parking in our glossary page.
- Yes
- GARDENA property has access to an outdoor space, which could be private or shared.
- Front garden,Back garden
- ACCESSIBILITYHow a property has been adapted to meet the needs of vulnerable or disabled individuals.Read more about accessibility in our glossary page.
- Ask agent
Energy performance certificate - ask agent
The Pastures, Wood View, Grays
Add an important place to see how long it'd take to get there from our property listings.
__mins driving to your place
Get an instant, personalised result:
- Show sellers you’re serious
- Secure viewings faster with agents
- No impact on your credit score



Your mortgage
Notes
Staying secure when looking for property
Ensure you're up to date with our latest advice on how to avoid fraud or scams when looking for property online.
Visit our security centre to find out moreDisclaimer - Property reference GRA105598. The information displayed about this property comprises a property advertisement. Rightmove.co.uk makes no warranty as to the accuracy or completeness of the advertisement or any linked or associated information, and Rightmove has no control over the content. This property advertisement does not constitute property particulars. The information is provided and maintained by William H. Brown Incorporating Porter Glenny, Grays. Please contact the selling agent or developer directly to obtain any information which may be available under the terms of The Energy Performance of Buildings (Certificates and Inspections) (England and Wales) Regulations 2007 or the Home Report if in relation to a residential property in Scotland.
*This is the average speed from the provider with the fastest broadband package available at this postcode. The average speed displayed is based on the download speeds of at least 50% of customers at peak time (8pm to 10pm). Fibre/cable services at the postcode are subject to availability and may differ between properties within a postcode. Speeds can be affected by a range of technical and environmental factors. The speed at the property may be lower than that listed above. You can check the estimated speed and confirm availability to a property prior to purchasing on the broadband provider's website. Providers may increase charges. The information is provided and maintained by Decision Technologies Limited. **This is indicative only and based on a 2-person household with multiple devices and simultaneous usage. Broadband performance is affected by multiple factors including number of occupants and devices, simultaneous usage, router range etc. For more information speak to your broadband provider.
Map data ©OpenStreetMap contributors.




