
Old Chapel Gardens, Glentham
- PROPERTY TYPE
Land
- SIZE
Ask agent
Key features
- Fantastic development opportunity
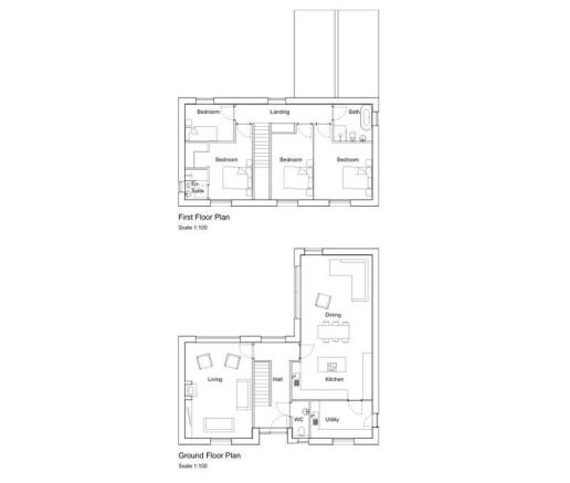
- Full planning for five detached houses
- Approximately 1.27 acres
- Village Location
- 2 x three bed detached
- 3 x four bed detached
- WLDC planning reference - WL/2024/00083
- Call today for more information
Description
Located within the village of Glentham, ideally located only 8 miles from Market Rasen, 12 miles from Gainsborough and 14 miles from the cathedral city of Lincoln, is this fantastic development site which extends to approximately 1.27 acres, with full planning permission granted for five detached houses which stand upon generous plots. Glentham benefits from a public house, a village shop, village hall and a garden centre. One of the plots benefits from its own private access whilst the other plots form a pleasant courtyard development. Full planning permission has been granted and further information can be found by searching the West Lindsey planning portal using the reference WL/2024/00083. Please note that further land may be available subject to negotiation. Call today for further information.
Brochures
Full DetailsOld Chapel Gardens, Glentham
NEAREST STATIONS
Distances are straight line measurements from the centre of the postcode- Market Rasen Station6.6 miles
Notes
Disclaimer - Property reference 12798752. The information displayed about this property comprises a property advertisement. Rightmove.co.uk makes no warranty as to the accuracy or completeness of the advertisement or any linked or associated information, and Rightmove has no control over the content. This property advertisement does not constitute property particulars. The information is provided and maintained by Starkey & Brown, Lincoln. Please contact the selling agent or developer directly to obtain any information which may be available under the terms of The Energy Performance of Buildings (Certificates and Inspections) (England and Wales) Regulations 2007 or the Home Report if in relation to a residential property in Scotland.
Map data ©OpenStreetMap contributors.










