2 bedroom flat for rent
Parkside Court, London, E16

Letting details
- Let available date:
- 23/02/2026
- Deposit:
- £2,500A deposit provides security for a landlord against damage, or unpaid rent by a tenant.Read more about deposit in our glossary page.
- Min. Tenancy:
- Ask agent How long the landlord offers to let the property for.Read more about tenancy length in our glossary page.
- Let type:
- Long term
- Furnish type:
- Furnished
- Council Tax:
- Ask agent
- PROPERTY TYPE
Flat
- BEDROOMS
2
- BATHROOMS
3
- SIZE
Ask agent
Key features
- No Agent Fees
- Students Can Enquire
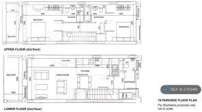
- Property Reference Number: 2743461
Description
Furnished 2 Double Bedroom, Duplex Apartment Overlooking the river and Thames Barrier Park
Rarely available 2nd floor 2-bed duplex apartment overlooking the award-winning green flag Thames Barrier Park. The property is just 0.2miles from Pontoon Dock DLR station (London's most reliable train line), and within walking distance to pubs, several convenience stores, coffee shops and restaurants at Royal Wharf.
The Waterside Park development in which it is based has 24 hour security, a dedicated concierge and optional secure private parking with direct lift access.
The apartment comes with two balconies, both overlook the park and river Thames. It has two generous double bedrooms- both with full sized built-in wardrobes, and has three bathrooms (one ensuite and one bathroom upstairs plus one additional toilet downstairs). The open plan kitchen and living room run almost the length of the apartment, finishing with floor to ceiling windows which open up to the stunning balcony and park view.
It has a 'B' efficiency rating and has been home to one family since it was build 10 years ago. We are looking for like-minded tenants to take care of the spotless property which will be available from mid Feb 2026.
Summary & Exclusions:
- Rent Amount: £2,500.00 per month (£576.92 per week)
- Deposit / Bond: £2,500.00
- 2 Bedrooms
- 3 Bathrooms
- Property comes furnished
- Available to move in from 23 February 2026
- Minimum tenancy term is 12 months
- Maximum number of tenants is 2
- Students welcome to enquire
- No Pets, sorry
- No Smokers
- Family Friendly
- Bills not included
- Property has parking
- No Garden Access
- EPC Rating: B
If calling, please quote reference: 2743461
Fees:
You will not be charged any admin fees.
** Contact today to book a viewing and have the landlord show you round! **
Request Details form responded to 24/7, with phone bookings available 9am-9pm, 7 days a week.
- COUNCIL TAXA payment made to your local authority in order to pay for local services like schools, libraries, and refuse collection. The amount you pay depends on the value of the property.Read more about council Tax in our glossary page.
- Ask agent
- PARKINGDetails of how and where vehicles can be parked, and any associated costs.Read more about parking in our glossary page.
- Private
- GARDENA property has access to an outdoor space, which could be private or shared.
- Ask agent
- ACCESSIBILITYHow a property has been adapted to meet the needs of vulnerable or disabled individuals.Read more about accessibility in our glossary page.
- Ask agent
Energy performance certificate - ask agent
Parkside Court, London, E16
Add an important place to see how long it'd take to get there from our property listings.
__mins driving to your place
Notes
Staying secure when looking for property
Ensure you're up to date with our latest advice on how to avoid fraud or scams when looking for property online.
Visit our security centre to find out moreDisclaimer - Property reference 274346104012026. The information displayed about this property comprises a property advertisement. Rightmove.co.uk makes no warranty as to the accuracy or completeness of the advertisement or any linked or associated information, and Rightmove has no control over the content. This property advertisement does not constitute property particulars. The information is provided and maintained by OpenRent, London. Please contact the selling agent or developer directly to obtain any information which may be available under the terms of The Energy Performance of Buildings (Certificates and Inspections) (England and Wales) Regulations 2007 or the Home Report if in relation to a residential property in Scotland.
*This is the average speed from the provider with the fastest broadband package available at this postcode. The average speed displayed is based on the download speeds of at least 50% of customers at peak time (8pm to 10pm). Fibre/cable services at the postcode are subject to availability and may differ between properties within a postcode. Speeds can be affected by a range of technical and environmental factors. The speed at the property may be lower than that listed above. You can check the estimated speed and confirm availability to a property prior to purchasing on the broadband provider's website. Providers may increase charges. The information is provided and maintained by Decision Technologies Limited. **This is indicative only and based on a 2-person household with multiple devices and simultaneous usage. Broadband performance is affected by multiple factors including number of occupants and devices, simultaneous usage, router range etc. For more information speak to your broadband provider.
Map data ©OpenStreetMap contributors.




