
School Road, Kelvedon Hatch, Brentwood
- PROPERTY TYPE
Land
- SIZE
Ask agent
Key features
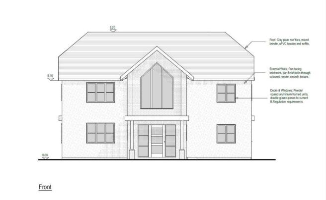
- Planning Permission Granted
- Two Detached Family Homes
- Popular Location
- x 1 New Build
- x 1 Extension of Existing Property
Description
Kelvedon Hatch is known for its charming village atmosphere, offering a peaceful retreat while still being conveniently located near essential amenities. The area boasts excellent transport links, providing easy access to nearby towns and cities, making it perfect for families and commuters alike.
This plot of land is not only a sound investment but also a chance to contribute to the community by creating modern family homes in a sought-after location. With the planning permission in place, the groundwork is laid for a project that can cater to the needs of future residents, ensuring a blend of comfort and contemporary living.
Do not miss this unique opportunity to secure a piece of land in a thriving area, where you can bring your vision to life and create homes that will be cherished for years to come.
Brochures
School Road, Kelvedon Hatch, BrentwoodBrochureSchool Road, Kelvedon Hatch, Brentwood
NEAREST STATIONS
Distances are straight line measurements from the centre of the postcode- Shenfield Station3.5 miles
- Brentwood Station3.9 miles
- Ingatestone Station4.8 miles
Notes
Disclaimer - Property reference 34397151. The information displayed about this property comprises a property advertisement. Rightmove.co.uk makes no warranty as to the accuracy or completeness of the advertisement or any linked or associated information, and Rightmove has no control over the content. This property advertisement does not constitute property particulars. The information is provided and maintained by Kiln and Lodge Estates, Chelmsford. Please contact the selling agent or developer directly to obtain any information which may be available under the terms of The Energy Performance of Buildings (Certificates and Inspections) (England and Wales) Regulations 2007 or the Home Report if in relation to a residential property in Scotland.
Map data ©OpenStreetMap contributors.





