
2 bedroom semi-detached house for sale
Turton Way, Kenilworth

- PROPERTY TYPE
Semi-Detached
- BEDROOMS
2
- BATHROOMS
1
- SIZE
592 sq ft
55 sq m
- TENUREDescribes how you own a property. There are different types of tenure - freehold, leasehold, and commonhold.Read more about tenure in our glossary page.
Freehold
Key features
- Two Double Bedrooms
- Gas Central Heating & Double Glazing
- Block Paved Driveway Parking
- No Chain Involved
- Popular Residential Location
- EPC Rating C
Description
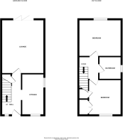
ENTRANCE HALL With radiator, telephone point and understairs storage cupboard.
KITCHEN 10' 9" x 5' 8" (3.28m x 1.73m) Located to the front of the property with dual aspect windows and an extensive range of modern white cupboard and drawer units with matching wall cupboards and complementary round edged worksurfaces. Space for tall fridge/freezer, space and plumbing for washing machine, built in four ring gas hob with electric oven under and stainless steel extractor hood over. Cupboard housing Worcester gas boiler.
LOUNGE/DINER 13' 9" x 11' 8" (4.19m x 3.56m) To the rear of the house with bi-fold doors providing direct access to the rear garden. Radiator, dimmer switch and tv aerial connection.
FIRST FLOOR LANDING With access to roof storage space.
DOUBLE BEDROOM 11' 9" x 8' 9" (3.58m x 2.67m) With rear garden views and radiator.
DOUBLE BEDROOM 9' 2" x 8' 6" (2.79m x 2.59m) Exc Wardrobes Having large double wardrobe and further wardrobe/storage cupboard. Radiator.
BATHROOM A fully tiled modern bathroom with 'p' shaped bath, shower and glazed shower screen. Vanity basin with cupboard under and w.c. Heated towel rail.
OUTSIDE
PARKING The front and side of the property has been block paved to provide ample parking for several vehicles.
REAR GARDEN The rear garden has an area of lawn and full width block paved patio.
Brochures
Brochure Turton W...- COUNCIL TAXA payment made to your local authority in order to pay for local services like schools, libraries, and refuse collection. The amount you pay depends on the value of the property.Read more about council Tax in our glossary page.
- Band: C
- PARKINGDetails of how and where vehicles can be parked, and any associated costs.Read more about parking in our glossary page.
- Off street
- GARDENA property has access to an outdoor space, which could be private or shared.
- Yes
- ACCESSIBILITYHow a property has been adapted to meet the needs of vulnerable or disabled individuals.Read more about accessibility in our glossary page.
- Ask agent
Turton Way, Kenilworth
Add an important place to see how long it'd take to get there from our property listings.
__mins driving to your place
Get an instant, personalised result:
- Show sellers you’re serious
- Secure viewings faster with agents
- No impact on your credit score

Your mortgage
Notes
Staying secure when looking for property
Ensure you're up to date with our latest advice on how to avoid fraud or scams when looking for property online.
Visit our security centre to find out moreDisclaimer - Property reference 103644001813. The information displayed about this property comprises a property advertisement. Rightmove.co.uk makes no warranty as to the accuracy or completeness of the advertisement or any linked or associated information, and Rightmove has no control over the content. This property advertisement does not constitute property particulars. The information is provided and maintained by Julie Philpot, Kenilworth. Please contact the selling agent or developer directly to obtain any information which may be available under the terms of The Energy Performance of Buildings (Certificates and Inspections) (England and Wales) Regulations 2007 or the Home Report if in relation to a residential property in Scotland.
*This is the average speed from the provider with the fastest broadband package available at this postcode. The average speed displayed is based on the download speeds of at least 50% of customers at peak time (8pm to 10pm). Fibre/cable services at the postcode are subject to availability and may differ between properties within a postcode. Speeds can be affected by a range of technical and environmental factors. The speed at the property may be lower than that listed above. You can check the estimated speed and confirm availability to a property prior to purchasing on the broadband provider's website. Providers may increase charges. The information is provided and maintained by Decision Technologies Limited. **This is indicative only and based on a 2-person household with multiple devices and simultaneous usage. Broadband performance is affected by multiple factors including number of occupants and devices, simultaneous usage, router range etc. For more information speak to your broadband provider.
Map data ©OpenStreetMap contributors.





