1 bedroom flat for rent
Esmond Street, Yorkhill, Glasgow, G3

Letting details
- Let available date:
- 25/01/2026
- Deposit:
- £1,650A deposit provides security for a landlord against damage, or unpaid rent by a tenant.Read more about deposit in our glossary page.
- Min. Tenancy:
- Ask agent How long the landlord offers to let the property for.Read more about tenancy length in our glossary page.
- Let type:
- Long term
- Furnish type:
- Unfurnished
- Council Tax:
- Ask agent
- PROPERTY TYPE
Flat
- BEDROOMS
1
- BATHROOMS
1
- SIZE
Ask agent
Key features
- Double glazing
- Shower
- Washing machine
- Fridge Freezer
Description
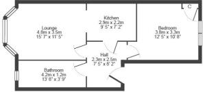
The property is entered into the reception hallway which offers access to all rooms. The bright dining lounge features a traditional bay window and has ample living space also offering access to the kitchen area. The kitchen hosts a range of floor and wall mounted modern fitted units and a selection of integrated appliances which include an ceramic hob, electric oven, fridge/freezer and washing machine.
The bedroom is a double in size with double glazing and ample space for furniture with a good sized storage cupboard. The bathroom comprises of a wash basin on entry with storage underneath, a heated towel rail, wc, bath with electric shower overhead as well as a large window for ventilation.
Further benefits include neutral décor throughout, secure entry, gas central heating and double glazing.
The property is located in a much sought after pocket of the West End where almost everything you need can be found within a short walk from the front door. There are a wide range of boutique shops, pubs, restaurants and supermarkets located on the nearby Argyle Street, as well as further choice located closer to the centre of the West End on Byres Road.
In terms of transport, Exhibition Centre Train Station is located within a mile of the property and there are various bus routes which can be reached on Argyle Street. Kelvingrove Park is also close by where there are regular events held and is a highly popular outdoor space close to the City Centre. EPC rating: C. Landlord Registration Number: 1520707/260/22122.
- COUNCIL TAXA payment made to your local authority in order to pay for local services like schools, libraries, and refuse collection. The amount you pay depends on the value of the property.Read more about council Tax in our glossary page.
- Band: B
- PARKINGDetails of how and where vehicles can be parked, and any associated costs.Read more about parking in our glossary page.
- On street
- GARDENA property has access to an outdoor space, which could be private or shared.
- Communal garden
- ACCESSIBILITYHow a property has been adapted to meet the needs of vulnerable or disabled individuals.Read more about accessibility in our glossary page.
- Ask agent
Esmond Street, Yorkhill, Glasgow, G3
Add an important place to see how long it'd take to get there from our property listings.
__mins driving to your place



Notes
Staying secure when looking for property
Ensure you're up to date with our latest advice on how to avoid fraud or scams when looking for property online.
Visit our security centre to find out moreDisclaimer - Property reference P2270. The information displayed about this property comprises a property advertisement. Rightmove.co.uk makes no warranty as to the accuracy or completeness of the advertisement or any linked or associated information, and Rightmove has no control over the content. This property advertisement does not constitute property particulars. The information is provided and maintained by CAIRN LETTING & ESTATE AGENCY, Glasgow. Please contact the selling agent or developer directly to obtain any information which may be available under the terms of The Energy Performance of Buildings (Certificates and Inspections) (England and Wales) Regulations 2007 or the Home Report if in relation to a residential property in Scotland.
*This is the average speed from the provider with the fastest broadband package available at this postcode. The average speed displayed is based on the download speeds of at least 50% of customers at peak time (8pm to 10pm). Fibre/cable services at the postcode are subject to availability and may differ between properties within a postcode. Speeds can be affected by a range of technical and environmental factors. The speed at the property may be lower than that listed above. You can check the estimated speed and confirm availability to a property prior to purchasing on the broadband provider's website. Providers may increase charges. The information is provided and maintained by Decision Technologies Limited. **This is indicative only and based on a 2-person household with multiple devices and simultaneous usage. Broadband performance is affected by multiple factors including number of occupants and devices, simultaneous usage, router range etc. For more information speak to your broadband provider.
Map data ©OpenStreetMap contributors.




