
3 bedroom semi-detached house for sale
Ermine Way, Bacton

- PROPERTY TYPE
Semi-Detached
- BEDROOMS
3
- BATHROOMS
1
- SIZE
Ask agent
Key features
- Shared Ownership
- Three Bedrooms
- Allocated Parking For Two Cars
- Price Based On 25% Share
- No Staircase Restrictions
- Larger share is available
Description
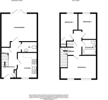
WC
FIRST FLOOR LANDING
BATHROOM
White suite comprising of a close coupled WC, pedestal wash hand basin, panelled bath with shower over. Heated towel rail and complimentary tiling.
OUTSIDE SPACE
The rear gardens commence with a patio area and the remainder laid to lawn. Timber shed and fence. Parking for two cars
AGENTS NOTE
Full price: £280,000
25% share: £70,000
75% Rent: current - £496.65 - From the 01/04/2026 it'll be £521.48
Service charge: Current - £46.03 - From the 01/04/2026 it'll be £50.60
Lease of 988 years & 7 months
Also, you must have a local connection to Mid Suffolk
either through residency, work or family.
KITCHEN
3.50 m x 2.60 m (11'6" x 8'6")
A modern kitchen with a range of base and wall units. Roll edge work surfaces with inset single bowl and drainer sink unit. Integrated hob, cooker and extractor. Space for appliances.
KITCHEN
3.50 m x 2.60 m (11'6" x 8'6")
A modern kitchen with a range of base and wall units. Roll edge work surfaces with inset single bowl and drainer sink unit. Integrated hob, cooker and extractor. Space for appliances.
LOUNGE/DINER
4.90 m x 3.80 m (16'1" x 12'6")
BEDROOM 1
4.10 m x 3.20 m (13'5" x 10'6")
BEDROOM 2
3.60 m x 2.30 m (11'10" x 7'7")
BEDROOM 3
3.40 m x 2.50 m (11'2" x 8'2")
Brochures
1_Key_information_about_the_Shared_Ownership_home- COUNCIL TAXA payment made to your local authority in order to pay for local services like schools, libraries, and refuse collection. The amount you pay depends on the value of the property.Read more about council Tax in our glossary page.
- Ask agent
- PARKINGDetails of how and where vehicles can be parked, and any associated costs.Read more about parking in our glossary page.
- Allocated
- GARDENA property has access to an outdoor space, which could be private or shared.
- Yes
- ACCESSIBILITYHow a property has been adapted to meet the needs of vulnerable or disabled individuals.Read more about accessibility in our glossary page.
- Ask agent
Energy performance certificate - ask agent
Ermine Way, Bacton
Add an important place to see how long it'd take to get there from our property listings.
__mins driving to your place
Get an instant, personalised result:
- Show sellers you’re serious
- Secure viewings faster with agents
- No impact on your credit score
Your mortgage
Notes
Staying secure when looking for property
Ensure you're up to date with our latest advice on how to avoid fraud or scams when looking for property online.
Visit our security centre to find out moreDisclaimer - Property reference MJM-29204998. The information displayed about this property comprises a property advertisement. Rightmove.co.uk makes no warranty as to the accuracy or completeness of the advertisement or any linked or associated information, and Rightmove has no control over the content. This property advertisement does not constitute property particulars. The information is provided and maintained by Bychoice, Bury St. Edmunds. Please contact the selling agent or developer directly to obtain any information which may be available under the terms of The Energy Performance of Buildings (Certificates and Inspections) (England and Wales) Regulations 2007 or the Home Report if in relation to a residential property in Scotland.
*This is the average speed from the provider with the fastest broadband package available at this postcode. The average speed displayed is based on the download speeds of at least 50% of customers at peak time (8pm to 10pm). Fibre/cable services at the postcode are subject to availability and may differ between properties within a postcode. Speeds can be affected by a range of technical and environmental factors. The speed at the property may be lower than that listed above. You can check the estimated speed and confirm availability to a property prior to purchasing on the broadband provider's website. Providers may increase charges. The information is provided and maintained by Decision Technologies Limited. **This is indicative only and based on a 2-person household with multiple devices and simultaneous usage. Broadband performance is affected by multiple factors including number of occupants and devices, simultaneous usage, router range etc. For more information speak to your broadband provider.
Map data ©OpenStreetMap contributors.








