3 bedroom semi-detached house for sale
Invergarry Drive, Thornliebank

- PROPERTY TYPE
Semi-Detached
- BEDROOMS
3
- BATHROOMS
2
- SIZE
1,152 sq ft
107 sq m
- TENUREDescribes how you own a property. There are different types of tenure - freehold, leasehold, and commonhold.Read more about tenure in our glossary page.
Freehold
Key features
- ** SOLD AT CLOSING DATE ** A beautifully appointed semi detached family house enjoying a prominent and pleasant position with this highly sought after development.
- Extended semi detached villa.
- 3 bedrooms.
- Open plan family living.
- Expansive and mature garden grounds.
- South facing rear gardens.
- Driveway and garage.
- Excellent proximity to amenities and transport links.
Description
Description
The property has been extended and reconfigured offering a vast amount of flowing family space with stylish, contemporary finishing. Enhanced and reconfigured over two levels the specification includes a gas central heating system, double glazed windows and doors, and modern kitchen and bathrooms.
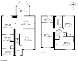
The light and airy accommodation in brief extends to traditional reception hallway, exceptional sized lounge, conservatory, open plan kitchen with a range of modern base, wall mounted units with dining area, a utility room and cloakroom/WC complete the ground floor accommodation. The upper level provides access to principal bedroom with en-suite. Two further well proportioned double bedrooms with ample storage and main family bathroom.
Externally the landscaped garden grounds to the rear are magnificent, south facing and extremely private, offering decked patio areas and have been laid for ease of maintenance providing an ideal space for outside enjoyment. The established gardens have a pleasant mix of mature trees and shrub borders giving all year round interest. Driveway to the front offering parking for multiple vehicles.
EER Band C.
Local Area
Perfectly placed to take advantage of all local amenities in nearby Giffnock, Newton Mearns and Thornliebank. The development is perfectly placed for a variety of amenities which include Mearns Cross Shopping Centre which is a short drive away, Greenlaw Village which offers Waitrose and excellent further shopping facilities, nearby motorway links and Deaconsbank Golf course and Patterton Train Station are a short distance away. An abundance of sports and leisure facilities are available within East Renfrewshire including David Lloyd Sports Club, Whitecraigs Golf Club, Giffnock and Whitecraigs Tennis Clubs and Rouken Glen Park.
Directions
From our office on Ayr Road, Newton Mearns travel city bound and upon reaching the traffic lights at Whitecraigs train station turn left onto Davieland Road, proceed along same and at next set of traffic lights turn left onto Rouken Glen Road. Continue onwards and on reaching Spiersbridge roundabout take the first left on Stewarton Road then first left onto Invergarry Drive following the road round and the property can be foun on the left hand side from this approach.
Brochures
Brochure 1Web Details- COUNCIL TAXA payment made to your local authority in order to pay for local services like schools, libraries, and refuse collection. The amount you pay depends on the value of the property.Read more about council Tax in our glossary page.
- Band: D
- PARKINGDetails of how and where vehicles can be parked, and any associated costs.Read more about parking in our glossary page.
- Driveway
- GARDENA property has access to an outdoor space, which could be private or shared.
- Yes
- ACCESSIBILITYHow a property has been adapted to meet the needs of vulnerable or disabled individuals.Read more about accessibility in our glossary page.
- Ask agent
Invergarry Drive, Thornliebank
Add an important place to see how long it'd take to get there from our property listings.
__mins driving to your place
Get an instant, personalised result:
- Show sellers you’re serious
- Secure viewings faster with agents
- No impact on your credit score
Your mortgage
Notes
Staying secure when looking for property
Ensure you're up to date with our latest advice on how to avoid fraud or scams when looking for property online.
Visit our security centre to find out moreDisclaimer - Property reference NM4672. The information displayed about this property comprises a property advertisement. Rightmove.co.uk makes no warranty as to the accuracy or completeness of the advertisement or any linked or associated information, and Rightmove has no control over the content. This property advertisement does not constitute property particulars. The information is provided and maintained by Corum, Newton Mearns. Please contact the selling agent or developer directly to obtain any information which may be available under the terms of The Energy Performance of Buildings (Certificates and Inspections) (England and Wales) Regulations 2007 or the Home Report if in relation to a residential property in Scotland.
*This is the average speed from the provider with the fastest broadband package available at this postcode. The average speed displayed is based on the download speeds of at least 50% of customers at peak time (8pm to 10pm). Fibre/cable services at the postcode are subject to availability and may differ between properties within a postcode. Speeds can be affected by a range of technical and environmental factors. The speed at the property may be lower than that listed above. You can check the estimated speed and confirm availability to a property prior to purchasing on the broadband provider's website. Providers may increase charges. The information is provided and maintained by Decision Technologies Limited. **This is indicative only and based on a 2-person household with multiple devices and simultaneous usage. Broadband performance is affected by multiple factors including number of occupants and devices, simultaneous usage, router range etc. For more information speak to your broadband provider.
Map data ©OpenStreetMap contributors.







