
Mill Lane, Godalming, Surrey, GU7

- PROPERTY TYPE
Flat
- BEDROOMS
2
- BATHROOMS
2
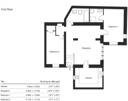
- SIZE
852 sq ft
79 sq m
- TENUREDescribes how you own a property. There are different types of tenure - freehold, leasehold, and commonhold.Read more about tenure in our glossary page.
Ask agent
Description
Grade II listed mill conversion 2-bedroom apartment for sale in Godalming. with exposed beams, patio, parking, share of freehold and 1-minute walk to station. Ideal for commuters and downsizers.
Set within the historic Hatch Mill, this beautifully proportioned two-bedroom, two-bathroom apartment offers a rare opportunity to secure a character-rich home in one of Godalming’s most iconic Grade II listed buildings.
This apartment now represents the last remaining two-bedroom home within this landmark mill conversion. With the majority of residences already sold, it offers a rare chance to secure a larger-format apartment combining generous proportions, architectural character and modern convenience, all within a highly sought-after central location.
Positioned on the first floor, this characterful apartment combines the scale and practicality often missing from modern apartments with the architectural depth of a historic mill conversion. The layout has been carefully considered to suit contemporary living, with a generous central reception space that forms the heart of the home. Original structural elements and deep-set windows subtly reference the building’s industrial heritage, creating a sense of individuality that simply cannot be replicated in standard new-build developments.
The separate kitchen is a key differentiator, providing a defined cooking space with integrated appliances and excellent storage, ideal for those who value both form and function. The reception room comfortably accommodates both dining and living zones, making it equally well suited to entertaining or everyday living.
Both bedrooms are well-proportioned doubles. The principal bedroom benefits from its own en-suite bathroom, while a second stylish family bathroom serves the remainder of the apartment, offering flexibility for guests, sharers or visiting family.
Uniquely for an apartment of this type, this home also enjoys access to its own patio area just outside the front door, alongside landscaped communal gardens. Further benefits include allocated parking and a share of freehold, providing long-term peace of mind.
The location is exceptional. Godalming Station is just a one-minute walk away, offering direct services to London Waterloo in approximately 45 minutes and Guildford in under 10 minutes. The town’s historic High Street, riverside walks along the Wey and easy access to the Surrey Hills AONB complete a lifestyle that balances connectivity with countryside charm.
This is a home designed for buyers who want space, character and convenience without compromise.
Some photographs and images are digitally dressed or computer-generated for illustrative purposes only. Certain images may show alternative plots within Hatch Mill and are intended to demonstrate typical finishes and styling.
Opportunities of this scale, character and location are increasingly rare in Godalming. As one of the final homes available at Hatch Mill, early enquiry is strongly advised to avoid disappointment. Contact us today to arrange your viewing and secure one of the final remaining homes at Hatch Mill.
- COUNCIL TAXA payment made to your local authority in order to pay for local services like schools, libraries, and refuse collection. The amount you pay depends on the value of the property.Read more about council Tax in our glossary page.
- Band: TBC
- PARKINGDetails of how and where vehicles can be parked, and any associated costs.Read more about parking in our glossary page.
- Yes
- GARDENA property has access to an outdoor space, which could be private or shared.
- Yes
- ACCESSIBILITYHow a property has been adapted to meet the needs of vulnerable or disabled individuals.Read more about accessibility in our glossary page.
- Ask agent
Energy performance certificate - ask agent
Mill Lane, Godalming, Surrey, GU7
Add an important place to see how long it'd take to get there from our property listings.
__mins driving to your place
Get an instant, personalised result:
- Show sellers you’re serious
- Secure viewings faster with agents
- No impact on your credit score
Your mortgage
Notes
Staying secure when looking for property
Ensure you're up to date with our latest advice on how to avoid fraud or scams when looking for property online.
Visit our security centre to find out moreDisclaimer - Property reference LNH250649. The information displayed about this property comprises a property advertisement. Rightmove.co.uk makes no warranty as to the accuracy or completeness of the advertisement or any linked or associated information, and Rightmove has no control over the content. This property advertisement does not constitute property particulars. The information is provided and maintained by Seymours Estate Agents, Godalming. Please contact the selling agent or developer directly to obtain any information which may be available under the terms of The Energy Performance of Buildings (Certificates and Inspections) (England and Wales) Regulations 2007 or the Home Report if in relation to a residential property in Scotland.
*This is the average speed from the provider with the fastest broadband package available at this postcode. The average speed displayed is based on the download speeds of at least 50% of customers at peak time (8pm to 10pm). Fibre/cable services at the postcode are subject to availability and may differ between properties within a postcode. Speeds can be affected by a range of technical and environmental factors. The speed at the property may be lower than that listed above. You can check the estimated speed and confirm availability to a property prior to purchasing on the broadband provider's website. Providers may increase charges. The information is provided and maintained by Decision Technologies Limited. **This is indicative only and based on a 2-person household with multiple devices and simultaneous usage. Broadband performance is affected by multiple factors including number of occupants and devices, simultaneous usage, router range etc. For more information speak to your broadband provider.
Map data ©OpenStreetMap contributors.








