6 bedroom apartment for rent
East Street, Bristol

Letting details
- Let available date:
- Now
- Deposit:
- £5,192A deposit provides security for a landlord against damage, or unpaid rent by a tenant.Read more about deposit in our glossary page.
- Min. Tenancy:
- Ask agent How long the landlord offers to let the property for.Read more about tenancy length in our glossary page.
- Furnish type:
- Furnished
- Council Tax:
- Ask agent
- PROPERTY TYPE
Apartment
- BEDROOMS
6
- BATHROOMS
3
- SIZE
Ask agent
Key features
- Newly renovated
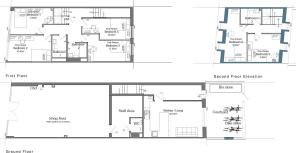
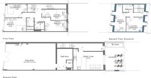
- Six Double Bedrooms
- Three modern shower rooms
- Generous open plan communal space
- Excellent highstreet location
- Close to both UWE & UOB
- Patio area with Bin & Bike Store
- Amenities on your door step
- Transport links within walking distance
- Furnished bedrooms
Description
£4500.00 Per month (£750.00 per room)
This newly renovated six bedroom, three bathroom student home on East Street, Bristol has been fully refurbished to the highest standard – ideal for students seeking modern, stylish and convenient accommodation. With spacious bedrooms, a sleek, fully fitted kitchen, large communal living space, and private terrace, it’s the perfect base for student life. Located just a short walk from East Street’s shops, cafes, and pubs, and only 20-25 minutes by bus to both the University of Bristol and UWE, you’ll have everything you need within reach. Supermarkets, excellent transport links, and the city centre are all nearby, ensuring convenience at every turn. Don’t miss out on this incredible student property – get in touch to discuss securing the property. Available from August 26/27.
The images used in this advertisement are CGI and are for illustrative purposes only. The property is ready to view, call to secure your group viewing today!
Brochures
East Street, BristolBrochure- COUNCIL TAXA payment made to your local authority in order to pay for local services like schools, libraries, and refuse collection. The amount you pay depends on the value of the property.Read more about council Tax in our glossary page.
- Band: TBC
- PARKINGDetails of how and where vehicles can be parked, and any associated costs.Read more about parking in our glossary page.
- Permit
- GARDENA property has access to an outdoor space, which could be private or shared.
- Yes
- ACCESSIBILITYHow a property has been adapted to meet the needs of vulnerable or disabled individuals.Read more about accessibility in our glossary page.
- Ask agent
Energy performance certificate - ask agent
East Street, Bristol
Add an important place to see how long it'd take to get there from our property listings.
__mins driving to your place

Notes
Staying secure when looking for property
Ensure you're up to date with our latest advice on how to avoid fraud or scams when looking for property online.
Visit our security centre to find out moreDisclaimer - Property reference 34420797. The information displayed about this property comprises a property advertisement. Rightmove.co.uk makes no warranty as to the accuracy or completeness of the advertisement or any linked or associated information, and Rightmove has no control over the content. This property advertisement does not constitute property particulars. The information is provided and maintained by Missiato Estates, Bristol. Please contact the selling agent or developer directly to obtain any information which may be available under the terms of The Energy Performance of Buildings (Certificates and Inspections) (England and Wales) Regulations 2007 or the Home Report if in relation to a residential property in Scotland.
*This is the average speed from the provider with the fastest broadband package available at this postcode. The average speed displayed is based on the download speeds of at least 50% of customers at peak time (8pm to 10pm). Fibre/cable services at the postcode are subject to availability and may differ between properties within a postcode. Speeds can be affected by a range of technical and environmental factors. The speed at the property may be lower than that listed above. You can check the estimated speed and confirm availability to a property prior to purchasing on the broadband provider's website. Providers may increase charges. The information is provided and maintained by Decision Technologies Limited. **This is indicative only and based on a 2-person household with multiple devices and simultaneous usage. Broadband performance is affected by multiple factors including number of occupants and devices, simultaneous usage, router range etc. For more information speak to your broadband provider.
Map data ©OpenStreetMap contributors.




