South Loop Park, Birmingham, West Midlands, B16

Letting details
- Let available date:
- 02/03/2026
- Deposit:
- £2,423A deposit provides security for a landlord against damage, or unpaid rent by a tenant.Read more about deposit in our glossary page.
- Min. Tenancy:
- Ask agent How long the landlord offers to let the property for.Read more about tenancy length in our glossary page.
- Let type:
- Long term
- Furnish type:
- Furnished
- Council Tax:
- Ask agent
- PROPERTY TYPE
House
- BEDROOMS
5
- BATHROOMS
4
- SIZE
Ask agent
Key features
- Five Generously Sized Bedrooms
- Four Modern Bathrooms
- Multiple Balconies
- Open Plan Kitchen/Diner
- Outdoor Canalside Patio
- Available early March
- EPC Rating: B
- Council Tax Band: E
Description
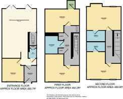
Welcome to this stunning five-bedroom, four-bathroom townhouse, spread across three spacious storeys and designed for modern family living. Perfectly positioned with a private back garden that opens directly onto a serene canal, this home combines urban convenience with tranquil waterside charm.
As you enter the home, you're greeted by a bright and spacious open-plan kitchen and dining area on the ground floor — the heart of the house. This contemporary space is ideal for both relaxed family meals and entertaining guests, featuring sleek cabinetry, high-end appliances, and plenty of room for a large dining setup. The open layout flows effortlessly into the rear garden, where you can enjoy alfresco dining or simply unwind while watching the water.
The first and second floors offer a flexible living arrangement, with four generously sized bedrooms that can easily be adapted to suit your lifestyle — whether you're accommodating a growing family, setting up guest rooms, or creating a home office. The four modern bathrooms, including en-suite options, ensure comfort and privacy for all.
Two of the bedrooms benefit from private balconies, offering peaceful spots to enjoy a morning coffee or an evening drink while taking in the view — canal views, the other overlooking the quiet residential street.
- COUNCIL TAXA payment made to your local authority in order to pay for local services like schools, libraries, and refuse collection. The amount you pay depends on the value of the property.Read more about council Tax in our glossary page.
- Band: E
- PARKINGDetails of how and where vehicles can be parked, and any associated costs.Read more about parking in our glossary page.
- Yes
- GARDENA property has access to an outdoor space, which could be private or shared.
- Yes
- ACCESSIBILITYHow a property has been adapted to meet the needs of vulnerable or disabled individuals.Read more about accessibility in our glossary page.
- Ask agent
South Loop Park, Birmingham, West Midlands, B16
Add an important place to see how long it'd take to get there from our property listings.
__mins driving to your place
Notes
Staying secure when looking for property
Ensure you're up to date with our latest advice on how to avoid fraud or scams when looking for property online.
Visit our security centre to find out moreDisclaimer - Property reference JSB250049_L. The information displayed about this property comprises a property advertisement. Rightmove.co.uk makes no warranty as to the accuracy or completeness of the advertisement or any linked or associated information, and Rightmove has no control over the content. This property advertisement does not constitute property particulars. The information is provided and maintained by John Shepherd Lettings, Birmingham. Please contact the selling agent or developer directly to obtain any information which may be available under the terms of The Energy Performance of Buildings (Certificates and Inspections) (England and Wales) Regulations 2007 or the Home Report if in relation to a residential property in Scotland.
*This is the average speed from the provider with the fastest broadband package available at this postcode. The average speed displayed is based on the download speeds of at least 50% of customers at peak time (8pm to 10pm). Fibre/cable services at the postcode are subject to availability and may differ between properties within a postcode. Speeds can be affected by a range of technical and environmental factors. The speed at the property may be lower than that listed above. You can check the estimated speed and confirm availability to a property prior to purchasing on the broadband provider's website. Providers may increase charges. The information is provided and maintained by Decision Technologies Limited. **This is indicative only and based on a 2-person household with multiple devices and simultaneous usage. Broadband performance is affected by multiple factors including number of occupants and devices, simultaneous usage, router range etc. For more information speak to your broadband provider.
Map data ©OpenStreetMap contributors.





