Land for sale
Steventon New Road, Ludlow, SY8
- PROPERTY TYPE
Land
- SIZE
Ask agent
Key features
- Full planning permission
- Plot size approx. 175 sqm
- 25/00573/FUL
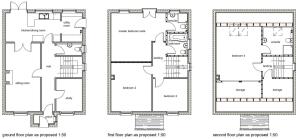
- Gross internal floor area for consented house 174.61 sqm
Description
Opportunity to acquire a residential building plot in the highly sought-after market town of Ludlow, located in South Shropshire. The plot, measuring approximately 175 square metres, benefits from full planning permission granted by Shropshire Council under reference 25/00573/FUL. The consented scheme permits the construction of a residential dwelling with a gross internal floor area of 174.61 square metres, making it ideal for a spacious, modern home in an established and picturesque setting.
There is a CIL liability on the site however, it is worth noting that exemptions may be available for self-builders, provided the appropriate application is made and conditions are met.
This plot presents an excellent chance to create a bespoke home in one of Shropshire’s most desirable towns. Given the rarity of central building plots in Ludlow, especially with planning permission already in place, this is a particularly appealing opportunity for private individuals, developers, or self-build enthusiasts.
Ludlow is a town steeped in history and character. Known for its medieval origins, it is home to more than 500 listed buildings, including the iconic Ludlow Castle and many half-timbered structures that line the charming high street. The town has long been admired for its architectural beauty and sense of community, offering a lifestyle that blends cultural richness with rural tranquillity.
Disclaimer
Buyer and Seller Protection Available
Buyers Compliance Administration Fee: In accordance with The
Money Laundering Regulations 2007, Agents are required to carry
out due diligence on all Clients to confirm their identity, including
eventual buyers of a property. The Agents use electronic verification
system to verify Clients’ identity. This is not a credit check so will
have no effect on credit history though may check details you supply
against any particulars on any database to which they have access.
By placing an offer on a property you agree that if your offer is
accepted, subject to contract, we as Agents for the seller can
complete this check for a fee of £75 inc VAT (£62.50 + VAT) per
property transaction, non-refundable under any circumstance. A
record of the search will be retained by the Agents.
Steventon New Road, Ludlow, SY8
NEAREST STATIONS
Distances are straight line measurements from the centre of the postcode- Ludlow Station0.7 miles



Notes
Disclaimer - Property reference da02156d-5352-4256-a224-9422437a5a15. The information displayed about this property comprises a property advertisement. Rightmove.co.uk makes no warranty as to the accuracy or completeness of the advertisement or any linked or associated information, and Rightmove has no control over the content. This property advertisement does not constitute property particulars. The information is provided and maintained by Nock Deighton, Land and New Homes, Bridgnorth. Please contact the selling agent or developer directly to obtain any information which may be available under the terms of The Energy Performance of Buildings (Certificates and Inspections) (England and Wales) Regulations 2007 or the Home Report if in relation to a residential property in Scotland.
Map data ©OpenStreetMap contributors.





