Land for sale
Building Plot Adjacent 78 Park Street Madeley Telford TF7 5JZ
- PROPERTY TYPE
Land
- SIZE
Ask agent
Key features
- Building plot with full planning permission
- Planning granted February 2025
- Planning reference is TWC/2024/0829
- Other relevant documents available on request
Description
This is an excellent opportunity to acquire a well-positioned residential building plot in the established and popular area of Madeley, Telford.
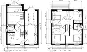
The plot benefits from full planning permission, granted by Telford & Wrekin Council under reference TWC/2024/0829, for the erection of a four-bedroom detached family home.
The approved plans outline a thoughtfully designed property ideal for modern living, offering well-proportioned accommodation across two floors.
The ground floor will feature a welcoming entrance hallway with room for office space, a spacious living room, an open-plan kitchen and dining area and downstairs WC.
Upstairs, the layout provides four good-sized bedrooms, including a master bedroom with an en-suite shower room, along with a family bathroom.
The plot offers space for off-road parking and a private rear garden, making it perfectly suited for family life. Its position within a quiet residential setting also adds to its appeal for both self-builders and developers looking for a ready-to-go project.
Further documents relating to the planning and plot itself are available on request and include search results and other relevant reports.
EPC Rating: E
Garden
Private rear garden
Disclaimer
Buyer and Seller Protection Available
Buyers Compliance Administration Fee: In accordance with The
Money Laundering Regulations 2007, Agents are required to carry
out due diligence on all Clients to confirm their identity, including
eventual buyers of a property. The Agents use electronic verification
system to verify Clients’ identity. This is not a credit check so will
have no effect on credit history though may check details you supply
against any particulars on any database to which they have access.
By placing an offer on a property you agree that if your offer is
accepted, subject to contract, we as Agents for the seller can
complete this check for a fee of £75 inc VAT (£62.50 + VAT) per
property transaction, non-refundable under any circumstance. A
record of the search will be retained by the Agents.
Building Plot Adjacent 78 Park Street Madeley Telford TF7 5JZ
NEAREST STATIONS
Distances are straight line measurements from the centre of the postcode- Telford Central Station3.2 miles
- Oakengates Station4.0 miles
- Shifnal Station4.2 miles



Notes
Disclaimer - Property reference a08d2c26-2273-44b2-9217-229ba1808330. The information displayed about this property comprises a property advertisement. Rightmove.co.uk makes no warranty as to the accuracy or completeness of the advertisement or any linked or associated information, and Rightmove has no control over the content. This property advertisement does not constitute property particulars. The information is provided and maintained by Nock Deighton, Land and New Homes, Bridgnorth. Please contact the selling agent or developer directly to obtain any information which may be available under the terms of The Energy Performance of Buildings (Certificates and Inspections) (England and Wales) Regulations 2007 or the Home Report if in relation to a residential property in Scotland.
Map data ©OpenStreetMap contributors.





