
4 bedroom detached house for rent
Cassia Road, Chichester, PO20

Letting details
- Let available date:
- 12/03/2026
- Deposit:
- £2,134A deposit provides security for a landlord against damage, or unpaid rent by a tenant.Read more about deposit in our glossary page.
- Min. Tenancy:
- Ask agent How long the landlord offers to let the property for.Read more about tenancy length in our glossary page.
- Let type:
- Long term
- Furnish type:
- Unfurnished
- Council Tax:
- Ask agent
- PROPERTY TYPE
Detached
- BEDROOMS
4
- BATHROOMS
2
- SIZE
Ask agent
Description
EPC:B. Council Tax Band: E
MATERIAL INFORMATION:
Type of Property - Detached House
Construction - Brick with Pitched Tiled Roof
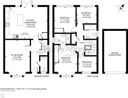
Rooms - See Description & Floor Plan
Utility Information - Mains Electricity & Gas
Sewerage - Mains
Heating - Gas Central Heating
Broadband - TBC (Download speed available from Ofcom or your provider)
Mobile Reception - Multiple Networks Available (Information available from Ofcom)
Parking - Off-road driveway parking for 2 cars.
Building Safety - No known issues to Agent
Restrictions - GARAGE NOT INCLUDED
Rights and Easements - N/A
Flood Risk - Low Risk (please see government website for further details - check long term flood risk postcode search)
Coastal Erosion - Property is not located on the coast line.
Planning Permission or Proposal for development (Local authority postcode search) - Planning applications nearby please see local authority website for further information.
Property accessibility/adaptations - Stairs leading to first floor
Coalfield or mining area - N/A
Local Area
The house is approximately one and a half miles from Chichester city centre which provides excellent high street shopping, many fashionable restaurants, cafes and bars, the Festival Theatre, cathedral and a mainline station to London Victoria. Goodwood is located to the north and is famous for its many event days including the world renowned Festival of Speed and Goodwood Revival for motor racing enthusiasts and a season of horse racing including the Qatar Goodwood Festival. There are excellent sailing facilities around Chichester Harbour and water sports from the beaches at West Wittering. The area is a paradise for wildlife enthusiasts, with beautiful walks and cycle tracks over the South Downs and around the harbour.
Brochures
Brochure- COUNCIL TAXA payment made to your local authority in order to pay for local services like schools, libraries, and refuse collection. The amount you pay depends on the value of the property.Read more about council Tax in our glossary page.
- Band: E
- PARKINGDetails of how and where vehicles can be parked, and any associated costs.Read more about parking in our glossary page.
- Yes
- GARDENA property has access to an outdoor space, which could be private or shared.
- Yes
- ACCESSIBILITYHow a property has been adapted to meet the needs of vulnerable or disabled individuals.Read more about accessibility in our glossary page.
- Ask agent
Energy performance certificate - ask agent
Cassia Road, Chichester, PO20
Add an important place to see how long it'd take to get there from our property listings.
__mins driving to your place
Notes
Staying secure when looking for property
Ensure you're up to date with our latest advice on how to avoid fraud or scams when looking for property online.
Visit our security centre to find out moreDisclaimer - Property reference 432418. The information displayed about this property comprises a property advertisement. Rightmove.co.uk makes no warranty as to the accuracy or completeness of the advertisement or any linked or associated information, and Rightmove has no control over the content. This property advertisement does not constitute property particulars. The information is provided and maintained by Henry Adams, Chichester. Please contact the selling agent or developer directly to obtain any information which may be available under the terms of The Energy Performance of Buildings (Certificates and Inspections) (England and Wales) Regulations 2007 or the Home Report if in relation to a residential property in Scotland.
*This is the average speed from the provider with the fastest broadband package available at this postcode. The average speed displayed is based on the download speeds of at least 50% of customers at peak time (8pm to 10pm). Fibre/cable services at the postcode are subject to availability and may differ between properties within a postcode. Speeds can be affected by a range of technical and environmental factors. The speed at the property may be lower than that listed above. You can check the estimated speed and confirm availability to a property prior to purchasing on the broadband provider's website. Providers may increase charges. The information is provided and maintained by Decision Technologies Limited. **This is indicative only and based on a 2-person household with multiple devices and simultaneous usage. Broadband performance is affected by multiple factors including number of occupants and devices, simultaneous usage, router range etc. For more information speak to your broadband provider.
Map data ©OpenStreetMap contributors.





