Studio flat for rent
Clarence Street, Folkestone, CT20

Letting details
- Let available date:
- Now
- Deposit:
- £770A deposit provides security for a landlord against damage, or unpaid rent by a tenant.Read more about deposit in our glossary page.
- Min. Tenancy:
- Ask agent How long the landlord offers to let the property for.Read more about tenancy length in our glossary page.
- Let type:
- Long term
- Furnish type:
- Unfurnished
- Council Tax:
- Ask agent
- PROPERTY TYPE
Studio
- BATHROOMS
1
- SIZE
Ask agent
Key features
- No Agent Fees
- Property Reference Number: 2775518
Description
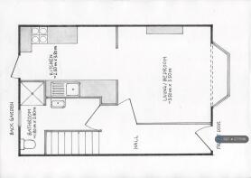
This well designed characterful studio flat makes a great living space for a single person. It is located at the (lower) ground floor of a Victorian terrace and very well maintained by the owner, a local artist, who lives with her partner on the top 2 floors. The flat itself has its own front door and a generous patio with shed at the back. It comprises of a small entrance hall with attached storage space, 1 bed/living room (approx. 3.50 x 3.50m), a spacious kitchen with cooker, fridge and a quirky vintage dresser with extending table (approx. 3.80 x 2.50m) and a bathroom with shower, basin, toilet and washing machine (approx. 2.90 x 1.80m). The total area is approximately 33 sq metres.
The flat is let unfurnished (see photos).
The property is located on a small residential road at the edge of the Creative Quarter within walking distance to Folkestone's creative venues, shops and restaurants, the harbour and beaches, town centre and central train station with regular trains into London. Medical surgeries, convenience stores and supermarkets are all near by. Ideal for someone without a car or who wants to be less dependent on it.
Parking is available on a resident permit.
The property is offered to a mature and respectful professional, who likes a quiet life style and is happy to contribute to a friendly atmosphere in the house. It is ideal for someone who loves having everything within walking distance, who wants to live by the sea and enjoy Folkestone's attractions and creative life while having an inviting private space to come home to.
Please be aware that with this property bills are charged at a standard £ 250/month to cover council tax, gas, electric, water, WiFi and TV.
Summary
Available immediately
Rent £ 675/month + £ 250/month for utility bills, council tax, TV + WiFi
Deposit £ 770
Minimum tenancy is 12 months
Maximum number of tenants is 1
Summary & Exclusions:
- Rent Amount: £675.00 per month (£155.77 per week)
- Deposit / Bond: £770.00
- 1 Bedrooms
- 1 Bathrooms
- Property comes unfurnished
- Available to move in from 02 February 2026
- Minimum tenancy term is 12 months
- Maximum number of tenants is 1
- No Students
- Pets considered / by arrangement
- No Smokers
- Not Suitable for Families / Children
- Bills not included
- Property has parking
- Property has garden access
- EPC Rating: D
If calling, please quote reference: 2775518
Fees:
You will not be charged any admin fees.
** Contact today to book a viewing and have the landlord show you round! **
Request Details form responded to 24/7, with phone bookings available 9am-9pm, 7 days a week.
- COUNCIL TAXA payment made to your local authority in order to pay for local services like schools, libraries, and refuse collection. The amount you pay depends on the value of the property.Read more about council Tax in our glossary page.
- Ask agent
- PARKINGDetails of how and where vehicles can be parked, and any associated costs.Read more about parking in our glossary page.
- Private
- GARDENA property has access to an outdoor space, which could be private or shared.
- Private garden
- ACCESSIBILITYHow a property has been adapted to meet the needs of vulnerable or disabled individuals.Read more about accessibility in our glossary page.
- Ask agent
Energy performance certificate - ask agent
Clarence Street, Folkestone, CT20
Add an important place to see how long it'd take to get there from our property listings.
__mins driving to your place
Notes
Staying secure when looking for property
Ensure you're up to date with our latest advice on how to avoid fraud or scams when looking for property online.
Visit our security centre to find out moreDisclaimer - Property reference 277551829012026. The information displayed about this property comprises a property advertisement. Rightmove.co.uk makes no warranty as to the accuracy or completeness of the advertisement or any linked or associated information, and Rightmove has no control over the content. This property advertisement does not constitute property particulars. The information is provided and maintained by OpenRent, London. Please contact the selling agent or developer directly to obtain any information which may be available under the terms of The Energy Performance of Buildings (Certificates and Inspections) (England and Wales) Regulations 2007 or the Home Report if in relation to a residential property in Scotland.
*This is the average speed from the provider with the fastest broadband package available at this postcode. The average speed displayed is based on the download speeds of at least 50% of customers at peak time (8pm to 10pm). Fibre/cable services at the postcode are subject to availability and may differ between properties within a postcode. Speeds can be affected by a range of technical and environmental factors. The speed at the property may be lower than that listed above. You can check the estimated speed and confirm availability to a property prior to purchasing on the broadband provider's website. Providers may increase charges. The information is provided and maintained by Decision Technologies Limited. **This is indicative only and based on a 2-person household with multiple devices and simultaneous usage. Broadband performance is affected by multiple factors including number of occupants and devices, simultaneous usage, router range etc. For more information speak to your broadband provider.
Map data ©OpenStreetMap contributors.




