Plot for sale
Development Opportunity In East Oxford
- PROPERTY TYPE
Plot
- SIZE
Ask agent
Description
DESCRIPTION
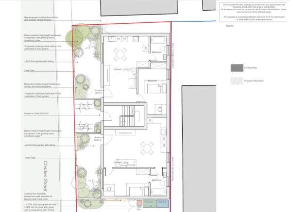
Planning has been granted for the erection of 6 x 1 bedroom apartments. Planning reference: 22/02082/FUL.
LOCATION
This exciting opportunity is c.1.5 miles to the east of the city centre, within walking distance of Magdalen Bridge. This part of the city is a vibrant and highly popular neighbourhood with many renowned restaurants and eateries close by including the Magdalen Arms, There are a great range of shops and other restaurants that can also be found along Magdalen Road and Cowley Road. A short walk through Iffley Fields leads down to the Isis river and towpath. This location also gives excellent access to the ring road and A/M40.
DIRECTIONS
From The Plain proceed along the Iffley Road. Take the twelfth turning on the left into Charles Street. The site will be seen on the right handside
VIEWING ARRANGEMENTS
Strictly by appointment with Penny & Sinclair.
TENURE & POSSESSION
Freehold
LOCAL AUTHORITY
Oxford City Council Town Hall St Aldates Oxford OX1 1BX Telephone
AGENTS NOTE
Penny & Sinclair, their clients and any joint agent gives notice to anyone reading these particulars that: i) the particulars do not constitute part of an offer or contract; ii) all descriptions, dimensions, references to the condition and necessary permissions for use and occupation, and other details are given without responsibility and any intending purchasers should not rely on them as statement or representations of fact. Iii) the text, photographs and plans are guidelines only and are not necessarily comprehensive. Any reference to alterations to, or use of, any part of the property does not mean that all necessary planning, building regulations or other consents have been obtained and Penny & Sinclair have not tested any services, equipment or facilities. A buyer or lessee must satisfy themselves by inspection or otherwise. Iv) the descriptions provided therein represent the opinion of the author and whilst given in good faith should not be construed as statements (truncated)
Development Opportunity In East Oxford
NEAREST STATIONS
Distances are straight line measurements from the centre of the postcode- Oxford Station1.8 miles
- Radley Station3.7 miles
- Oxford Parkway Station4.8 miles
Notes
Disclaimer - Property reference OSS230273. The information displayed about this property comprises a property advertisement. Rightmove.co.uk makes no warranty as to the accuracy or completeness of the advertisement or any linked or associated information, and Rightmove has no control over the content. This property advertisement does not constitute property particulars. The information is provided and maintained by Penny & Sinclair, Oxford. Please contact the selling agent or developer directly to obtain any information which may be available under the terms of The Energy Performance of Buildings (Certificates and Inspections) (England and Wales) Regulations 2007 or the Home Report if in relation to a residential property in Scotland.
Map data ©OpenStreetMap contributors.






