
Plot for sale
High Street, Crofton, Wakefield
- PROPERTY TYPE
Plot
- SIZE
Ask agent
Key features
- Prime Development Plot With Planning Permission
- Planning Approved 9 October 2025 (Ref: 25/01120/FUL)
- Ideal Opportunity For Builders
- Popular Village Location
- Close To Local Amenities
Description
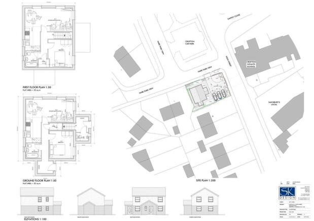
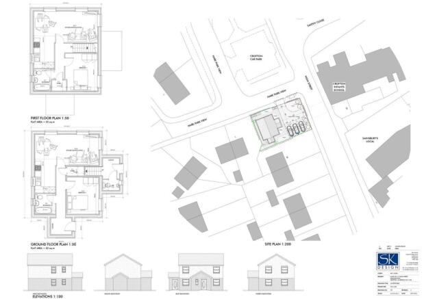
A valuable development opportunity comprising a level building plot with full planning permission for the construction of a two storey building providing two self contained apartments, situated in the heart of this popular and highly desirable village.
Full planning permission was granted on 9 October 2025 under reference 25/01120/FUL for the erection of a two storey building for residential use as two apartments. The plot benefits from a frontage of approximately 12 metres onto High Street, together with a return frontage of around 21 metres onto Hare Park View. All main services are available within the adjacent highway.
The approved scheme provides for a two storey building comprising a ground floor apartment extending to approximately 52 sq. metres and a first floor apartment extending to approximately 55 sq. metres. The plans also include a front parking area together with associated landscaping.
Crofton is a sought after village offering a good range of local shops, schools and recreational facilities. A wider selection of amenities can be found in the nearby city centre of Wakefield, which benefits from a mainline railway station and convenient access to the national motorway network.
Viewings - To view please contact our Wakefield office and they will be pleased to arrange a suitable appointment.
Brochures
High Street, Crofton, WakefieldBrochureHigh Street, Crofton, Wakefield
NEAREST STATIONS
Distances are straight line measurements from the centre of the postcode- Streethouse Station1.8 miles
- Sandal & Agbrigg Station2.3 miles
- Fitzwilliam Station2.7 miles



Notes
Disclaimer - Property reference 34442542. The information displayed about this property comprises a property advertisement. Rightmove.co.uk makes no warranty as to the accuracy or completeness of the advertisement or any linked or associated information, and Rightmove has no control over the content. This property advertisement does not constitute property particulars. The information is provided and maintained by Richard Kendall, Wakefield. Please contact the selling agent or developer directly to obtain any information which may be available under the terms of The Energy Performance of Buildings (Certificates and Inspections) (England and Wales) Regulations 2007 or the Home Report if in relation to a residential property in Scotland.
Map data ©OpenStreetMap contributors.





