4 bedroom barn conversion for sale
Woodhall, 5 Abbotts Court, Outwell, Wisbech, PE14

- PROPERTY TYPE
Barn Conversion
- BEDROOMS
4
- SIZE
Ask agent
- TENUREDescribes how you own a property. There are different types of tenure - freehold, leasehold, and commonhold.Read more about tenure in our glossary page.
Ask agent
Key features
- Sold via Modern Method of Auction (T&C's Apply)
Description
Two adjacent land parcels with planning permission
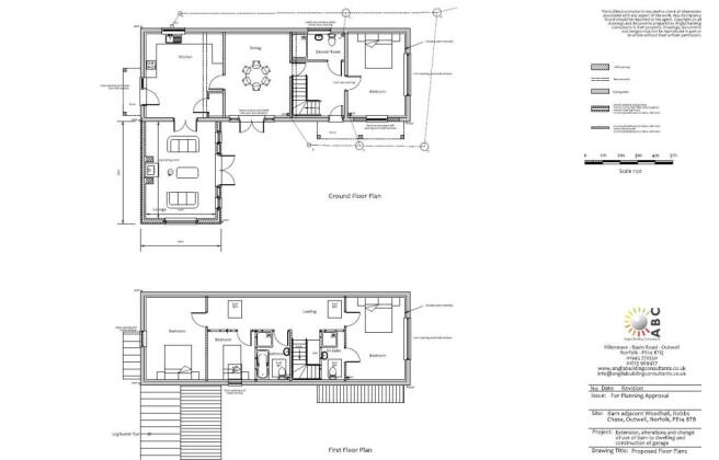
• 1 x 4-bedroom barn conversion
• 1 x 3-bedroom detached new build barn style property
The two plots are to be sold together only and comprise of the following:
Unit Sizes
• Barn conversion GIA 2,430 sq. ft
• New Build Barn GIA 2,502 sq. ft
Location
The plots are located off Robbs Chase Outwell PE14 8SF. Robbs Chase is a quiet, residential cul-de-sac located in the well-regarded village of Outwell, Norfolk - strategically positioned near the Cambridgeshire border, just 4 miles from Wisbech and 20 miles from Peterborough. This well-connected rural location offers strong development potential with a blend of countryside appeal and regional accessibility.
Planning
The local planning authority is King’s Lynn & West Norfolk
Planning references and links to planning application
1. Barn Conversion - Barn Adjacent to Woodhall, Robbs Chase, Outwell Norfolk. Change of use, alterations and extension of barn to form a 4 bedroom dwelling, and the construction of a double garage with hobby room over Ref 21/01880/F Decision date issued Thu 24 Feb 2022
2. New Build Barn Style Dwelling - Land W of Woodhall Robbs Chase Outwell Norfolk Reserved Matters Application for approval of the appearance, landscaping, layout and scale of one dwelling Ref 24/01033/RM Decision date issued Wed 07 Aug 2024
Data Room
We have provided key documentation in a data room to include planning information, sales pricing, images, land registry, architect’s plans. To access corresponding documents, images and other information please contact Abbotts.
Land Registry
Barn Conversion - Part of Title No. NK301688
(Red line of land parcel to be drawn up and provided for TR1)
New Build Barn - Title No. NK104445
Land title documents can be found in the data room.
CIL
Cil liability notice for the new build unit can be found in the data room
Sale
We are inviting offers on an unconditional basis for both plots as one lot.
Tenure
The plots will be sold Freehold with vacant possession.
VAT
We have assumed that sites are not elected for VAT.
Services
We have not undertaken any specific enquiries of the relevant service companies. We understand that all mains’ services are available or accessible within the vicinity
Viewing & Further Information
Viewings are strictly by appointment only.
This property is for sale by the Modern Method of Auction, meaning the buyer and seller are to Complete within 56 days (the "Reservation Period"). Interested parties personal data will be shared with the Auctioneer (I am Sold).
If considering buying with a mortgage, inspect and consider the property carefully with your lender before bidding.
A Buyer Information Pack is provided. The winning bidder will pay £349.00 including VAT for this pack which you must view before bidding.
The buyer signs a Reservation Agreement and makes payment of a non-refundable Reservation Fee of 4.5% of the purchase price including VAT, subject to a minimum of £6,600.00 including VAT. This is paid to reserve the property to the buyer during the Reservation Period and is paid in addition to the purchase price. This is considered within calculations for Stamp Duty Land Tax.
Services may be recommended by the Agent or Auctioneer in which they will receive payment from the service provider if the service is taken. Any payment that will be received by the Agent or Auctioneer will be confirmed to you in writing before services are taken. Services are optional.
- COUNCIL TAXA payment made to your local authority in order to pay for local services like schools, libraries, and refuse collection. The amount you pay depends on the value of the property.Read more about council Tax in our glossary page.
- Band: TBC
- PARKINGDetails of how and where vehicles can be parked, and any associated costs.Read more about parking in our glossary page.
- Yes
- GARDENA property has access to an outdoor space, which could be private or shared.
- Ask agent
- ACCESSIBILITYHow a property has been adapted to meet the needs of vulnerable or disabled individuals.Read more about accessibility in our glossary page.
- Ask agent
Energy performance certificate - ask agent
Woodhall, 5 Abbotts Court, Outwell, Wisbech, PE14
Add an important place to see how long it'd take to get there from our property listings.
__mins driving to your place
Get an instant, personalised result:
- Show sellers you’re serious
- Secure viewings faster with agents
- No impact on your credit score



Your mortgage
Notes
Staying secure when looking for property
Ensure you're up to date with our latest advice on how to avoid fraud or scams when looking for property online.
Visit our security centre to find out moreDisclaimer - Property reference DMT260035. The information displayed about this property comprises a property advertisement. Rightmove.co.uk makes no warranty as to the accuracy or completeness of the advertisement or any linked or associated information, and Rightmove has no control over the content. This property advertisement does not constitute property particulars. The information is provided and maintained by Abbotts, Downham Market. Please contact the selling agent or developer directly to obtain any information which may be available under the terms of The Energy Performance of Buildings (Certificates and Inspections) (England and Wales) Regulations 2007 or the Home Report if in relation to a residential property in Scotland.
Auction Fees: The purchase of this property may include associated fees not listed here, as it is to be sold via auction. To find out more about the fees associated with this property please call Abbotts, Downham Market on 01366 312324.
*Guide Price: An indication of a seller's minimum expectation at auction and given as a Guide Price or a range of Guide Prices. This is not necessarily the figure a property will sell for and is subject to change prior to the auction.
Reserve Price: Each auction property will be subject to a Reserve Price below which the property cannot be sold at auction. Normally the Reserve Price will be set within the range of Guide Prices or no more than 10% above a single Guide Price.
*This is the average speed from the provider with the fastest broadband package available at this postcode. The average speed displayed is based on the download speeds of at least 50% of customers at peak time (8pm to 10pm). Fibre/cable services at the postcode are subject to availability and may differ between properties within a postcode. Speeds can be affected by a range of technical and environmental factors. The speed at the property may be lower than that listed above. You can check the estimated speed and confirm availability to a property prior to purchasing on the broadband provider's website. Providers may increase charges. The information is provided and maintained by Decision Technologies Limited. **This is indicative only and based on a 2-person household with multiple devices and simultaneous usage. Broadband performance is affected by multiple factors including number of occupants and devices, simultaneous usage, router range etc. For more information speak to your broadband provider.
Map data ©OpenStreetMap contributors.



