
6 bedroom detached house for sale
Barnard Mews, Amesbury SP4 7FJ

- PROPERTY TYPE
Detached
- BEDROOMS
6
- BATHROOMS
3
- SIZE
2,088 sq ft
194 sq m
- TENUREDescribes how you own a property. There are different types of tenure - freehold, leasehold, and commonhold.Read more about tenure in our glossary page.
Freehold
Key features
- Three storey detached house overlooking Amesbury Country Park
- Gas central heating
- Six bedrooms
- Dual aspect sitting room
- Kitchen/breakfast room with separate dining room and utility room
- Two en-suites and a family bathroom
- Electric double gates leading to driveway parking
- Double garage with remote-controlled door
- Rear garden
- No onward chain
Description
Details:
Front door to:
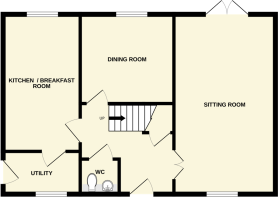
Hall
Stairs rising to the first floor, radiator, under stairs storage cupboard housing data network.
Cloakroom
Comprising of wash hand basin, W.C., radiator.
Sitting Room
23'5" (7.14m) x 12'1" (3.68m)
A superb generous size dual aspect room with window to the front elevation, French Doors giving access to the rear garden, two radiators, wall mounted electric fire.
Dining Room
11' (3.35m) x 10'4" (3.15m)
Window to the rear elevation, radiator.
Kitchen/Breakfast Room
15'8" (4.78m) x 9'2" (2.79m)
An attractive fitted kitchen with a range of base, drawer and wall units, granite work surfaces with matching upstand, stainless steel sink with mixer tap, fitted gas hob with cooker hood over, built-in double electric oven, plumbing for dishwasher, window to the rear elevation, radiator.
Utility Room
9'1" (2.77m) x 5'2" (1.57m)
Base units, granite work surface with matching upstand, wall unit housing gas fired boiler, plumbing for washing machine, radiator, window to the front elevation, control panel for alarm system, door giving access to the side elevation.
Landing
Stairs rising to the second floor, cupboard housing hot water cylinder, radiator.
Bedroom
14'4" (4.37m) x 10'5" (3.18m)
Window to the rear elevation, radiator, opening to the dressing area with radiator and window.
En-suite Shower Room
Comprising of shower cubicle, wash hand basin, W.C., ladder rack style radiator.
Bedroom
12'2" (3.71m) max 12'1" (3.68m)
Window to the front elevation, radiator.
Bedroom
12' (3.66m) max x 11'1" (3.37m) max
Window to the rear elevation, radiator.
Bedroom
10'2" (3.10m) max x 7'2" (2.18m) max
Currently used as a study with window to the rear elevation and radiator.
Bathroom
10' (3.05m) x 6'6" (1.98m)
Comprising of shower cubicle, bath with mixer tap and shower attachment, wash hand basin, W.C., ladder rack style radiator, window.
Landing
Radiator.
Principal Bedroom
17'10" (5.44m) x 10'10" (3.30m)
Window to the rear elevation, two built-in double wardrobes, radiator.
En-suite Shower Room
Comprising of double shower cubicle, wash hand basin, W.C., ladder rack style radiator.
Bedroom
21' (6.40m) max x 12'2" (3.71m) max irregular shape
Currently used as a dressing room with window to the side elevation, window to the front elevation, velux window to the rear elevation, walk-in cupboard with light, two radiators.
Outside
The delightful front garden has a path leading to the front door, lawn and various shrubs. The enclosed rear garden is accessed via double electric gates opening to the driveway offering parking and access to the double garage. The garden has a patio, lawn and summerhouse.
Double Garage
Remote controlled roller door, light and power.
Agents Note
Tenure: Freehold
Council Tax: Band F
No onward chain
- COUNCIL TAXA payment made to your local authority in order to pay for local services like schools, libraries, and refuse collection. The amount you pay depends on the value of the property.Read more about council Tax in our glossary page.
- Ask agent
- PARKINGDetails of how and where vehicles can be parked, and any associated costs.Read more about parking in our glossary page.
- Garage,Driveway,Gated
- GARDENA property has access to an outdoor space, which could be private or shared.
- Front garden,Rear garden
- ACCESSIBILITYHow a property has been adapted to meet the needs of vulnerable or disabled individuals.Read more about accessibility in our glossary page.
- Ask agent
Energy performance certificate - ask agent
Barnard Mews, Amesbury SP4 7FJ
Add an important place to see how long it'd take to get there from our property listings.
__mins driving to your place
Get an instant, personalised result:
- Show sellers you’re serious
- Secure viewings faster with agents
- No impact on your credit score
Your mortgage
Notes
Staying secure when looking for property
Ensure you're up to date with our latest advice on how to avoid fraud or scams when looking for property online.
Visit our security centre to find out moreDisclaimer - Property reference 5120. The information displayed about this property comprises a property advertisement. Rightmove.co.uk makes no warranty as to the accuracy or completeness of the advertisement or any linked or associated information, and Rightmove has no control over the content. This property advertisement does not constitute property particulars. The information is provided and maintained by Simon Colligan Estate Agents, Amesbury. Please contact the selling agent or developer directly to obtain any information which may be available under the terms of The Energy Performance of Buildings (Certificates and Inspections) (England and Wales) Regulations 2007 or the Home Report if in relation to a residential property in Scotland.
*This is the average speed from the provider with the fastest broadband package available at this postcode. The average speed displayed is based on the download speeds of at least 50% of customers at peak time (8pm to 10pm). Fibre/cable services at the postcode are subject to availability and may differ between properties within a postcode. Speeds can be affected by a range of technical and environmental factors. The speed at the property may be lower than that listed above. You can check the estimated speed and confirm availability to a property prior to purchasing on the broadband provider's website. Providers may increase charges. The information is provided and maintained by Decision Technologies Limited. **This is indicative only and based on a 2-person household with multiple devices and simultaneous usage. Broadband performance is affected by multiple factors including number of occupants and devices, simultaneous usage, router range etc. For more information speak to your broadband provider.
Map data ©OpenStreetMap contributors.






