
2 bedroom apartment for sale
Litchdon Street, Barnstaple

- PROPERTY TYPE
Apartment
- BEDROOMS
2
- BATHROOMS
2
- SIZE
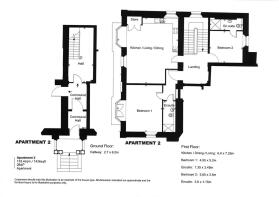
1,436 sq ft
133 sq m
Key features
- 2 bedroom apartment
- Open plan kitchen/dining/living area
- Spacious landing area
- 2 ensuites
- River views
- Allocated parking space
- 10 year Build Zone warranty
- Leasehold - Share of Freehold
- EPC rating C
- Council tax band TBC
Description
Situation - This unique collection of 6 newly converted apartments forms a grade II listed Georgian mansion, beautifully positioned along the scenic banks of the River Taw in Barnstaple, the vibrant heart of North Devon, renowned for its rich history, excellent amenities, and transport links.
Description - Accessed via the main entrance up the front steps, into the communal hallway, the entrance to this apartment can be found through a large door leading into a further stairwell enhanced by the original stained glass window. At the top of the stairs, you are welcomed by a spacious landing and an impressive open plan kitchen/living/dining area. Large windows flood the space with natural light while offering stunning views of the River Taw. Both of the generously sized bedrooms feature their own ensuite while the master bedroom also benefits from large windows overlooking the river.
Outside - This home benefits from one allocated parking space and access to the communal garden to the front of the building.
Services - All main services are connected with gas central heating system.
Broadband speed up to 1800 Mbps, Mobile coverage from EE, Three, O2 and Vodafone likely.
Agent Notes - 10 year Build Zone warranty
Management Company charges will be set according to floor area - For more information contact Stags.
Some images have been staged using AI.
Viewings - All viewings are strictly by prior appointment with Stags Barnstaple office on .
Directions - The apartments are situated between Litchdon Street and Taw Vale. Taw Vale runs parallel with the River Taw and runs into The Strand. There are traffic restrictions in both Taw Vale and The Strand. Litchdon Street is a one-way system. Accordingly, with the river to your right, turn into The Strand, turn left into Litchdon Street which can be found behind The Imperial Hotel. Proceed to the end of Litchdon Street and the site can be found on the right-hand side overlooking Taw Vale, the river and Rock Park.
Brochures
Litchdon Street, Barnstaple- COUNCIL TAXA payment made to your local authority in order to pay for local services like schools, libraries, and refuse collection. The amount you pay depends on the value of the property.Read more about council Tax in our glossary page.
- Band: TBC
- PARKINGDetails of how and where vehicles can be parked, and any associated costs.Read more about parking in our glossary page.
- Yes
- GARDENA property has access to an outdoor space, which could be private or shared.
- Ask agent
- ACCESSIBILITYHow a property has been adapted to meet the needs of vulnerable or disabled individuals.Read more about accessibility in our glossary page.
- Ask agent
Litchdon Street, Barnstaple
Add an important place to see how long it'd take to get there from our property listings.
__mins driving to your place
Get an instant, personalised result:
- Show sellers you’re serious
- Secure viewings faster with agents
- No impact on your credit score
Your mortgage
Notes
Staying secure when looking for property
Ensure you're up to date with our latest advice on how to avoid fraud or scams when looking for property online.
Visit our security centre to find out moreDisclaimer - Property reference 34452210. The information displayed about this property comprises a property advertisement. Rightmove.co.uk makes no warranty as to the accuracy or completeness of the advertisement or any linked or associated information, and Rightmove has no control over the content. This property advertisement does not constitute property particulars. The information is provided and maintained by Stags, Barnstaple. Please contact the selling agent or developer directly to obtain any information which may be available under the terms of The Energy Performance of Buildings (Certificates and Inspections) (England and Wales) Regulations 2007 or the Home Report if in relation to a residential property in Scotland.
*This is the average speed from the provider with the fastest broadband package available at this postcode. The average speed displayed is based on the download speeds of at least 50% of customers at peak time (8pm to 10pm). Fibre/cable services at the postcode are subject to availability and may differ between properties within a postcode. Speeds can be affected by a range of technical and environmental factors. The speed at the property may be lower than that listed above. You can check the estimated speed and confirm availability to a property prior to purchasing on the broadband provider's website. Providers may increase charges. The information is provided and maintained by Decision Technologies Limited. **This is indicative only and based on a 2-person household with multiple devices and simultaneous usage. Broadband performance is affected by multiple factors including number of occupants and devices, simultaneous usage, router range etc. For more information speak to your broadband provider.
Map data ©OpenStreetMap contributors.









