2 bedroom flat for rent
Brixton Road, London, SW9

Letting details
- Let available date:
- 06/04/2026
- Deposit:
- £2,596A deposit provides security for a landlord against damage, or unpaid rent by a tenant.Read more about deposit in our glossary page.
- Min. Tenancy:
- Ask agent How long the landlord offers to let the property for.Read more about tenancy length in our glossary page.
- Let type:
- Long term
- Furnish type:
- Furnished
- Council Tax:
- Ask agent
- PROPERTY TYPE
Flat
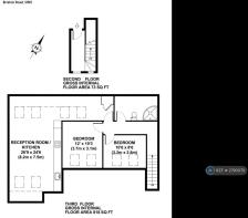
- BEDROOMS
2
- BATHROOMS
1
- SIZE
Ask agent
Key features
- No Agent Fees
- Students Can Enquire
- Property Reference Number: 2790070
Description
*AVAILABLE FROM 6TH APRIL*
The Ultimate Brixton Base
Experience top-floor living in the heart of London’s most energetic neighbourhood. This stylish, fully furnished two-bedroom apartment combines modern convenience with a cool, airy aesthetic, making it the perfect sanctuary for professionals or a small family looking to be exactly where the action is.
The heart of the home is a sun-drenched, open-plan living area featuring stunning vaulted ceilings and beautiful hardwood floors. Multiple skylights flood the entire space with natural light, creating a bright and uplifting atmosphere throughout the day. The kitchen is sleek and fully equipped with washing machine, oven, gas hobs and tall fridge/freezer - all centred around a dedicated dining area that is ideal for hosting friends before heading out into the city.
Both bedrooms are generously sized and come fully furnished with ample storage solutions to keep the space tidy. These rooms maintain the character of the property with signature sloped ceilings and large windows that offer a cozy yet bright retreat. The bathroom is equally modern, featuring a corner tub to allow both showering and bathing. As an added bonus, residents have access to a communal rooftop balcony, providing a rare outdoor escape with views across the London skyline.
The location is truly unbeatable for anyone prioritising a quick commute and a vibrant lifestyle. Situated just a two-minute stroll from Brixton Underground Station, you can hop on the Victoria Line and reach Oxford Circus in approximately 12 minutes. Living here puts you seconds away from the world-class street food of Brixton Village and Pop Brixton, the legendary nightlife of the O2 Academy, and the leafy expanses of Brockwell Park. This is a rare opportunity to secure a characterful, fully furnished home in one of the capital's most sought-after hubs.
DetailsEPC Rating: D
Bills: No bills included.
Council Tax Band: C
WIFI Infrastructure: Ultrafast Fibre Available in street
Nearest Train or Tube Station: Brixton underground (2 mins walk). There are also various bus routes easily accessible.
Parking: Yes tenant can buy street parking permit
Please get in touch for a viewing or more information.
Summary & Exclusions:
- Rent Amount: £2,250.00 per month (£519.23 per week)
- Deposit / Bond: £2,596.15
- 2 Bedrooms
- 1 Bathrooms
- Property comes furnished
- Available to move in from 06 April 2026
- Minimum tenancy term is 12 months
- Maximum number of tenants is 4
- Students welcome to enquire
- No Pets, sorry
- No Smokers
- Family Friendly
- Bills not included
- No Parking Available
- Property has garden access
- EPC Rating: D
If calling, please quote reference: 2790070
Fees:
You will not be charged any admin fees.
** Contact today to book a viewing and have the landlord show you round! **
Request Details form responded to 24/7, with phone bookings available 9am-9pm, 7 days a week.
- COUNCIL TAXA payment made to your local authority in order to pay for local services like schools, libraries, and refuse collection. The amount you pay depends on the value of the property.Read more about council Tax in our glossary page.
- Ask agent
- PARKINGDetails of how and where vehicles can be parked, and any associated costs.Read more about parking in our glossary page.
- Ask agent
- GARDENA property has access to an outdoor space, which could be private or shared.
- Private garden
- ACCESSIBILITYHow a property has been adapted to meet the needs of vulnerable or disabled individuals.Read more about accessibility in our glossary page.
- Ask agent
Energy performance certificate - ask agent
Brixton Road, London, SW9
Add an important place to see how long it'd take to get there from our property listings.
__mins driving to your place
Notes
Staying secure when looking for property
Ensure you're up to date with our latest advice on how to avoid fraud or scams when looking for property online.
Visit our security centre to find out moreDisclaimer - Property reference 279007010022026. The information displayed about this property comprises a property advertisement. Rightmove.co.uk makes no warranty as to the accuracy or completeness of the advertisement or any linked or associated information, and Rightmove has no control over the content. This property advertisement does not constitute property particulars. The information is provided and maintained by OpenRent, London. Please contact the selling agent or developer directly to obtain any information which may be available under the terms of The Energy Performance of Buildings (Certificates and Inspections) (England and Wales) Regulations 2007 or the Home Report if in relation to a residential property in Scotland.
*This is the average speed from the provider with the fastest broadband package available at this postcode. The average speed displayed is based on the download speeds of at least 50% of customers at peak time (8pm to 10pm). Fibre/cable services at the postcode are subject to availability and may differ between properties within a postcode. Speeds can be affected by a range of technical and environmental factors. The speed at the property may be lower than that listed above. You can check the estimated speed and confirm availability to a property prior to purchasing on the broadband provider's website. Providers may increase charges. The information is provided and maintained by Decision Technologies Limited. **This is indicative only and based on a 2-person household with multiple devices and simultaneous usage. Broadband performance is affected by multiple factors including number of occupants and devices, simultaneous usage, router range etc. For more information speak to your broadband provider.
Map data ©OpenStreetMap contributors.




