77 Abbey Road, St. John's Wood, London, NW8 0AE
- SIZE AVAILABLE
1,562 sq ft
145 sq m
- SECTOR
High street retail property to lease
Lease details
- Lease available date:
- Now
- Lease type:
- Long term
Key features
- Prominent Main Road Location
- Newly Refurbished
- Basement Suitable for Retail & Storage
- Kitchen, Shower & WC/Washroom in Basement
Description
The premises comprise of a recently refurbish Shop and Basement Premises suitable for a variety of business uses under the recently updated
Class E Planning Uses Classification.
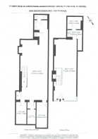
The ground floor shop is in open plan with a rear kitchen and a office/storeroom. The Basement area is in open plan with three storage vaults plus a new kitchen area, WC/Washroom plus a additional WC/Washroom and shower The premises is suitable for either retail, office, medical clinic or beauty treatments and storage uses.
LEASE TERMS:
The entire premises are held on as Full Repairing & Insuring Lease for a term of 15 years from the 19th June 2025, with 5 yearly 'Upward Only' Rent Reviews and 5 yearly 'Tenant Only' Breaks subject to 6 months prior written notice being given of the same.
Location
The Premises are situated midway along Abbey Road located on the Southern side of the thoroughfare close to Blenheim Terrace and to the junction of Boundary Road. St. John's Wood, Kilburn High Road and South Hampstead stations are all within a short walk. Located amongst the parade of shops is an interesting mix of specialist retailers, beauty operators, coffee shops and restaurants including Abbey Road Framing, Coffee Bank London, Metta Spa, Beyoutiful Retreat Aesthetics Clinic, Hodgetts Chemist, Coastline Galicia, Pizza Express and Almas Persian Restaurant.
Brochures
77 Abbey Road, St. John's Wood, London, NW8 0AE
NEAREST STATIONS
Distances are straight line measurements from the centre of the postcode- Kilburn High Road Station0.3 miles
- South Hampstead Station0.4 miles
- Kilburn Park Station0.4 miles
Notes
Disclaimer - Property reference 352069-2. The information displayed about this property comprises a property advertisement. Rightmove.co.uk makes no warranty as to the accuracy or completeness of the advertisement or any linked or associated information, and Rightmove has no control over the content. This property advertisement does not constitute property particulars. The information is provided and maintained by Dutch & Dutch, Commercial. Please contact the selling agent or developer directly to obtain any information which may be available under the terms of The Energy Performance of Buildings (Certificates and Inspections) (England and Wales) Regulations 2007 or the Home Report if in relation to a residential property in Scotland.
Map data ©OpenStreetMap contributors.





