
Colworth, Chichester, PO20

- PROPERTY TYPE
Semi-Detached
- BEDROOMS
3
- BATHROOMS
1
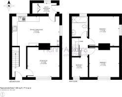
- SIZE
807 sq ft
75 sq m
- TENUREDescribes how you own a property. There are different types of tenure - freehold, leasehold, and commonhold.Read more about tenure in our glossary page.
Freehold
Key features
- Relaxing country charm with uninterrupted farmland views
- Character Sussex flint and brick front elevation
- Semi rural setting
- Homely sitting room with wood burning stove and rural view
- Well proportioned kitchen/dining room
- Utility room
- Two doubles and one single bedroom
- Modern bathroom
- Secluded south aspect garden
- Off-road parking for two cars
Description
A character semi-detached cottages with views over farmland.
A charming three-bedroom semi-detached period cottage, beautifully and sympathetically refurbished, enjoying uninterrupted views across open farmland. Positioned in a most desirable semi-rural setting just three miles south-east of the historic city of Chichester.
Approached via gentle rising steps, the front door opens into a welcoming traditional entrance hall. The elegant yet cosy sitting room is rich in character, featuring a mellow exposed brick wall, a wood-burning stove and picturesque views across the farmland, a truly inviting space for relaxed country living. To the rear, the spacious kitchen/dining room is appointed with classic shaker-style cabinetry, a porcelain butler sink, integrated cooker hood and dishwasher, seamlessly combining timeless design with modern convenience. A useful utility room provides further storage, space and plumbing for a washing machine and houses the oil-fired boiler. The first floor offers three bedrooms, including two doubles and a charming single bedroom which is currently utilised as a dressing room, all served by a stylish contemporary bathroom.
Externally, the property continues to impress with a meticulously landscaped, secluded south-facing garden, designed for both relaxation and entertaining. An ornate extended patio provides two distinct seating areas, complemented by a lawn and a striking flint boundary wall with exterior lighting, elegantly adorned with climbing pink roses. Off-road parking for two vehicles completes this inviting home.
Chichester District Council - 25/26 Tax Band C £2,077.06 EPC-D
Directions - Proceed south east out of Chichester and along the A259 signposted to Bognor Regis. Proceed straight over the Drayton roundabout and after approximately a mile take the first turning on the left signposted to Colworth, just before the Mercedes garage. At the fork bear right and East Corner Cottage can be found almost immediately on the left. What3words - acquaint.arrived.skylights
EPC Rating: D
Parking - Off street
Brochures
Property Brochure- COUNCIL TAXA payment made to your local authority in order to pay for local services like schools, libraries, and refuse collection. The amount you pay depends on the value of the property.Read more about council Tax in our glossary page.
- Band: C
- PARKINGDetails of how and where vehicles can be parked, and any associated costs.Read more about parking in our glossary page.
- Off street
- GARDENA property has access to an outdoor space, which could be private or shared.
- Private garden
- ACCESSIBILITYHow a property has been adapted to meet the needs of vulnerable or disabled individuals.Read more about accessibility in our glossary page.
- Ask agent
Colworth, Chichester, PO20
Add an important place to see how long it'd take to get there from our property listings.
__mins driving to your place
Get an instant, personalised result:
- Show sellers you’re serious
- Secure viewings faster with agents
- No impact on your credit score
Your mortgage
Notes
Staying secure when looking for property
Ensure you're up to date with our latest advice on how to avoid fraud or scams when looking for property online.
Visit our security centre to find out moreDisclaimer - Property reference 8dee15b4-745e-48dc-b5e7-84ea9c800060. The information displayed about this property comprises a property advertisement. Rightmove.co.uk makes no warranty as to the accuracy or completeness of the advertisement or any linked or associated information, and Rightmove has no control over the content. This property advertisement does not constitute property particulars. The information is provided and maintained by Henry Adams, Chichester. Please contact the selling agent or developer directly to obtain any information which may be available under the terms of The Energy Performance of Buildings (Certificates and Inspections) (England and Wales) Regulations 2007 or the Home Report if in relation to a residential property in Scotland.
*This is the average speed from the provider with the fastest broadband package available at this postcode. The average speed displayed is based on the download speeds of at least 50% of customers at peak time (8pm to 10pm). Fibre/cable services at the postcode are subject to availability and may differ between properties within a postcode. Speeds can be affected by a range of technical and environmental factors. The speed at the property may be lower than that listed above. You can check the estimated speed and confirm availability to a property prior to purchasing on the broadband provider's website. Providers may increase charges. The information is provided and maintained by Decision Technologies Limited. **This is indicative only and based on a 2-person household with multiple devices and simultaneous usage. Broadband performance is affected by multiple factors including number of occupants and devices, simultaneous usage, router range etc. For more information speak to your broadband provider.
Map data ©OpenStreetMap contributors.








