
Brighton Road, Henfield
- PROPERTY TYPE
Plot
- SIZE
Ask agent
Key features
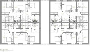
- Class Q development for 4 x 4 Bedroom Houses
- Conversion of existing building
- No CIL
- House are approx 1600 sqft each
- 4 Bedrooms
- 3 Bathrooms
- Utility Room
- Parking
- Walking Distance to Henfield High Street
- Fantastic Location
Description
Spanning approximately 1600 square feet, these thoughtfully designed homes will offer spacious living areas, perfect for families seeking comfort and style. The location is particularly appealing, as it is within walking distance to Henfield's vibrant high street, where residents can enjoy a variety of shops, cafes, and local amenities.
Henfield itself is a picturesque village, surrounded by beautiful countryside, making it an ideal setting for those who appreciate both rural charm and convenient access to urban facilities. This plot not only promises a lucrative investment but also the chance to contribute to the community by providing modern housing in a desirable area.
Brochures
Brighton Road, HenfieldBrochureBrighton Road, Henfield
NEAREST STATIONS
Distances are straight line measurements from the centre of the postcode- Hassocks Station5.0 miles
- Shoreham-by-Sea Station6.5 miles
- Southwick Station6.7 miles
Notes
Disclaimer - Property reference 34478542. The information displayed about this property comprises a property advertisement. Rightmove.co.uk makes no warranty as to the accuracy or completeness of the advertisement or any linked or associated information, and Rightmove has no control over the content. This property advertisement does not constitute property particulars. The information is provided and maintained by Foster & Co, Hove. Please contact the selling agent or developer directly to obtain any information which may be available under the terms of The Energy Performance of Buildings (Certificates and Inspections) (England and Wales) Regulations 2007 or the Home Report if in relation to a residential property in Scotland.
Map data ©OpenStreetMap contributors.







