
Acharn, Perth, PH1

- PROPERTY TYPE
Terraced
- BEDROOMS
2
- BATHROOMS
1
- SIZE
581 sq ft
54 sq m
- TENUREDescribes how you own a property. There are different types of tenure - freehold, leasehold, and commonhold.Read more about tenure in our glossary page.
Ask agent
Key features
- Two-bedroom mid-terrace house
- Living room
- Two bedrooms
- Shower/wet room
- Driveway equipped with an EV charging facility
- Rear garden
Description
This two-bedroom mid-terrace house is located within an established and predominantly residential area of Perth. The surrounding properties are generally of a similar age, character, and construction style, contributing to a cohesive and settled neighbourhood environment.
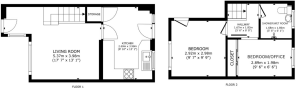
The ground floor accommodation includes a living room positioned to the front of the property, providing the main reception space, together with a kitchen located to the rear, offering space for food preparation and dining. The layout provides functional day-to-day living accommodation with clear separation between living and kitchen areas.
At first floor level, a central landing provides access to all rooms, including two bedrooms and a shower/wet room. The bedrooms offer accommodation suitable for use as principal and secondary sleeping spaces, with flexibility for alternative uses such as a home office or study. The shower room is fitted with shower facilities and associated sanitary ware designed for practical and accessible use.
Externally, the property forms part of a continuous terrace and benefits from its position within a well-established residential setting. To the front, there is a driveway equipped with an EV charging facility, providing convenient off-street parking and support for electric vehicles. To the rear, the property also benefits from a back garden, providing outdoor space suitable for general amenity use. A range of local amenities, including shops, schooling, and public transport links, are available within the surrounding area, with Perth city centre accessible within a short distance.
Overall, the property represents a straightforward residential dwelling offering functional accommodation within a convenient and established location.
EPC Rating: C
- COUNCIL TAXA payment made to your local authority in order to pay for local services like schools, libraries, and refuse collection. The amount you pay depends on the value of the property.Read more about council Tax in our glossary page.
- Band: D
- PARKINGDetails of how and where vehicles can be parked, and any associated costs.Read more about parking in our glossary page.
- Yes
- GARDENA property has access to an outdoor space, which could be private or shared.
- Private garden
- ACCESSIBILITYHow a property has been adapted to meet the needs of vulnerable or disabled individuals.Read more about accessibility in our glossary page.
- Ask agent
Energy performance certificate - ask agent
Acharn, Perth, PH1
Add an important place to see how long it'd take to get there from our property listings.
__mins driving to your place
Get an instant, personalised result:
- Show sellers you’re serious
- Secure viewings faster with agents
- No impact on your credit score
Your mortgage
Notes
Staying secure when looking for property
Ensure you're up to date with our latest advice on how to avoid fraud or scams when looking for property online.
Visit our security centre to find out moreDisclaimer - Property reference 09954bdf-a5a5-4203-809a-70b163a0833a. The information displayed about this property comprises a property advertisement. Rightmove.co.uk makes no warranty as to the accuracy or completeness of the advertisement or any linked or associated information, and Rightmove has no control over the content. This property advertisement does not constitute property particulars. The information is provided and maintained by Clyde Property, Perth. Please contact the selling agent or developer directly to obtain any information which may be available under the terms of The Energy Performance of Buildings (Certificates and Inspections) (England and Wales) Regulations 2007 or the Home Report if in relation to a residential property in Scotland.
*This is the average speed from the provider with the fastest broadband package available at this postcode. The average speed displayed is based on the download speeds of at least 50% of customers at peak time (8pm to 10pm). Fibre/cable services at the postcode are subject to availability and may differ between properties within a postcode. Speeds can be affected by a range of technical and environmental factors. The speed at the property may be lower than that listed above. You can check the estimated speed and confirm availability to a property prior to purchasing on the broadband provider's website. Providers may increase charges. The information is provided and maintained by Decision Technologies Limited. **This is indicative only and based on a 2-person household with multiple devices and simultaneous usage. Broadband performance is affected by multiple factors including number of occupants and devices, simultaneous usage, router range etc. For more information speak to your broadband provider.
Map data ©OpenStreetMap contributors.






