
Victoria Park Road West, Victoria Park, Cardiff

- PROPERTY TYPE
Maisonette
- BEDROOMS
2
- BATHROOMS
1
- SIZE
850 sq ft
79 sq m
Key features
- Duplex Apartment
- Overlooking Victoria Park
- Two Bedrooms
- Lounge and Bedroom Two to the first floor.
- Bathroom
- Main bedroom to the Second floor
- Ideal First Time Buy/Investment
Description
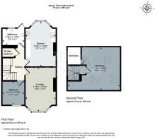
Ideal for first-time buyers, this stylish home offers modern living across two levels and is ready to move straight in. The accommodation briefly comprises: a private entrance with stairs leading up to the first floor, a spacious kitchen/diner, a bright and airy lounge with views across the park, a second bedroom, and a contemporary shower room. Stairs then lead to the top floor, which is dedicated to a generous primary bedroom.
Victoria Park Road West is located adjacent to Victoria Park and is close to a variety of shops, cafés and restaurants along with reputable schools and easy access to Cardiff city centre. There are very good public transport links to and from Cardiff City Centre. Internal viewings are an absolute must!
Entrance - Entered via communal door. Wooden front door into the hallway.
Hallway - Radiator. Obscure window to the front. Coved ceiling. Wood laminate flooring. Stairs to the first floor.
Landing - Wood laminate flooring. Stairs to the second floor. Large storage cupboard.
Bathroom - 2.34m x 1.85m (7'8" x 6'1") - Obscure double glazed window to the rear. Double glazed patio door leading to the fire escape. Walk in shower, w/c and wash hand basin. Tiled walls and floor. Heated towel rail. Combi boiler.
Kitchen - 5.08m x 3.05m (16'8" x 10') - Double glazed bay window to the rear. Continuation of wood laminate flooring. The kitchen is fitted with wall and base units. Stainless steel sink and drainer. Space and plumbing for a washing machine. Integrated dishwasher and fridge freezer. Radiator. Induction hob and oven and grill.
Lounge - 4.95m x 3.28m (16'3" x 10'9") - Single glazed bay window to the front. Radiator. Continuation of wood laminate floor. Fireplace with fitted shelving either side into the recess. Coved ceiling. Picture rail.
Bedroom Two - 2.41m x 2.57m (7'11 x 8'5") - SIngle glazed window to the front. Radiator. Continuation of wood laminate flooring.
Second Floor - Dog leg staircase to the second floor.
Bedroom One - 4.72m x 4.65m (15'6" x 15'3") - Two double glazed sky light windows to the front and two double glazed sky light windows to the rear. Radiator. Built in wardrobes. Wood laminate flooring. Built-in storage into the eaves.
Additional Information - The property is a share of the freehold, managed under a company where both the owners of 8A and 8B are directors. Term of lease 999 years from 2020, having approximately 994 years remaining. Monthly management charges £45 PCM (£540 annually) covering window cleaning, building insurance, building insurance and annual tax returns for the management company. For any additional ad-hoc work required to the building structure or communal entrance, these are shared equally with the ground floor flat owner.
EPC - C
Council Tax - C
Disclaimer - The property title and lease details (including duration and costs) have been supplied by the seller and are not independently verified by Hern and Crabtree. We recommend your legal representative review all information before exchanging contracts. Property descriptions, measurements, and floor plans are for guidance only, and photos may be edited for marketing purposes. We have not tested any services, systems, or appliances and are not RICS surveyors. Opinions on property conditions are based on experience and not verifiable assessments. We recommend using your own surveyor, contractor, and conveyancer. If a prior building survey exists, we do not have access to it and cannot share it. Under Code of Practice 4b, any marketing figure (asking or selling price) is a market appraisal, not a valuation, based on seller details and market conditions, and has not been independently verified. Prices set by vendors may differ from surveyor valuations. Hern and Crabtree will not be liable for discrepancies, costs, or losses arising from sales withdrawals, mortgage valuations, or any related decisions. By pursuing the purchase, you confirm that you have read and understood the above information.
Brochures
Victoria Park Road West, Victoria Park, CardiffBrochure- COUNCIL TAXA payment made to your local authority in order to pay for local services like schools, libraries, and refuse collection. The amount you pay depends on the value of the property.Read more about council Tax in our glossary page.
- Band: C
- PARKINGDetails of how and where vehicles can be parked, and any associated costs.Read more about parking in our glossary page.
- Ask agent
- GARDENA property has access to an outdoor space, which could be private or shared.
- Ask agent
- ACCESSIBILITYHow a property has been adapted to meet the needs of vulnerable or disabled individuals.Read more about accessibility in our glossary page.
- Ask agent
Victoria Park Road West, Victoria Park, Cardiff
Add an important place to see how long it'd take to get there from our property listings.
__mins driving to your place
Get an instant, personalised result:
- Show sellers you’re serious
- Secure viewings faster with agents
- No impact on your credit score
Your mortgage
Notes
Staying secure when looking for property
Ensure you're up to date with our latest advice on how to avoid fraud or scams when looking for property online.
Visit our security centre to find out moreDisclaimer - Property reference 34479510. The information displayed about this property comprises a property advertisement. Rightmove.co.uk makes no warranty as to the accuracy or completeness of the advertisement or any linked or associated information, and Rightmove has no control over the content. This property advertisement does not constitute property particulars. The information is provided and maintained by Hern & Crabtree, LLandaff. Please contact the selling agent or developer directly to obtain any information which may be available under the terms of The Energy Performance of Buildings (Certificates and Inspections) (England and Wales) Regulations 2007 or the Home Report if in relation to a residential property in Scotland.
*This is the average speed from the provider with the fastest broadband package available at this postcode. The average speed displayed is based on the download speeds of at least 50% of customers at peak time (8pm to 10pm). Fibre/cable services at the postcode are subject to availability and may differ between properties within a postcode. Speeds can be affected by a range of technical and environmental factors. The speed at the property may be lower than that listed above. You can check the estimated speed and confirm availability to a property prior to purchasing on the broadband provider's website. Providers may increase charges. The information is provided and maintained by Decision Technologies Limited. **This is indicative only and based on a 2-person household with multiple devices and simultaneous usage. Broadband performance is affected by multiple factors including number of occupants and devices, simultaneous usage, router range etc. For more information speak to your broadband provider.
Map data ©OpenStreetMap contributors.








