
Tarka Way, Crediton, EX17

- PROPERTY TYPE
Town House
- BEDROOMS
3
- BATHROOMS
2
- SIZE
Ask agent
- TENUREDescribes how you own a property. There are different types of tenure - freehold, leasehold, and commonhold.Read more about tenure in our glossary page.
Freehold
Key features
- Three bedroom end-terrace townhouse arranged over three floors
- Well maintained and presented in excellent order throughout
- Popular residential development on the edge of Crediton
- Spacious first floor living room and kitchen/dining room
- Principal bedroom with en suite shower room
- Flexible ground floor hobby room or home office
- Garage part converted with two useful store areas retained
- Landscaped rear garden with defined seating areas
- Driveway parking to the front
- Good access to schools, shops, bus and train links
Description
Set within the popular Tarka Way development on the edge of Crediton, 87 Tarka Way is a well presented three bedroom end-terrace townhouse arranged over three floors, offering flexible modern living in a practical and convenient setting. The position gives good access to local schools, shops, bus and train links, while open countryside is close by with miles of countryside walks on offer.
The house has been carefully maintained and is presented in excellent order throughout, with a light and balanced feel across each level. The accommodation is arranged to suit modern living, with the main reception spaces positioned on the first floor to make the most of the outlook and natural light and access out onto the garden.
On entering the property, the ground floor hallway provides useful storage (often lacking in modern homes) and access to what was formerly the garage. This has now been thoughtfully altered to create a hobby room or additional reception space, which works equally well as a home office or playroom/tv room. The remaining sections provide two separate store areas, retaining practical storage for bikes, bins and general household items.
The first floor forms the heart of the home. The living room is positioned to the front, offering a comfortable space to relax with the open outlook, while the kitchen and dining room sit to the rear and open out onto the garden. There is plenty of room for a dining table, and the layout makes it easy to move between cooking, dining and outdoor space. A WC is also located on this level for everyday convenience.
On the top floor are three bedrooms and the family bathroom. The principal bedroom benefits from its own en-suite shower room, while the remaining two bedrooms are well proportioned and adaptable for children, guests or working from home.
Outside, the rear garden has been landscaped to create a usable and low maintenance space, with defined seating areas and planting that soften the layout. As an end-terrace property, there is a little more sense of openness compared to mid-terrace homes nearby. To the front, there is driveway parking for 2 vehicles, along with access to the remaining storage area of the garage and side access to the rear garden via the side steps.
Overall, 87 Tarka Way offers flexible accommodation, excellent presentation and useful additional ground floor space, making it a practical and comfortable home within easy reach of everything Crediton has to offer.
Agents Notes:
Boundaries, Access & Parking:
Boundary positions, access rights and parking arrangements have been provided by the seller, and any land plans shown are for identification purposes only. We have not seen the title deeds or other legal documents, and buyers should confirm exact details and ownership responsibilities with their conveyancer.
Broadband & Mobile Coverage:
Broadband speeds and mobile signal vary by provider and location, and service availability can change over time. Buyers can check current availability and predicted speeds at or via the Ofcom coverage checker.
Virtual Staging:
Some images used in this marketing material may be virtually staged for illustration purposes. Buyers should not assume that furnishings, décor, or condition shown are representative of the property as currently presented.
Buyers' Compliance Fee Notice
Please note that a compliance check fee of £25 (inc. VAT) per person is payable once your offer is accepted. This non-refundable fee covers essential ID verification and anti-money laundering checks, as required by law.
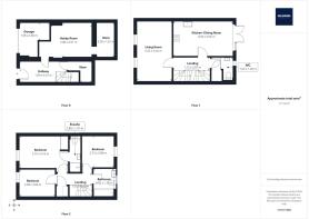
Please see the floorplan for room sizes.
Current Council Tax: Band C – Mid Devon
Approx Age: 2019
Construction Notes: Standard
Utilities: Mains electric, water, gas, telephone & broadband
Drainage: Mains
Heating: Mains gas
Listed: No
Conservation Area: No
Tenure: Freehold with an estate charge annually of approx. £181 to cover communal areas and infrastructure.
CREDITON is a vibrant market town with a bustling high street full of independent shops, eateries, and pubs. In recent years a diverse arts scene has grown to include all manner of mediums, with the performing arts making use of the town’s market square where, in the summer months, a range of activities take place. The market square is also home to the town’s twice-monthly farmer’s market. The town has an equally significant past. It was originally the first Bishopric in Devon and the imposing Parish Church of The Holy Cross now stands where once stood Devon’s first Saxon cathedral (909-1050AD). It is also the birthplace of Saint Boniface, one of the founding fathers of the Christian church in Europe. Easily commutable to Exeter and with two primary schools, a secondary school with sixth form as well as a wide range of necessary amenities, it’s clear why the town is a firm favourite with locals and relocators alike.
DIRECTIONS : For sat-nav use EX17 3FF and the What3Words address is ///land.caveman.upward but if you want the traditional directions, please read on.
From the “Tesco” roundabout on the A377, head up Wellparks Hill and then first left into Tarka Way. Take the next left into Molyneux Drive, proceed all the way to the bottom and bear right, the property will be found on the right.
EPC Rating: B
Brochures
Property Brochure- COUNCIL TAXA payment made to your local authority in order to pay for local services like schools, libraries, and refuse collection. The amount you pay depends on the value of the property.Read more about council Tax in our glossary page.
- Band: C
- PARKINGDetails of how and where vehicles can be parked, and any associated costs.Read more about parking in our glossary page.
- Yes
- GARDENA property has access to an outdoor space, which could be private or shared.
- Private garden
- ACCESSIBILITYHow a property has been adapted to meet the needs of vulnerable or disabled individuals.Read more about accessibility in our glossary page.
- Ask agent
Tarka Way, Crediton, EX17
Add an important place to see how long it'd take to get there from our property listings.
__mins driving to your place
Get an instant, personalised result:
- Show sellers you’re serious
- Secure viewings faster with agents
- No impact on your credit score
Your mortgage
Notes
Staying secure when looking for property
Ensure you're up to date with our latest advice on how to avoid fraud or scams when looking for property online.
Visit our security centre to find out moreDisclaimer - Property reference e0726578-0e9e-423a-ad8f-cce63c190707. The information displayed about this property comprises a property advertisement. Rightmove.co.uk makes no warranty as to the accuracy or completeness of the advertisement or any linked or associated information, and Rightmove has no control over the content. This property advertisement does not constitute property particulars. The information is provided and maintained by Helmores, Crediton. Please contact the selling agent or developer directly to obtain any information which may be available under the terms of The Energy Performance of Buildings (Certificates and Inspections) (England and Wales) Regulations 2007 or the Home Report if in relation to a residential property in Scotland.
*This is the average speed from the provider with the fastest broadband package available at this postcode. The average speed displayed is based on the download speeds of at least 50% of customers at peak time (8pm to 10pm). Fibre/cable services at the postcode are subject to availability and may differ between properties within a postcode. Speeds can be affected by a range of technical and environmental factors. The speed at the property may be lower than that listed above. You can check the estimated speed and confirm availability to a property prior to purchasing on the broadband provider's website. Providers may increase charges. The information is provided and maintained by Decision Technologies Limited. **This is indicative only and based on a 2-person household with multiple devices and simultaneous usage. Broadband performance is affected by multiple factors including number of occupants and devices, simultaneous usage, router range etc. For more information speak to your broadband provider.
Map data ©OpenStreetMap contributors.







