
East Street, Crediton, EX17

- PROPERTY TYPE
Terraced
- BEDROOMS
3
- BATHROOMS
1
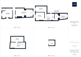
- SIZE
926 sq ft
86 sq m
- TENUREDescribes how you own a property. There are different types of tenure - freehold, leasehold, and commonhold.Read more about tenure in our glossary page.
Freehold
Key features
- Deceptively large property
- 3 Double bedrooms
- Extended in 2025
- Private courtyard with shed
- Open plan kitchen/diner
- Walking distance to shops and public transport
- Set over 3 floors
- Character features
- Newly fitted bathroom
Description
A well-arranged three-bedroom home set over three floors, within easy walking distance of Crediton town centre, its shops, and rail and bus connections.
The house has been extended to create a generous kitchen and dining space that forms the natural hub of the home. There is plenty of room for a full table, making it a practical area for everyday meals as well as spending time with friends or family. The layout allows for an easy flow through the ground floor while still giving each area a clear purpose.
Across the upper levels are three genuine double bedrooms, each well proportioned and filled with natural light. The accommodation is arranged over three floors, which gives a sense of separation between living and sleeping spaces and allows flexibility in how the rooms are used.
A newly fitted bathroom has been updated in a clean, contemporary style, providing a fresh and functional space and a utility area on the 1st floor creates a perfect space for laundry and storage.
Outside, the private courtyard offers a low-maintenance spot for sitting out, along with a useful storage shed. It’s an easy space to manage while still giving you somewhere to enjoy fresh air or keep bikes and outdoor equipment.
Throughout the property, character features remain in place, adding interest and texture while blending comfortably with the more recent improvements.
Please see the floorplan for room sizes.
Current Council Tax: Band B - Mid Devon 2025/26 - £2034.67
Utilities: Mains electric, gas, water, telephone & broadband
Broadband within this postcode: Ultrafast 2000Mbps
Drainage: Mains drainage
Heating: Mains gas central heating
Listed: No
Conservation Area: Yes
Tenure: Freehold
Buyers' Compliance Fee Notice: Please note that a compliance check fee of £25 (inc. VAT) per person is payable once your offer is accepted. This non-refundable fee covers essential ID verification and anti-money laundering checks, as required by law.
Boundary positions, access rights and parking arrangements have been provided by the seller, and any land plans shown are for identification purposes only. We have not seen the title deeds or other legal documents, and buyers should confirm exact details and ownership responsibilities with their conveyancer.
Some images in this brochure may have been digitally enhanced or virtually staged, for example by adding lighting effects, twilight ambience, furniture or décor, to help illustrate how the property could look. These images are only illustrative and do not show the current fixtures, fittings or condition. Always rely on your viewing for an accurate understanding of the property.
CREDITON is a vibrant market town with a bustling high street full of independent shops, eateries, and pubs. In recent years a diverse arts scene has grown to include all manner of mediums, with the performing arts making use of the town’s market square where, in the summer months, a range of activities take place. The market square is also home to the town’s twice-monthly farmer’s market. The town has an equally significant past. It was originally the first Bishopric in Devon and the imposing Parish Church of The Holy Cross now stands where once stood Devon’s first Saxon cathedral (909-1050AD). It is also the birthplace of Saint Boniface, one of the founding fathers of the Christian church in Europe. Easily commutable to Exeter and with two primary schools, a secondary school with sixth form as well as a wide range of necessary amenities, it’s clear why the town is a firm favourite with locals and relocators alike.
DIRECTIONS
From Crediton High Street, take the A377 in an Easterly direction. Going past the Church, East Street can be found on the left and number 55 will be marked with a Helmores board.
For Sat Nav: EX17 3BA
What3Words: ///unwound.workshops.banana
EPC Rating: G
Yard
Private courtyard
Brochures
Property Brochure- COUNCIL TAXA payment made to your local authority in order to pay for local services like schools, libraries, and refuse collection. The amount you pay depends on the value of the property.Read more about council Tax in our glossary page.
- Band: B
- PARKINGDetails of how and where vehicles can be parked, and any associated costs.Read more about parking in our glossary page.
- Yes
- GARDENA property has access to an outdoor space, which could be private or shared.
- Private garden
- ACCESSIBILITYHow a property has been adapted to meet the needs of vulnerable or disabled individuals.Read more about accessibility in our glossary page.
- Ask agent
Energy performance certificate - ask agent
East Street, Crediton, EX17
Add an important place to see how long it'd take to get there from our property listings.
__mins driving to your place
Get an instant, personalised result:
- Show sellers you’re serious
- Secure viewings faster with agents
- No impact on your credit score
Your mortgage
Notes
Staying secure when looking for property
Ensure you're up to date with our latest advice on how to avoid fraud or scams when looking for property online.
Visit our security centre to find out moreDisclaimer - Property reference 8a85912e-3139-4776-b91e-b1843e9e8e51. The information displayed about this property comprises a property advertisement. Rightmove.co.uk makes no warranty as to the accuracy or completeness of the advertisement or any linked or associated information, and Rightmove has no control over the content. This property advertisement does not constitute property particulars. The information is provided and maintained by Helmores, Crediton. Please contact the selling agent or developer directly to obtain any information which may be available under the terms of The Energy Performance of Buildings (Certificates and Inspections) (England and Wales) Regulations 2007 or the Home Report if in relation to a residential property in Scotland.
*This is the average speed from the provider with the fastest broadband package available at this postcode. The average speed displayed is based on the download speeds of at least 50% of customers at peak time (8pm to 10pm). Fibre/cable services at the postcode are subject to availability and may differ between properties within a postcode. Speeds can be affected by a range of technical and environmental factors. The speed at the property may be lower than that listed above. You can check the estimated speed and confirm availability to a property prior to purchasing on the broadband provider's website. Providers may increase charges. The information is provided and maintained by Decision Technologies Limited. **This is indicative only and based on a 2-person household with multiple devices and simultaneous usage. Broadband performance is affected by multiple factors including number of occupants and devices, simultaneous usage, router range etc. For more information speak to your broadband provider.
Map data ©OpenStreetMap contributors.







