Derby Road, Draycott, DE72

- PROPERTY TYPE
Semi-Detached
- BEDROOMS
4
- BATHROOMS
2
- SIZE
1,313 sq ft
122 sq m
- TENUREDescribes how you own a property. There are different types of tenure - freehold, leasehold, and commonhold.Read more about tenure in our glossary page.
Freehold
Key features
- An extended FOUR bedroom Victorian semi detached home
- Double glazed Sash windows and gas central heating with a five year old boiler.
- Refurbished to a high standard keeping many original features with contemporary modern decoration
- Open plan dining kitchen with built-in appliances, a ceiling lantern window and log burner
- Master bedroom with en-suite to the top floor with floor to ceiling window offering views over the fields
- Off road parking
- Award winning village location
- Excellent transport links and close to countryside walks
- A good sized rear garden
- Viewings available seven days a week
Description
Outside, the property boasts a newly laid driveway to the front, providing parking for at least two cars. To the right, a gated side access leads to the substantial rear garden, which extends over 70 feet in length. Immediately adjacent to the house is a patio area, ideal for outdoor dining or relaxing, which opens onto a well maintained lawn. A pathway meanders through the lawn to a second patio at the far end, complemented by a handy garden shed for storage. The garden is bordered on one side by gravel and on the other by a thoughtfully planted flower and shrub border, adding colour and interest throughout the seasons. Fully enclosed with fenced boundaries, the garden offers a private and secure outdoor space for families to enjoy. An outside tap is also conveniently located for gardening needs. This impressive garden perfectly complements the spacious and stylish interior, making this home an ideal choice for those seeking both indoor comfort and outdoor living.
Draycott village offers local shops, schools for younger children, and further shopping options in nearby villages like Breaston, Borrowash, and Sawley. Long Eaton, is a short drive away, providing access to supermarkets and well appointed schools such as Trent College. Healthcare and sports facilities, including golf courses and countryside walks, are available. Excellent transport links include J25 of the M1, East Midlands Airport, and nearby train stations with easy access to Nottingham, Derby, and other East Midlands towns and cities via the A52 and other main roads.
Tenure - Freehold
Council Tax Band - C
Partner - Emma Cavers
EPC Rating: D
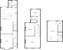
Entrance Porch
Original tiling and door to
Entrance Hall
Composite front entrance door, coving to the ceiling, dado rail, stairs to the first floor landing and doors to
Lounge
4.42m x 3.68m
UPVC double glazed Sash bay window to the front, feature fireplace with Adam style surround and tiled hearth, coving to the ceiling, picture rail, radiator, ceiling rose, wooden floor.
Dining Kitchen
8.33m x 3.56m
This is the main focal point of the home. There is a sitting area which has a log burner on a tiled hearth, two radiators, a large storage unit housing the gas central heating boiler and consumer unit and wooden floor which leads into the Kitchen. Here we have a wood panelled wall, an Island that has storage units, work tops, Belfast sink and drainer unit with a mixer tap over, built-in dishwasher and breakfast bar. On the walls and wall, base and dfrawer units with wooden worktop to the right hand side, built-in fridge/freezer, microwave, grill and separate oven, tiled walls and splashbacks, Induction hob with extractor hood over, spotlights, Roof Lantern, Double glazed patio doors to the rear garden, understairs storage and door to
Utility Room
2.03m x 1.55m
Wooden floor, radiator, work top, plumbing for automatic washing machine, UPVC double glazed window, appliance space, spotlights and door to
WC
Low flush w.c, sink with storage, extractor fan, laminate floor.
Landing
Coving to the ceiling, dado rail, stairs to the second floor and doors to
Bedroom Two
4.6m x 3.58m
UPVC double glazed Sash window to the front x2, feature fireplace with original tiled hearth and radiator.
Bedroom Three
3.99m x 2.92m
UPVC double glazed Sash window, radiator and original feature fireplace with tiled hearth.
Bedroom Four
2.79m x 2.03m
UPVC double glazed Sash window and radiator.
Bathroom
Panelled bath with shower from the mains having a Chatsworth waterfall shower head and a hand held shower head keeping in design with the character of the property, vanity unit with a low flush w.c and sink with storage, character radiator, tiled walls and splashbacks, laminate floor, UPVC double glazed window, extractor fan and shaver point.
Second Floor Landing
Access to the attic storage which is 11.3ft in length, double glazed window and door to
Master Bedroom
6.17m x 3.15m
This lovely room has a dual aspect with a Velux window to the front and a floor to ceiling window at the rear offering beautiful views over the fields. Vertical modern radiator, spotlights and door to
En-suite
Walk-in shower cubicle with shower from the mains having a waterfall shower head and a hand held shower head, low flush w.c, sink with storage, tiled walls and splashbacks, chrome heated towel rail, Velux window and shaver point.
Garden
To the front of the property is a newly laid driveway offering parking for at least two cars. There is access to the right where there is a gate leading to the over 70ft in length garden. Immediate to the property is a patio area which leads to the lawn. Here we have a path leading through the lawn to the bottom of the garden where there is another patio and a garden shed. The lawn has a gravel border one side and then a border to the left with flowers and bushes. The garden is privately enclosed with fenced boundaries. Outside tap.
Parking - Off street
Disclaimer
In accordance with current legal requirements, all prospective purchasers are required to undergo an Anti-Money Laundering (AML) check. An administration fee of £40 per property will apply. This fee is payable after an offer has been accepted and must be settled before a memorandum of sale can be issued.
- COUNCIL TAXA payment made to your local authority in order to pay for local services like schools, libraries, and refuse collection. The amount you pay depends on the value of the property.Read more about council Tax in our glossary page.
- Band: C
- PARKINGDetails of how and where vehicles can be parked, and any associated costs.Read more about parking in our glossary page.
- Off street
- GARDENA property has access to an outdoor space, which could be private or shared.
- Private garden
- ACCESSIBILITYHow a property has been adapted to meet the needs of vulnerable or disabled individuals.Read more about accessibility in our glossary page.
- Ask agent
Energy performance certificate - ask agent
Derby Road, Draycott, DE72
Add an important place to see how long it'd take to get there from our property listings.
__mins driving to your place
Get an instant, personalised result:
- Show sellers you’re serious
- Secure viewings faster with agents
- No impact on your credit score
Affordability
Notes
Staying secure when looking for property
Ensure you're up to date with our latest advice on how to avoid fraud or scams when looking for property online.
Visit our security centre to find out moreDisclaimer - Property reference 280743de-eab4-4f2c-a3ae-8f13928ad83b. The information displayed about this property comprises a property advertisement. Rightmove.co.uk makes no warranty as to the accuracy or completeness of the advertisement or any linked or associated information, and Rightmove has no control over the content. This property advertisement does not constitute property particulars. The information is provided and maintained by Hortons, National. Please contact the selling agent or developer directly to obtain any information which may be available under the terms of The Energy Performance of Buildings (Certificates and Inspections) (England and Wales) Regulations 2007 or the Home Report if in relation to a residential property in Scotland.
*This is the average speed from the provider with the fastest broadband package available at this postcode. The average speed displayed is based on the download speeds of at least 50% of customers at peak time (8pm to 10pm). Fibre/cable services at the postcode are subject to availability and may differ between properties within a postcode. Speeds can be affected by a range of technical and environmental factors. The speed at the property may be lower than that listed above. You can check the estimated speed and confirm availability to a property prior to purchasing on the broadband provider's website. Providers may increase charges. The information is provided and maintained by Decision Technologies Limited. **This is indicative only and based on a 2-person household with multiple devices and simultaneous usage. Broadband performance is affected by multiple factors including number of occupants and devices, simultaneous usage, router range etc. For more information speak to your broadband provider.
Map data ©OpenStreetMap contributors.




