
Green Lane, Chichester, PO19

- PROPERTY TYPE
House
- BEDROOMS
2
- BATHROOMS
1
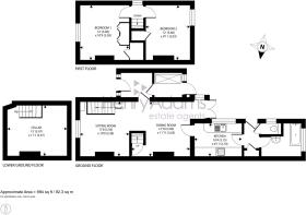
- SIZE
990 sq ft
92 sq m
- TENUREDescribes how you own a property. There are different types of tenure - freehold, leasehold, and commonhold.Read more about tenure in our glossary page.
Freehold
Key features
- Entrance hall/porch
- Open plan sitting room/dining room
- Galley kitchen
- Ground floor bathroom
- Cellar
- Two double bedrooms
- Long west aspect rear garden
- No onward chain
Description
A linked detached two double bedroom house conveniently located close to the city centre.
An ideal renovation project, conveniently located just a half a mile level walk from Chichester city centre. This older-style two-double-bedroom attached house is unusually linked only by the entrance hall/side porch.
The property has remained in the same ownership for over 70 years and is offered with no onward chain.
The accommodation comprises an open-plan, dual-aspect sitting and dining room, featuring French doors opening onto the rear garden. The galley kitchen leads to a rear lobby, with a ground-floor bathroom and separate WC. To the first floor are two well-proportioned double bedrooms. There is also the benefit of a cellar accessed from the sitting room.
Outside, the property enjoys a paved forecourt front garden, enclosed by low walls and wrought-iron gates. To the rear is a long westerly-facing garden, currently a blank canvas and offering excellent potential for landscaping or extension (subject to planning).
A rare opportunity to acquire a character property in a highly convenient location with significant scope for improvement.
Chichester District Council - 25/26 Tax Band D £2,337.06 EPC-E
Directions - Proceed east out of Chichester along the The Hornet. Turn left at the Four Chesnuts public house into Oving Road and take the second left into Green Lane. Number 14 is a short distance along on the left. What3words - gums.reach.owners
Brochures
Property Brochure- COUNCIL TAXA payment made to your local authority in order to pay for local services like schools, libraries, and refuse collection. The amount you pay depends on the value of the property.Read more about council Tax in our glossary page.
- Band: D
- PARKINGDetails of how and where vehicles can be parked, and any associated costs.Read more about parking in our glossary page.
- Ask agent
- GARDENA property has access to an outdoor space, which could be private or shared.
- Private garden
- ACCESSIBILITYHow a property has been adapted to meet the needs of vulnerable or disabled individuals.Read more about accessibility in our glossary page.
- Ask agent
Energy performance certificate - ask agent
Green Lane, Chichester, PO19
Add an important place to see how long it'd take to get there from our property listings.
__mins driving to your place
Get an instant, personalised result:
- Show sellers you’re serious
- Secure viewings faster with agents
- No impact on your credit score
Your mortgage
Notes
Staying secure when looking for property
Ensure you're up to date with our latest advice on how to avoid fraud or scams when looking for property online.
Visit our security centre to find out moreDisclaimer - Property reference 3f580197-9542-44c0-b616-e2a6d6a65b4e. The information displayed about this property comprises a property advertisement. Rightmove.co.uk makes no warranty as to the accuracy or completeness of the advertisement or any linked or associated information, and Rightmove has no control over the content. This property advertisement does not constitute property particulars. The information is provided and maintained by Henry Adams, Chichester. Please contact the selling agent or developer directly to obtain any information which may be available under the terms of The Energy Performance of Buildings (Certificates and Inspections) (England and Wales) Regulations 2007 or the Home Report if in relation to a residential property in Scotland.
*This is the average speed from the provider with the fastest broadband package available at this postcode. The average speed displayed is based on the download speeds of at least 50% of customers at peak time (8pm to 10pm). Fibre/cable services at the postcode are subject to availability and may differ between properties within a postcode. Speeds can be affected by a range of technical and environmental factors. The speed at the property may be lower than that listed above. You can check the estimated speed and confirm availability to a property prior to purchasing on the broadband provider's website. Providers may increase charges. The information is provided and maintained by Decision Technologies Limited. **This is indicative only and based on a 2-person household with multiple devices and simultaneous usage. Broadband performance is affected by multiple factors including number of occupants and devices, simultaneous usage, router range etc. For more information speak to your broadband provider.
Map data ©OpenStreetMap contributors.








