
Newmarket Road, Rose & Crown House, CB5

Letting details
- Let available date:
- 21/08/2026
- Deposit:
- £4,384A deposit provides security for a landlord against damage, or unpaid rent by a tenant.Read more about deposit in our glossary page.
- Furnish type:
- Furnished
- Council Tax:
- Ask agent
- PROPERTY TYPE
House Share
- BEDROOMS
6
- BATHROOMS
3
- SIZE
1,604 sq ft
149 sq m
Key features
- Council Tax Band D
- EPC Rating D
- 2 Fridge Freezers
- Electric oven & hob
- Dishwasher
- Washing machine
- Tumble dryer
- 6 Bedrooms
- 3 Bathrooms
- 1 Reception Room
Description
STUDENTS ONLY. Available to a group of students who know each other, NOT as individual rooms. This exceptional six bedroom apartment is arranged over two floors and ideally placed for ARU. Accommodation includes, 6 double bedrooms (one with en suite), bathroom with shower, separate shower room and WC. Stunning vaulted living room and kitchen. External cycle store. Available for a fixed period from 20/07/2026 - 09/08/2027 on a joint and several contract. EPC Rating D
Referencing
Guarantor’s Salary required for referencing purposes must be no less than £22,800 per annum
Holding deposit and Security deposit
Holding Deposit of 1 weeks rent payable upon acceptance of a tenancy application which is off-set against the first rent payment, worked out as rent x 12 (months) ÷ 52 (weeks). Non refundable if you fail referencing, Right to Rent checks, provide any misleading information or withdraw before the tenancy is signed. Security Deposit = 5 weeks rent worked out as £(rent) x 12 (months in a year) ÷ 52 (weeks in a year) x 5 (weeks).
Pictures
Pictures provided are for guidance, and to give an overall impression of the property. Photos may have been taken when items were newly installed, and do not necessarily mean they are new or will be provided when a tenancy starts. NOTE - a wide angle lens may have been used to ensure as much of the room is included for viewers information.
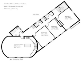
Floor plans
Floor plans are provided as a guide to the layout. Prospective tenants are advised to take their own measurements if precise dimensions are required.
Residential Area
The property is situated within a residential area and residents may include, for example, families with children, night shift workers, professional sharers or elderly people. Students taking on a tenancy in the property are asked to be considerate to their neighbours and mindful of residents within the local area.
Mobile & Broadband Checker
Broadband Type and Mobile Signal/Coverage can be checked at Ofcom's Broadband and mobile coverage checker:
Utility Bills
Electric and water - these services are sub-metered therefore Cambridge property lettings will invoice the tenants for use of electricity (including standing charge) on a monthly basis and water to be invoiced to tenants upon receipt of the water bill. The invoice is to be paid within seven working days of receipt.
Window cleaning
Window cleaning. Cambridge Property Lettings will arrange for the external windows of the property to be cleaned on a regular basis and will invoice the tenants accordingly. Payment is to be made within seven days of the invoice being presented.
- COUNCIL TAXA payment made to your local authority in order to pay for local services like schools, libraries, and refuse collection. The amount you pay depends on the value of the property.Read more about council Tax in our glossary page.
- Band: D
- LISTED PROPERTYA property designated as being of architectural or historical interest, with additional obligations imposed upon the owner.Read more about listed properties in our glossary page.
- Listed
- PARKINGDetails of how and where vehicles can be parked, and any associated costs.Read more about parking in our glossary page.
- Ask agent
- GARDENA property has access to an outdoor space, which could be private or shared.
- Ask agent
- ACCESSIBILITYHow a property has been adapted to meet the needs of vulnerable or disabled individuals.Read more about accessibility in our glossary page.
- Ask agent
Energy performance certificate - ask agent
Newmarket Road, Rose & Crown House, CB5
Add an important place to see how long it'd take to get there from our property listings.
__mins driving to your place
Notes
Staying secure when looking for property
Ensure you're up to date with our latest advice on how to avoid fraud or scams when looking for property online.
Visit our security centre to find out moreDisclaimer - Property reference eb91d4b1-bdd0-477f-a874-e3412f2472e6. The information displayed about this property comprises a property advertisement. Rightmove.co.uk makes no warranty as to the accuracy or completeness of the advertisement or any linked or associated information, and Rightmove has no control over the content. This property advertisement does not constitute property particulars. The information is provided and maintained by Cambridge Property Lettings, Cambridge. Please contact the selling agent or developer directly to obtain any information which may be available under the terms of The Energy Performance of Buildings (Certificates and Inspections) (England and Wales) Regulations 2007 or the Home Report if in relation to a residential property in Scotland.
*This is the average speed from the provider with the fastest broadband package available at this postcode. The average speed displayed is based on the download speeds of at least 50% of customers at peak time (8pm to 10pm). Fibre/cable services at the postcode are subject to availability and may differ between properties within a postcode. Speeds can be affected by a range of technical and environmental factors. The speed at the property may be lower than that listed above. You can check the estimated speed and confirm availability to a property prior to purchasing on the broadband provider's website. Providers may increase charges. The information is provided and maintained by Decision Technologies Limited. **This is indicative only and based on a 2-person household with multiple devices and simultaneous usage. Broadband performance is affected by multiple factors including number of occupants and devices, simultaneous usage, router range etc. For more information speak to your broadband provider.
Map data ©OpenStreetMap contributors.






