Cliveden Road, Maidenhead, SL6

Letting details
- Let available date:
- Now
- Deposit:
- £3,000A deposit provides security for a landlord against damage, or unpaid rent by a tenant.Read more about deposit in our glossary page.
- Min. Tenancy:
- Ask agent How long the landlord offers to let the property for.Read more about tenancy length in our glossary page.
- Let type:
- Long term
- Furnish type:
- Furnished or unfurnished, landlord is flexible
- Council Tax:
- Ask agent
- PROPERTY TYPE
Detached
- BEDROOMS
3
- BATHROOMS
2
- SIZE
Ask agent
Key features
- No Agent Fees
- Students Can Enquire
- Property Reference Number: 2778848
Description
Firstly, if you've sent a message, check your junk folder for a response! We might be lost! Now, back to business... (:
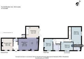
This is simply a beautiful home in Taplow Village, designated as a Conservation Area, and Area of Historical Interest. Tucked up quietly behind the main house, Queen Anne's Cottage is the original 400-year old stable block to Queen Anne House next door, has been immaculately converted into an open plan, 3 bedroom house. The large kitchen/dining area includes all of the conventional facilities but also a ceramic hob, rising downdraft hob extractor fan, wine chiller, air fryer, breakfast bar and access to the recess-lit patio through large glass doors.
Behind this area is a downstairs WC, laundry facilities and a cosy den with a working fireplace. Upstairs are 3 carpeted bedrooms including a spacious master bedroom with generous storage and an ensuite bath/shower room. Additionally there is one south-facing bedroom with a juliette balcony (currently being refurbished), and another with south and east facing windows, both rooms with beautiful expansive views, a shared family bathroom, and a large mirrored storage cabinet in the hallway.
Bedroom Capacity: 4-6
Heating: Downstairs and upstairs bathrooms have underfloor heating. Upstairs, the bedrooms and hallway are heated by radiators.
Furnishing: Currently there is a 6-seat dining table in the kitchen but options for that and more furniture are available
The Garden: Come Spring and Summer, the front bed is planted with flowering plants and shrubs while roses climb the walls. The back patio and private garden are accessed via large glass doors in the kitchen, plus there is the possibility of access to the orchard behind by arrangement with the owner. The recessed lighting around the patio creates a lovely atmosphere for warm evenings.
Parking: The house is accessed via a long driveway beside Queen Anne House. At the top, there is a shared cotswold stone parking area where this property has (strictly) two private spaces. If any more spaces are required, there are easy options within a 1-minute walk of the property.
Pets: The owner LOVES animals so pets are welcome but would be cautious about outdoor cats. For dogs, Queen Anne's Cottage is heaven, surrounded by fantastic walks, a fabulous dog friendly pub a 4-minute walk away and lots of villagers and village dogs to team up with. Also, Cliveden House is only a short drive away and has hundreds of acres of parkland, woodlands and river access plus swimming at Taplow Lake at the bottom of Berry Hill. We also have Taeppa’s Barrow a 3 minute walk away. It is a high, ancient burial mound in the grounds of Taplow Court where dog owners fling tennis balls from the top so the dogs have to bring them back up - at speed. Useful for days when you are low on time and need to exhaust your dog quickly. There is also a hinged gate at the bottom of the stairs should one need it on wet dog days.
The Village: Taplow Village is a very warm and welcoming community and new residents will have a whole new social life in no time should they want one. This village just gives you a big hug when you arrive with residents spanning all ages and talents. To help with getting to know one another, there are 3 Whatsapp groups, 'Taplow Girls', 'Taplow Boys' and 'Taplow Social' which keep everyone connected for social events, lifestyle, service providers, business issues, and a fantastic resource for any questions.
Taplow Hubs: All facing one another across a large central green are the 4 village hubs.
- St. Nicholas Church,
- St. Nicholas School, ages 4-11
- The Oak & Saw, , our award-winning village pub which is deservedly rated as “Excellent” on TripAdviser, and finally
- The Parish Hall which is not only used for meetings but for community activities such as yoga, pilates and other events.
Local Amenities and Places to Visit:
- Supermarkets: Tesco’s, Sainsbury’s, Waitrose all within 7 minutes
- Shopping: Maidenhead, Slough, Windsor
- Sports and Hospitality: Amongst many other venues we have the Taplow Cricket Club which is provides a heaving social hub throughout most of the year and a 2 minute walk away, Braywick Leisure Centre, Cliveden House Hotel and Spa, Taplow Court, Taplow House Hotel & Spa where villagers get special discounts, the Odeon Cinema and many riverside restaurants and bars a 15-20 minute off-road walk away.
- The best towns to visit nearby include Windsor, Bray, Henley, Marlow and Reading.
- Events within 30 minutes drive: Royal Ascot, Windsor Races, Henley Regatta, BMW Open Championship at Wentworth, Henley Festival and more.
Transport:
- Rail: Taplow Station is 1.1m away. It is on the Elizabeth Line with an approx 40min fast train journey to Paddington. Parking is available at the station (4min drive), cycle (5min) or walk (20-23min)
- Car: Taplow is about a 5 minute drive from the M4, 8 mins from the A404, 15-25 mins from Heathrow Airport depending on which Terminal.
Summary & Exclusions:
- Rent Amount: £3,000.00 per month (£692.31 per week)
- Deposit / Bond: £3,000.00
- 3 Bedrooms
- 2 Bathrooms
- Property comes furnished or unfurnished (tenant can decide)
- Available to move in from 27 February 2026
- Minimum tenancy term is 4 months
- Maximum number of tenants is 6
- Students welcome to enquire
- Pets considered / by arrangement
- No Smokers
- Family Friendly
- Bills not included
- Property has parking
- Property has garden access
- Property has fireplace
- EPC Rating: E
If calling, please quote reference: 2778848
Fees:
You will not be charged any admin fees.
** Contact today to book a viewing and have the landlord show you round! **
Request Details form responded to 24/7, with phone bookings available 9am-9pm, 7 days a week.
- COUNCIL TAXA payment made to your local authority in order to pay for local services like schools, libraries, and refuse collection. The amount you pay depends on the value of the property.Read more about council Tax in our glossary page.
- Ask agent
- PARKINGDetails of how and where vehicles can be parked, and any associated costs.Read more about parking in our glossary page.
- Private
- GARDENA property has access to an outdoor space, which could be private or shared.
- Private garden
- ACCESSIBILITYHow a property has been adapted to meet the needs of vulnerable or disabled individuals.Read more about accessibility in our glossary page.
- Ask agent
Energy performance certificate - ask agent
Cliveden Road, Maidenhead, SL6
Add an important place to see how long it'd take to get there from our property listings.
__mins driving to your place
Notes
Staying secure when looking for property
Ensure you're up to date with our latest advice on how to avoid fraud or scams when looking for property online.
Visit our security centre to find out moreDisclaimer - Property reference 277884801022026. The information displayed about this property comprises a property advertisement. Rightmove.co.uk makes no warranty as to the accuracy or completeness of the advertisement or any linked or associated information, and Rightmove has no control over the content. This property advertisement does not constitute property particulars. The information is provided and maintained by OpenRent, London. Please contact the selling agent or developer directly to obtain any information which may be available under the terms of The Energy Performance of Buildings (Certificates and Inspections) (England and Wales) Regulations 2007 or the Home Report if in relation to a residential property in Scotland.
*This is the average speed from the provider with the fastest broadband package available at this postcode. The average speed displayed is based on the download speeds of at least 50% of customers at peak time (8pm to 10pm). Fibre/cable services at the postcode are subject to availability and may differ between properties within a postcode. Speeds can be affected by a range of technical and environmental factors. The speed at the property may be lower than that listed above. You can check the estimated speed and confirm availability to a property prior to purchasing on the broadband provider's website. Providers may increase charges. The information is provided and maintained by Decision Technologies Limited. **This is indicative only and based on a 2-person household with multiple devices and simultaneous usage. Broadband performance is affected by multiple factors including number of occupants and devices, simultaneous usage, router range etc. For more information speak to your broadband provider.
Map data ©OpenStreetMap contributors.




