
Cirrus Drive, Reading, RG2

- PROPERTY TYPE
Apartment
- BEDROOMS
2
- BATHROOMS
2
- SIZE
699 sq ft
65 sq m
Key features
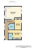
- TOP FLOOR TWO BEDROOM APARTMENT
- ENTRANCE HALL
- OPEN PLAN LOUNGE KITCHEN
- FAMILY BATHROOM
- EN SUITE
- 135 YEAR LEASE
- SHINFIELD PARK
- OVERLOOKING GREEN
Description
Accessed via a welcoming entrance hall, the property benefits from a bright and spacious open-plan lounge/kitchen, creating an excellent living and entertaining space. The kitchen is well-appointed with ample storage and workspace, while the living area benefits from plenty of natural light and pleasant outlooks.
The apartment features two well-proportioned bedrooms, including a principal bedroom with en-suite facilities, alongside a modern family bathroom. The layout provides both comfort and practicality, ideal for first-time buyers, professionals or investors.
Externally, the property benefits from allocated parking and enjoys the advantage of being positioned within a well-maintained and popular development. The apartment is offered with the remainder of a 135-year lease, providing long-term peace of mind.
Located within Shinfield Park, the property offers excellent access to local amenities, transport links, the M4, and the nearby University of Reading, making it an ideal choice for commuters and professionals alike.
Please contact Mark Moffat to view.
mark.
Tenure - Leasehold 135 years
Service Charge £1157 p.a.
Ground Rent £250 p.a.
Property & Services information
Mobile Coverage: 4G coverage is available in the area - please check with your provider.
Broadband Availability: Broadband (FTTP) is available in the area
Utilities: Mains gas, electricity and mains water and sewerage are connected.
Disclaimer
DISCLAIMER: Whilst these particulars are believed to be correct and are given in good faith, they are not warranted, and any interested parties must satisfy themselves by inspection, or otherwise, as to the correctness of each of them. These particulars do not constitute an offer or contract or part thereof and areas, measurements and distances are given as a guide only. Photographs depict only certain parts of the property. Nothing within the particulars shall be deemed to be a statement as to the structural condition, nor the working order of services and appliances.
- COUNCIL TAXA payment made to your local authority in order to pay for local services like schools, libraries, and refuse collection. The amount you pay depends on the value of the property.Read more about council Tax in our glossary page.
- Band: C
- PARKINGDetails of how and where vehicles can be parked, and any associated costs.Read more about parking in our glossary page.
- Allocated
- GARDENA property has access to an outdoor space, which could be private or shared.
- Ask agent
- ACCESSIBILITYHow a property has been adapted to meet the needs of vulnerable or disabled individuals.Read more about accessibility in our glossary page.
- Ask agent
Energy performance certificate - ask agent
Cirrus Drive, Reading, RG2
Add an important place to see how long it'd take to get there from our property listings.
__mins driving to your place
Get an instant, personalised result:
- Show sellers you’re serious
- Secure viewings faster with agents
- No impact on your credit score
Your mortgage
Notes
Staying secure when looking for property
Ensure you're up to date with our latest advice on how to avoid fraud or scams when looking for property online.
Visit our security centre to find out moreDisclaimer - Property reference RX744977. The information displayed about this property comprises a property advertisement. Rightmove.co.uk makes no warranty as to the accuracy or completeness of the advertisement or any linked or associated information, and Rightmove has no control over the content. This property advertisement does not constitute property particulars. The information is provided and maintained by The Property Experts, London. Please contact the selling agent or developer directly to obtain any information which may be available under the terms of The Energy Performance of Buildings (Certificates and Inspections) (England and Wales) Regulations 2007 or the Home Report if in relation to a residential property in Scotland.
*This is the average speed from the provider with the fastest broadband package available at this postcode. The average speed displayed is based on the download speeds of at least 50% of customers at peak time (8pm to 10pm). Fibre/cable services at the postcode are subject to availability and may differ between properties within a postcode. Speeds can be affected by a range of technical and environmental factors. The speed at the property may be lower than that listed above. You can check the estimated speed and confirm availability to a property prior to purchasing on the broadband provider's website. Providers may increase charges. The information is provided and maintained by Decision Technologies Limited. **This is indicative only and based on a 2-person household with multiple devices and simultaneous usage. Broadband performance is affected by multiple factors including number of occupants and devices, simultaneous usage, router range etc. For more information speak to your broadband provider.
Map data ©OpenStreetMap contributors.









