
Melton Road, Scalford
- PROPERTY TYPE
Land
- SIZE
Ask agent
Key features
- Development Opportunity
- Two Barn Conversions
- Class Q Planning Granted
- Planning Number 24/00166/GDOCOU
- Melton Borough Council
- Superb Location
Description
Description - Offers are invited on this exciting and rewarding barn conversion project. With the help of HSSP Architects, a local firm based in Melton Mowbray, this project was granted Class Q planning permission by the local council on May 30th, 2024. Barn conversions require careful planning and adherence to local regulations, and all the initial hard work has been done for you.
The collection of barns is set back approximately 185 meters from the road and are served by an existing gated access for vehicles. The site has maintained the existing gated access affording agricultural traffic access to the site. The two barns, plot 1 and plot 2, measure 232m2 and 231m2 respectively.
Our clients have farmed on the site since the early 1960’s and presently, neither of the barns are currently in use and haven’t been for the last five years.
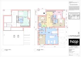
The pictures that you see are architect’s impressions of the finished conversions with floorplans also listed. Further information can be found on Melton Borough Council Website, search for planning and the number 24/00166/GDOCOU.
These conversions offer a unique opportunity to create two distinctive local homes that both blend rustic charm with modern living. You will see from the floorplans that they offer two spacious residencies and a unique living experience with superb views across the neighbouring countryside.
One can imagine the spacious living areas, the modern kitchen will be a chef's dream, featuring state-of-the-art appliances and sleek countertops. Each bedroom will have its own unique character while outdoors the conversions will continue to impress. Spacious patio areas, perfect for al fresco dining or relaxing with a book, overlooking the endless fields. Overall, these barn conversions will seamlessly merge the old with the new, offering a tranquil and stylish countryside escape.
Agents Note - AGENT & HSSP NOTE: PLANNING NUMBER 24/00166/GDOCOU, decision notice dated 03 June 2024.
This permission falls under General Permitted Development Class Q; it is a notice issued by the Local Planning Authority stating that they are of the opinion that the property owner has the right to convert the barns to two dwelling houses, subject to conditions. This differs to full detailed planning approval. The width of the access track and turning facilities are not a Class Q consideration.
There are no conditions pertaining to hard or soft landscaping aside from being in accordance with the approved drawings. There are no dimensions on the driveway shown on the planning drawings. Therefore, the exact widths and radii of driveways/turning areas can be amended, within reason, to meet building regulations without further approval.
It should be noted that the approval and drawings are for “planning purposes only”, building regulation approval remains a statutory requirement.
If the site owner wishes to develop the site in a way that differs to the extant permission, they could submit a full detailed planning application.
Brochures
Melton Road, ScalfordMelton Road, Scalford
NEAREST STATIONS
Distances are straight line measurements from the centre of the postcode- Melton Mowbray Station2.4 miles



Notes
Disclaimer - Property reference 34061906. The information displayed about this property comprises a property advertisement. Rightmove.co.uk makes no warranty as to the accuracy or completeness of the advertisement or any linked or associated information, and Rightmove has no control over the content. This property advertisement does not constitute property particulars. The information is provided and maintained by Shouler & Son, Melton Mowbray. Please contact the selling agent or developer directly to obtain any information which may be available under the terms of The Energy Performance of Buildings (Certificates and Inspections) (England and Wales) Regulations 2007 or the Home Report if in relation to a residential property in Scotland.
Map data ©OpenStreetMap contributors.







