Plymouth Road, Plympton, Plymouth

- PROPERTY TYPE
Semi-Detached
- BEDROOMS
3
- BATHROOMS
1
- SIZE
Ask agent
- TENUREDescribes how you own a property. There are different types of tenure - freehold, leasehold, and commonhold.Read more about tenure in our glossary page.
Freehold
Key features
- Semi Detached 3 Bed House
- 2 Receptions, Extended Kitchen
- Gas Central Heating, uPVC DG
- Parking for 4 Vehicles
- No Onward Chain
Description
Entrance: - uPVC frame door into:
Porch: - Upvc WIndows, wooden door into:
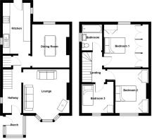
Hallway: - Window to the side, radiator , stairs to fiurst floor, understairs cupboards and doorways off to:
Lounge: - 4.54m x 3.98m (14'10" x 13'0") - (Into Bay Window). Feature fire surround, radiator and bay window to the front elevation.
Dining Room: - 3.7m x 3.19m (12'1" x 10'5") - Radiator, feature fire surround and window to the rear.
Kitchen: - 4.4m x 2.13m (14'5" x 6'11") - Galley style kitchen with high glosss white base and wall untis with roll edge work surfaces over and tiled splashbacks. STainless steel bowl and a half sink unit, gas hob with oven below. Space for washing machine. Windows to two aspects and door to the rear.
Landing: - Doors off to:
Bedroom 1: - 3.7m x 3.12m (12'1" x 10'2") - (To wardrobe fronts). Range of wardrobes to one wall, storage cupboard housing gas combination boiler, radiator and window to the rear.
Bedroom 2: - 3.58m x 3.81m (11'8" x 12'5") - (At widest point) Radiator and window to the front elevation.
Bedroom 3: - 2.73m x 2.49m (8'11" x 8'2") - Raditor and window to the front elevation.
Bathroom: - WHite suite comprising panelled bath with electric shower over, low level wc and wash hand basin. Radiator and window to the side.
Outside: - To the front of the proeprty is a lawned garden area. A paved pathway leads to the front and along the side of the property to the rear. To the rear of the property is a block paved L-shped courtard/patio.
Parking: - The property has off road parking for apporximately 4 vehicles. Steps lead up from the parking area to the front of the property and there is a bin storage area below.
Useful Information: - Council Tax Band : C (£2,170.53 2026/2027)
Brochures
Plymouth Road, Plympton, Plymouth- COUNCIL TAXA payment made to your local authority in order to pay for local services like schools, libraries, and refuse collection. The amount you pay depends on the value of the property.Read more about council Tax in our glossary page.
- Band: C
- PARKINGDetails of how and where vehicles can be parked, and any associated costs.Read more about parking in our glossary page.
- Yes
- GARDENA property has access to an outdoor space, which could be private or shared.
- Yes
- ACCESSIBILITYHow a property has been adapted to meet the needs of vulnerable or disabled individuals.Read more about accessibility in our glossary page.
- Ask agent
Plymouth Road, Plympton, Plymouth
Add an important place to see how long it'd take to get there from our property listings.
__mins driving to your place
Get an instant, personalised result:
- Show sellers you’re serious
- Secure viewings faster with agents
- No impact on your credit score
Your mortgage
Notes
Staying secure when looking for property
Ensure you're up to date with our latest advice on how to avoid fraud or scams when looking for property online.
Visit our security centre to find out moreDisclaimer - Property reference 34521039. The information displayed about this property comprises a property advertisement. Rightmove.co.uk makes no warranty as to the accuracy or completeness of the advertisement or any linked or associated information, and Rightmove has no control over the content. This property advertisement does not constitute property particulars. The information is provided and maintained by Moving On, Plympton. Please contact the selling agent or developer directly to obtain any information which may be available under the terms of The Energy Performance of Buildings (Certificates and Inspections) (England and Wales) Regulations 2007 or the Home Report if in relation to a residential property in Scotland.
*This is the average speed from the provider with the fastest broadband package available at this postcode. The average speed displayed is based on the download speeds of at least 50% of customers at peak time (8pm to 10pm). Fibre/cable services at the postcode are subject to availability and may differ between properties within a postcode. Speeds can be affected by a range of technical and environmental factors. The speed at the property may be lower than that listed above. You can check the estimated speed and confirm availability to a property prior to purchasing on the broadband provider's website. Providers may increase charges. The information is provided and maintained by Decision Technologies Limited. **This is indicative only and based on a 2-person household with multiple devices and simultaneous usage. Broadband performance is affected by multiple factors including number of occupants and devices, simultaneous usage, router range etc. For more information speak to your broadband provider.
Map data ©OpenStreetMap contributors.







