
Penryn

- PROPERTY TYPE
Maisonette
- BEDROOMS
3
- BATHROOMS
1
- SIZE
Ask agent
Key features
- A spacious second/third floor maisonette
- Spectacular views over countryside to Glasney Woods
- Lounge with balcony and woodburning stove
- Fitted kitchen/dining room
- Three third floor bedrooms
- Four piece bathroom suite
- UPVC double glazing & gas central heating
- Private garden with mature plants and shrubs
- Light and airy southerly aspect
- Viewing highly recommended
Description
The property that is situated at the end of the terrace is located on the second and third floor of the building and has the benefit of UPVC double glazing and gas central heating.
Offering spacious accommodation throughout, the accommodation in brief comprises; entrance hallway, kitchen/dining room, lounge with patio doors to balcony plus three bedrooms and a bathroom to the top floor. Outside, to the rear of the property and accessed from the balcony via concrete steps is a sizeable garden sporting a wide variety of plants and shrubs.
The historic town of Penryn offers an eclectic range of day-to-day facilities including shops, restaurants, public houses and doctors surgery. The property itself is close to Penryn infant and junior school, Penryn College for secondary education and Falmouth University (Tremough Campus). Penryn station is also close by with the branch line linking Falmouth Docks to the cathedral city of Truro.
Considered ideal as a home or investment opportunity, we highly recommend an early appointment to view.
Why not call for your appointment to view today?
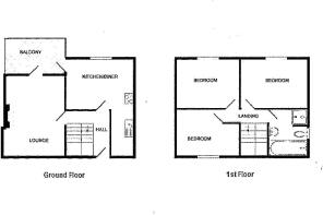
THE ACCOMMODATION COMPRISES:
At the entrance to the house there is a lockable shed and a wooden wood and bin store. Footpath from the front of the building to a half glazed wooden door leading to:
ENTRANCE HALLWAY 2.57m (8'5") x 2.92m (9'7")
With turning staircase to first floor landing, pendant light, radiator, coat hooks, under stairs recess ideal for storing shoes, wood panelled door to lounge and half glazed door to kitchen/dining room.
KITCHEN/DINER 3.96m (13'0") x 2.74m (9'0")
plus 2.90m (9'6") x 1.27m (4'2")
A triple aspect room with two UPVC double glazed windows to the side, one picture window to the rear within the dining area, and one to the front.
KITCHEN AREA
Fitted with a range of cream wall, base and drawer units with pebble dash effect roll top work surfaces with green ceramic tiled splashbacks above, inset single drainer stainless steel sink unit with chrome mixer tap, integrated single oven with inset four-ring gas hob above, space and plumbing for washing machine, space for under counter refrigerator and freezer, inset ceiling spotlights, wood flooring, fire alarm.
DINING AREA
Having a spectacular outlook over open countryside towards the viaduct that supports the Maritime Line running periodically from Falmouth Docks to the cathedral city of Truro and down across woodland to the Glasney Valley. A half glazed UPVC double glazed door with cat flap opens to the balcony, radiator, pendant ceiling light, wood floor.
LOUNGE 4.67m (15'4") x 3.63m (11'11")
Accessed from a solid wood panelled door. A bright and light lounge having a UPVC double glazed sliding patio door to the balcony which again enjoys views across countryside, feature woodburning stove set into chimney recess with black slate hearth, wall shelving, radiator, original picture rails, pendant light, fire alarm, wood flooring.
BALCONY 3.20m (10'6") x 2.03m (6'8")
A walled balcony accessed from the dining room or the lounge, wood door with cat flap giving access to concrete steps that take you down to the private garden. From here you can access your own private garden. This is a delightful spot to sit out and enjoy the sun whilst listening to the calming water sounds of the stream that runs through the valley below.
FROM HALLWAY, WOOD TURNING STAIRCASE WITH PAINTED BALUSTRADES TO FIRST FLOOR LANDING
With UPVC double glazed window at mezzanine level overlooking the front, pendant light, access to roof space, wood flooring, wood panelled doors to all rooms.
BEDROOM ONE 3.73m (12'3") x 2.84m (9'4")
UPVC double glazed picture window enjoying much the same views as the lounge, radiator, pendant light, wooden floor boards, original picture rails and door.
BEDROOM TWO 4.06m (13'4") x 2.84m (9'4")
A light, dual aspect room having a UPVC double glazed picture window overlooking the rear affording the same views as the lounge and two UPVC double glazed windows to the side, radiator, pendant light, wall shelving, wood flooring, original picture rail and door.
BEDROOM THREE 2.79m (9'2") x 3.71m (12'2")
measured into recess.
UPVC double glazed window overlooking the front, pendant light, wall vent, fitted carpet, original picture rails and door.
BATHROOM 2.18m (7'2") x 2.74m (9'0")
into recess.
Two opaque UPVC double glazed windows to the side. Fitted with a white suite comprising; handled and panelled bath with chrome telephone style hand shower, separate corner shower cubicle with mains fed chrome mixer shower and riser with glass screen, Edwardian style low-level flush wc and hand wash basin with separate chrome hot and cold taps, mirrored bathroom cabinet, ornate fully tiled walls, wood towel rail, radiator, inset ceiling spotlights, extractor fan, built-in storage cupboard, wood flooring, wood panelled door.
PRIVATE GARDEN
Located to the rear of the property. This large garden has vegetable beds and a flat area suitable for a greenhouse or shed. This garden has a southerly aspect.
TENURE
Leasehold for the remainder of a 125 year lease dated October 1989.
GROUND RENT AND MAINTENANCE CHARGES
Ground Rent - £10 per annum.
Maintenance Charges - including building insurance, approximately £170 - £220 per annum (depending on the maintenance required).
SERVICES
Mains water, electricity, gas and drainage. Telephone and Broadband.
COUNCIL TAX
Band A.
Brochures
Full Details- COUNCIL TAXA payment made to your local authority in order to pay for local services like schools, libraries, and refuse collection. The amount you pay depends on the value of the property.Read more about council Tax in our glossary page.
- Ask agent
- PARKINGDetails of how and where vehicles can be parked, and any associated costs.Read more about parking in our glossary page.
- Ask agent
- GARDENA property has access to an outdoor space, which could be private or shared.
- Yes
- ACCESSIBILITYHow a property has been adapted to meet the needs of vulnerable or disabled individuals.Read more about accessibility in our glossary page.
- Ask agent
Penryn
Add an important place to see how long it'd take to get there from our property listings.
__mins driving to your place
Get an instant, personalised result:
- Show sellers you’re serious
- Secure viewings faster with agents
- No impact on your credit score


Affordability
Notes
Staying secure when looking for property
Ensure you're up to date with our latest advice on how to avoid fraud or scams when looking for property online.
Visit our security centre to find out moreDisclaimer - Property reference KIM1SK7341. The information displayed about this property comprises a property advertisement. Rightmove.co.uk makes no warranty as to the accuracy or completeness of the advertisement or any linked or associated information, and Rightmove has no control over the content. This property advertisement does not constitute property particulars. The information is provided and maintained by Kimberley's Independent Estate Agents, Falmouth. Please contact the selling agent or developer directly to obtain any information which may be available under the terms of The Energy Performance of Buildings (Certificates and Inspections) (England and Wales) Regulations 2007 or the Home Report if in relation to a residential property in Scotland.
*This is the average speed from the provider with the fastest broadband package available at this postcode. The average speed displayed is based on the download speeds of at least 50% of customers at peak time (8pm to 10pm). Fibre/cable services at the postcode are subject to availability and may differ between properties within a postcode. Speeds can be affected by a range of technical and environmental factors. The speed at the property may be lower than that listed above. You can check the estimated speed and confirm availability to a property prior to purchasing on the broadband provider's website. Providers may increase charges. The information is provided and maintained by Decision Technologies Limited. **This is indicative only and based on a 2-person household with multiple devices and simultaneous usage. Broadband performance is affected by multiple factors including number of occupants and devices, simultaneous usage, router range etc. For more information speak to your broadband provider.
Map data ©OpenStreetMap contributors.





