
Stockbridge Gardens, Chichester, PO19

- PROPERTY TYPE
Semi-Detached
- BEDROOMS
4
- BATHROOMS
2
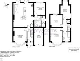
- SIZE
1,485 sq ft
138 sq m
- TENUREDescribes how you own a property. There are different types of tenure - freehold, leasehold, and commonhold.Read more about tenure in our glossary page.
Freehold
Key features
- Extended semi-detached house
- Impressive open plan kitchen/family room
- Three bedrooms
- Study/bedroom four
- Driveway and garage
- West facing rear garden
- Viewing recommended
Description
A well-presented house in the Stockbridge area of Chichester.
Extended semi-detached house in a popular residential location offering spacious and versatile accommodation ideal for modern family living. The property features a comfortable sitting room and an impressive open plan kitchen/family room, perfect for everyday living and entertaining. There is also a useful utility room, ground floor shower/WC, and a ground floor study which could also be used as an additional bedroom. To the first floor are three well-proportioned bedrooms, a family bathroom/WC and an additional separate WC.
Externally, the property benefits from a driveway leading to a garage and a west-facing rear garden, ideal for enjoying afternoon and evening sun. Viewing is highly recommended.
Chichester District Council - 25/26 Tax Band D £2,288.36 EPC-C
Directions - Proceed south out of Chichester on the A286 (signposted to The Witterings). Proceed over the mini roundabout and take the first turning on the right into Stockbridge Gardens. Pass Gordon Avenue on your left and number 33 is a short distance after on the left. What3words - aware.cards.space
EPC Rating: D
Parking - Garage
Parking - Driveway
Brochures
Property Brochure- COUNCIL TAXA payment made to your local authority in order to pay for local services like schools, libraries, and refuse collection. The amount you pay depends on the value of the property.Read more about council Tax in our glossary page.
- Band: D
- PARKINGDetails of how and where vehicles can be parked, and any associated costs.Read more about parking in our glossary page.
- Garage,Driveway
- GARDENA property has access to an outdoor space, which could be private or shared.
- Private garden
- ACCESSIBILITYHow a property has been adapted to meet the needs of vulnerable or disabled individuals.Read more about accessibility in our glossary page.
- Ask agent
Energy performance certificate - ask agent
Stockbridge Gardens, Chichester, PO19
Add an important place to see how long it'd take to get there from our property listings.
__mins driving to your place
Get an instant, personalised result:
- Show sellers you’re serious
- Secure viewings faster with agents
- No impact on your credit score
Your mortgage
Notes
Staying secure when looking for property
Ensure you're up to date with our latest advice on how to avoid fraud or scams when looking for property online.
Visit our security centre to find out moreDisclaimer - Property reference 6b4d9982-e6ff-48c6-8591-e459a05c91c5. The information displayed about this property comprises a property advertisement. Rightmove.co.uk makes no warranty as to the accuracy or completeness of the advertisement or any linked or associated information, and Rightmove has no control over the content. This property advertisement does not constitute property particulars. The information is provided and maintained by Henry Adams, Chichester. Please contact the selling agent or developer directly to obtain any information which may be available under the terms of The Energy Performance of Buildings (Certificates and Inspections) (England and Wales) Regulations 2007 or the Home Report if in relation to a residential property in Scotland.
*This is the average speed from the provider with the fastest broadband package available at this postcode. The average speed displayed is based on the download speeds of at least 50% of customers at peak time (8pm to 10pm). Fibre/cable services at the postcode are subject to availability and may differ between properties within a postcode. Speeds can be affected by a range of technical and environmental factors. The speed at the property may be lower than that listed above. You can check the estimated speed and confirm availability to a property prior to purchasing on the broadband provider's website. Providers may increase charges. The information is provided and maintained by Decision Technologies Limited. **This is indicative only and based on a 2-person household with multiple devices and simultaneous usage. Broadband performance is affected by multiple factors including number of occupants and devices, simultaneous usage, router range etc. For more information speak to your broadband provider.
Map data ©OpenStreetMap contributors.








