Kingston Road, Taunton, TA2

Letting details
- Let available date:
- 01/04/2026
- Deposit:
- £1,033A deposit provides security for a landlord against damage, or unpaid rent by a tenant.Read more about deposit in our glossary page.
- Min. Tenancy:
- Ask agent How long the landlord offers to let the property for.Read more about tenancy length in our glossary page.
- Let type:
- Long term
- Furnish type:
- Unfurnished
- Council Tax:
- Ask agent
- PROPERTY TYPE
Flat
- BEDROOMS
1
- BATHROOMS
1
- SIZE
Ask agent
Key features
- No Agent Fees
- Property Reference Number: 2806313
Description
****AVAILABLE APRIL****
A quality modern town centre one bedroom flat close to Taunton train station.
This building has been designed to provide great town centre living. The specifications are high – heating systems, soundproofing, fittings, wood floors, security, storage and communications. All finishes have all been specified to meet great standards.
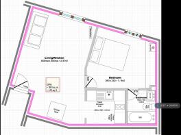
The flat is on the first floor and has a Gross Internal FloorArea (GIFA) of 39 square metres. The central living room is a large 25.7 square metres and leads to the kitchen and bedroom. The bathroom is en-suite and has a bath with integral shower tray with non-slip base. The bath taps are thermostatically controlled, so maintain a constant temperature if someone turns on a tap elsewhere in the flat.
The building is located just North of the railway station, and it is an easy walk into the centre of town.
Council tax is band A; single occupants get a 25% discount. The Energy Performance Certificate (EPC) is Rating B. SKY and terrestrial TV points are installed and BT connections (if required) are also installed. Water, Gas and Electricity are metered. The flat is unfurnished.
Suitable Guarantors (normally a homeowner) are required for any application.
Limited number of Warden controlled parking space (if available) at £60 pcm.
Summary & Exclusions:
- Rent Amount: £895.00 per month (£206.54 per week)
- Deposit / Bond: £1,032.69
- 1 Bedrooms
- 1 Bathrooms
- Property comes unfurnished
- Available to move in from 01 April 2026
- Minimum tenancy term is 24 months
- Maximum number of tenants is 2
- DSS enquiries welcome
- No Students
- No Pets, sorry
- No Smokers
- Family Friendly
- Bills not included
- No Parking Available
- No Garden Access
- EPC Rating: B
If calling, please quote reference: 2806313
Fees:
You will not be charged any admin fees.
** Contact today to book a viewing and have the landlord show you round! **
Request Details form responded to 24/7, with phone bookings available 9am-9pm, 7 days a week.
- COUNCIL TAXA payment made to your local authority in order to pay for local services like schools, libraries, and refuse collection. The amount you pay depends on the value of the property.Read more about council Tax in our glossary page.
- Ask agent
- PARKINGDetails of how and where vehicles can be parked, and any associated costs.Read more about parking in our glossary page.
- Ask agent
- GARDENA property has access to an outdoor space, which could be private or shared.
- Ask agent
- ACCESSIBILITYHow a property has been adapted to meet the needs of vulnerable or disabled individuals.Read more about accessibility in our glossary page.
- Ask agent
Energy performance certificate - ask agent
Kingston Road, Taunton, TA2
Add an important place to see how long it'd take to get there from our property listings.
__mins driving to your place
Notes
Staying secure when looking for property
Ensure you're up to date with our latest advice on how to avoid fraud or scams when looking for property online.
Visit our security centre to find out moreDisclaimer - Property reference 280631324022026. The information displayed about this property comprises a property advertisement. Rightmove.co.uk makes no warranty as to the accuracy or completeness of the advertisement or any linked or associated information, and Rightmove has no control over the content. This property advertisement does not constitute property particulars. The information is provided and maintained by OpenRent, London. Please contact the selling agent or developer directly to obtain any information which may be available under the terms of The Energy Performance of Buildings (Certificates and Inspections) (England and Wales) Regulations 2007 or the Home Report if in relation to a residential property in Scotland.
*This is the average speed from the provider with the fastest broadband package available at this postcode. The average speed displayed is based on the download speeds of at least 50% of customers at peak time (8pm to 10pm). Fibre/cable services at the postcode are subject to availability and may differ between properties within a postcode. Speeds can be affected by a range of technical and environmental factors. The speed at the property may be lower than that listed above. You can check the estimated speed and confirm availability to a property prior to purchasing on the broadband provider's website. Providers may increase charges. The information is provided and maintained by Decision Technologies Limited. **This is indicative only and based on a 2-person household with multiple devices and simultaneous usage. Broadband performance is affected by multiple factors including number of occupants and devices, simultaneous usage, router range etc. For more information speak to your broadband provider.
Map data ©OpenStreetMap contributors.




