
Moorfield Place, Farnborough, Hampshire, GU14

- PROPERTY TYPE
Flat
- BEDROOMS
2
- BATHROOMS
2
- SIZE
Ask agent
Key features
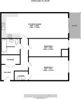
- Two Bedrooms
- Built by Bellway Homes in 2023
- Third Floor
- West Facing Balcony
- Ideal for Sunset Views
- Lift Access to Each Floor
- Desired Location
- EPC: B (87)
- Council Tax Band: C
Description
The town centre is just a five minute walk away, with excellent local schools, including Farnborough Technology College, nearby. Farnborough railway station offers direct trains to London Waterloo in under 37 minutes, and the M3 (Junctions 4 and 4A) is easily accessible.
Residents also enjoy access to two communal gardens (located on levels one and three), lift access, a secure entry system, undercroft parking with two allocated spaces, bike storage, bin stores and eight years remaining on the NHBC warranty.
Lease remaining: TBC
Service Charge: TBC - Reviewed: TBC
Ground Rent: TBC - Reviewed: TBC
Council Tax Band: C
Lease details, service charges, ground rent, maintenance charges (where applicable), and council tax are given as a guide only and should be checked and confirmed by your Solicitor prior to exchange of contracts.
Valuation/Market Appraisal
Thinking of selling or struggling to sell? Get in contact with Bridges your experienced, local agents and book your free valuation now!
Brochures
Particulars- COUNCIL TAXA payment made to your local authority in order to pay for local services like schools, libraries, and refuse collection. The amount you pay depends on the value of the property.Read more about council Tax in our glossary page.
- Band: C
- PARKINGDetails of how and where vehicles can be parked, and any associated costs.Read more about parking in our glossary page.
- Yes
- GARDENA property has access to an outdoor space, which could be private or shared.
- Ask agent
- ACCESSIBILITYHow a property has been adapted to meet the needs of vulnerable or disabled individuals.Read more about accessibility in our glossary page.
- Ask agent
Moorfield Place, Farnborough, Hampshire, GU14
Add an important place to see how long it'd take to get there from our property listings.
__mins driving to your place
Get an instant, personalised result:
- Show sellers you’re serious
- Secure viewings faster with agents
- No impact on your credit score
Affordability
Notes
Staying secure when looking for property
Ensure you're up to date with our latest advice on how to avoid fraud or scams when looking for property online.
Visit our security centre to find out moreDisclaimer - Property reference FAR250105. The information displayed about this property comprises a property advertisement. Rightmove.co.uk makes no warranty as to the accuracy or completeness of the advertisement or any linked or associated information, and Rightmove has no control over the content. This property advertisement does not constitute property particulars. The information is provided and maintained by Bridges Estate Agents, Farnborough. Please contact the selling agent or developer directly to obtain any information which may be available under the terms of The Energy Performance of Buildings (Certificates and Inspections) (England and Wales) Regulations 2007 or the Home Report if in relation to a residential property in Scotland.
*This is the average speed from the provider with the fastest broadband package available at this postcode. The average speed displayed is based on the download speeds of at least 50% of customers at peak time (8pm to 10pm). Fibre/cable services at the postcode are subject to availability and may differ between properties within a postcode. Speeds can be affected by a range of technical and environmental factors. The speed at the property may be lower than that listed above. You can check the estimated speed and confirm availability to a property prior to purchasing on the broadband provider's website. Providers may increase charges. The information is provided and maintained by Decision Technologies Limited. **This is indicative only and based on a 2-person household with multiple devices and simultaneous usage. Broadband performance is affected by multiple factors including number of occupants and devices, simultaneous usage, router range etc. For more information speak to your broadband provider.
Map data ©OpenStreetMap contributors.








