
Chapel Street, Chichester, PO19

- PROPERTY TYPE
Retirement Property
- BEDROOMS
2
- BATHROOMS
2
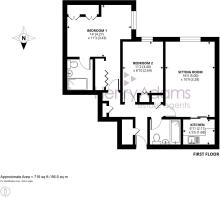
- SIZE
700 sq ft
65 sq m
Key features
- Spacious 716 sqft retirement apartment
- Just a few minutes’ walk from the city centre shops, library, restaurants and bistro's
- First floor
- South facing sitting room
- En-suite principal bedroom
- On-site manager and out of hours back up
- Communal garden and laundry
- Guest suite
Description
A chain free first floor retirement apartment in the heart of the city centre
A two-bedroom first-floor retirement apartment, ideally located in the heart of the city centre, just a short walk from the main shopping precinct with its excellent selection of shops, restaurants and cafés.
This spacious and well-designed apartment offers comfortable and convenient living throughout. The accommodation comprises a welcoming entrance hall, a bright and airy south-facing sitting room flooded with natural light, a well-appointed kitchen, a generous principal bedroom with en-suite shower room, a second bedroom ideal for guests or hobbies and a separate bathroom.
Residents benefit from a range of excellent on-site facilities designed for comfort and peace of mind, including an on-site manager and a 24-hour Careline emergency call system for out-of-hours support. The development also features beautifully maintained communal gardens, a guest suite for visiting family and friends and a shared laundry room.
Offered to the market with no onward chain, this delightful apartment presents an excellent opportunity for those seeking a relaxed and secure lifestyle in a highly convenient central location.
Lease - 125 years from 01/01/1986 (85 years remaining)
Service Charge - For 2025 is £4,032.87 per annum (estimated)
Ground rent - £75 per annum
Chichester District Council - 25/26 Tax Band C £2,077.38 EPC-C
Directions - Proceed on foot from the city centre cross into West Street with the cathedral on the left, turn right into Chapel Street. Follow the road north and Providence Place is on the left. There is a pay and display car park a short distance along on the right. what3words - manliness.these.class
EPC Rating: C
Brochures
Property Brochure- COUNCIL TAXA payment made to your local authority in order to pay for local services like schools, libraries, and refuse collection. The amount you pay depends on the value of the property.Read more about council Tax in our glossary page.
- Band: C
- PARKINGDetails of how and where vehicles can be parked, and any associated costs.Read more about parking in our glossary page.
- Yes
- GARDENA property has access to an outdoor space, which could be private or shared.
- Communal garden
- ACCESSIBILITYHow a property has been adapted to meet the needs of vulnerable or disabled individuals.Read more about accessibility in our glossary page.
- Ask agent
Energy performance certificate - ask agent
Chapel Street, Chichester, PO19
Add an important place to see how long it'd take to get there from our property listings.
__mins driving to your place
Notes
Staying secure when looking for property
Ensure you're up to date with our latest advice on how to avoid fraud or scams when looking for property online.
Visit our security centre to find out moreDisclaimer - Property reference 57923d3f-d7b9-4e0d-8625-2d230d6d0598. The information displayed about this property comprises a property advertisement. Rightmove.co.uk makes no warranty as to the accuracy or completeness of the advertisement or any linked or associated information, and Rightmove has no control over the content. This property advertisement does not constitute property particulars. The information is provided and maintained by Henry Adams, Chichester. Please contact the selling agent or developer directly to obtain any information which may be available under the terms of The Energy Performance of Buildings (Certificates and Inspections) (England and Wales) Regulations 2007 or the Home Report if in relation to a residential property in Scotland.
*This is the average speed from the provider with the fastest broadband package available at this postcode. The average speed displayed is based on the download speeds of at least 50% of customers at peak time (8pm to 10pm). Fibre/cable services at the postcode are subject to availability and may differ between properties within a postcode. Speeds can be affected by a range of technical and environmental factors. The speed at the property may be lower than that listed above. You can check the estimated speed and confirm availability to a property prior to purchasing on the broadband provider's website. Providers may increase charges. The information is provided and maintained by Decision Technologies Limited. **This is indicative only and based on a 2-person household with multiple devices and simultaneous usage. Broadband performance is affected by multiple factors including number of occupants and devices, simultaneous usage, router range etc. For more information speak to your broadband provider.
Map data ©OpenStreetMap contributors.








